Bildegalleri

EiendomsMegler1 ved Isabell Heidenreich-Riis presenterer Kongerødvegen 56C! Boligen ligger høyt og fritt i 3. etasje på enden av bygget.
Endeleilighet med 3 soverom med solrik, innglasset balkong - God planløsning - Egen p-plass og lademuligheter
Nøkkelinfo
- Boligtype
- Leilighet
- Eieform
- Andel
- Soverom
- 3
- Internt bruksareal
- 77 m² (BRA-i)
- Bruksareal
- 105 m²
- Eksternt bruksareal
- 20 m² (BRA-e)
- Innglasset balkong
- 8 m² (BRA-b)
- Etasje
- 3
- Byggeår
- 1966
- Energimerking
- G - Oransje
- Rom
- 4
- Tomteareal
- 42 472 m² (eiet)
Fasiliteter
Om boligen
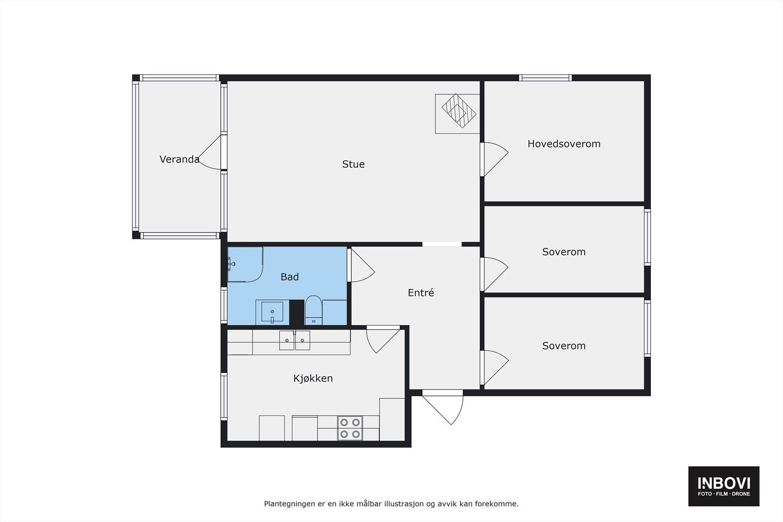
Boligen ligger høyt og fritt i 3. etasje på enden av bygget. Solrik, innglasset balkong på 8 kvm.
Innhold: Entre, stue, kjøkken, 3 soverom, bad.
Bod i kjeller på 16 kvm og bod på loftet på 4 kvm.
En fast parkeringsplass. Mulighet for å lade elbil i borettslaget.
Kabel tv og bredbånd inkl. i felleskostnadene.
Vinduer og balkongdører byttet i regi av borettslaget i 2021.
Elektrisk anlegg oppgradert i regi av borettslaget i 2014.
Borettslaget skal ha rehabilitering av vann/avløp og evn. av baderom eller kun rørfornying bad. Tas opp på generalforsamling i 2025.
Boligen ligger sentralt og barnevennlig til på Klyve i enden av Kongerødvegen uten gjennomgangstrafikk.
Ingen meldt forkjøpsrett!
Salgsoppgaven beskriver vesentlig og lovpålagt informasjon om eiendommen
Se komplett salgsoppgaveNyttige lenker
Nærområdet
EiendomsMegler 1 Skien
Prisstatistikk
Kongerødvegen 56C
på annonsen
prisantydning per kvadratmeter
Prisfordeling
Pris per m² ligger 11 806 kr under snittet for leiligheter i Skien.
Grafen viser antall leiligheter solgt i Skien siste året fordelt på pris per m² - totalt 562 leiligheter
Antall boliger
Kvadratmeterpris tilsvarer prisantydning pluss fellesgjeld per kvadratmeter (p-rom eller BRA-i). Prisene i grafen er avrundet til nærmeste 1000 kr.
Annonseinformasjon
| FINN-kode | 357069246 |
|---|---|
| Sist endret | 22. feb. 2025 14:04 |
| Referanse | 1410240209 |
Annonsene kan være mangelfulle i forhold til lovpålagt opplysningsplikt. Før bindende avtale inngås oppfordres interessenter til å innhente komplett informasjon fra meglerforetaket, selger eller utleier.





















