Bildegalleri

Hellevegen 21 v/Fjordane Eiendomsmegling
Enebolig over to plan med fint opparbeida hage | 3 soverom | Flott utsikt og gode solforhold |
Nøkkelinfo
- Boligtype
- Enebolig
- Eieform
- Eier (Selveier)
- Soverom
- 3
- Internt bruksareal
- 157 m² (BRA-i)
- Bruksareal
- 166 m²
- Eksternt bruksareal
- 9 m² (BRA-e)
- Balkong/Terrasse
- 79 m² (TBA)
- Byggeår
- 1990
- Energimerking
- D - Gul
- Tomteareal
- 1 014 m² (eiet)
- Boligselgerforsikring
- Ja
Om boligen
Velkommen til Hellevegen 21 - Enebolig i etablert- og barnevennlig boligfelt på Kyrkjebø.
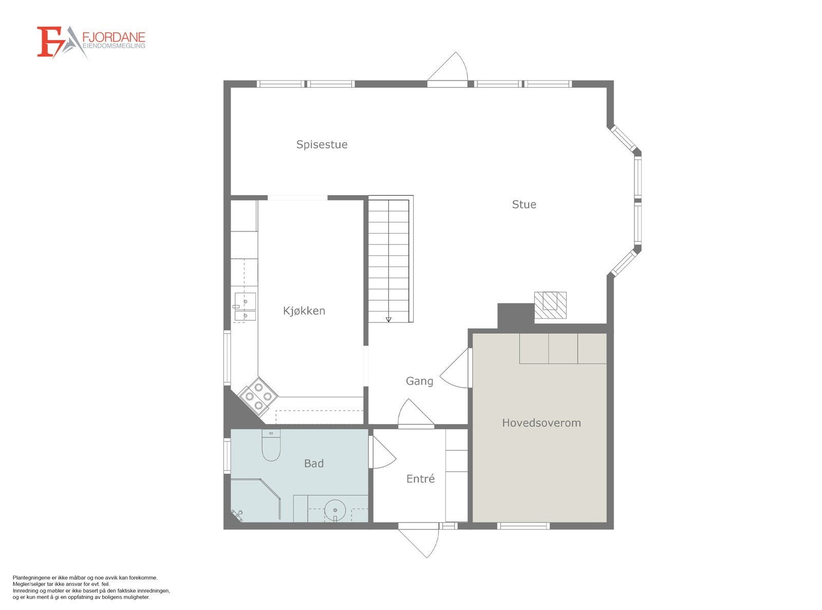
Boligen ble oppført i 1990 og har i hovedsak standard fra byggeår. Boligen er innreda med bla. 3 soverom, 2 bad, separat vaskerom og kjellerstue. Rundt boligen er flere terrasser med gode solforhold og flott utsikt over Sognefjorden.
Hagen er fint opparbeida med gruslagt adkomstveg og tunplass, terrasser i trevirke, plenarealer og beplantning.
Eiendommen ligger fint til i etablerte Tronvikfeltet med gangavstand til skule, barnehage, butikk og idrettsplass på Kyrkjebø.
Husk påmelding til visning tlf.41589170 / csm@fjordmegler.no
Salgsoppgaven beskriver vesentlig og lovpålagt informasjon om eiendommen
Se komplett salgsoppgaveNyttige lenker
Nærområdet
FJORDANE ADVOKATKONTOR AS
Prisstatistikk
Hellevegen 21
på annonsen
prisantydning per kvadratmeter
Prisfordeling
Pris per m² ligger 3 101 kr over snittet for eneboliger i Høyanger.
Grafen viser antall eneboliger solgt i Høyanger siste året fordelt på pris per m² - totalt 14 eneboliger
Antall boliger
Kvadratmeterpris tilsvarer prisantydning pluss fellesgjeld per kvadratmeter (p-rom eller BRA-i). Prisene i grafen er avrundet til nærmeste 1000 kr.
Annonsene kan være mangelfulle i forhold til lovpålagt opplysningsplikt. Før bindende avtale inngås oppfordres interessenter til å innhente komplett informasjon fra meglerforetaket, selger eller utleier.


































