Bildegalleri

Velkommen til Gjøssøya 35 - En flott fritidseiendom med koselig hytte og idyllisk beliggenhet.
Solgt
Ta kontakt for visning! | Gjøssøya
Koselig hytte med idyllisk beliggenhet - En perle i havgapet | Naust | Gapahuk | Solrik terrasse | Grillhus med kjøkken
Prisantydning3 990 000 kr
- Omkostninger
- 106 000 kr
- Totalpris
- 4 096 000 kr
- Kommunale avg.
- 1 987 kr per år
- Formuesverdi
- 491 333 kr
Nøkkelinfo
- Beliggenhet
- Ved sjøen
- Boligtype
- Hytte
- Eieform
- Eier (Selveier)
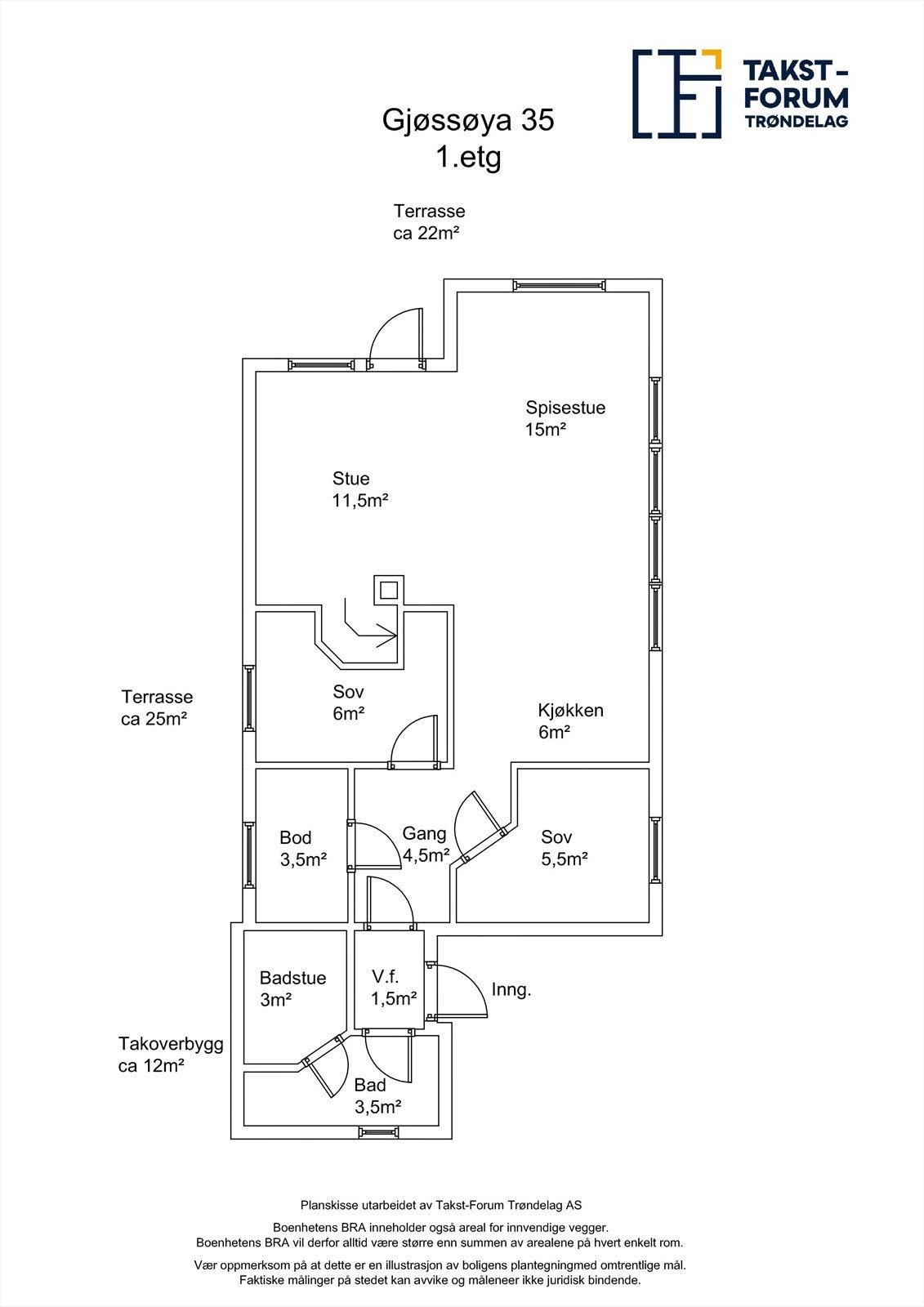
- Internt bruksareal
- 80 m² (BRA-i)
- Bruksareal
- 144 m²
- Eksternt bruksareal
- 64 m² (BRA-e)
- Balkong/Terrasse
- 94 m² (TBA)
- Tomteareal
- 1 097 m² (eiet)
- Byggeår
- 2002
- Soverom
- 3
- Energimerking
- C - Oransje
- Overtakelse
- Etter avtale med selger.
Fasiliteter
Balkong/Terrasse
Barnevennlig
Rolig
Utsikt
Innlagt strøm
Om boligen
Velkommen til Gjøssøya 35 - En flott fritidseiendom med koselig hytte og idyllisk beliggenhet på vakre Gjøssøya, der sjøen innbyr til ekte sommeridyll med bading, båtliv og fiske. Det følger med eget naust ved vannet, med mye sjarm og god plass til et spisebord. Hytta går over to plan og ligger høyt til, med gode solforhold og fantastisk sjøutsikt. Tomten er på over ett mål, med gapahuk, anneks, grillhytte og en stor terrasse for hygge gjennom sommeren.
Verdt å merke seg
- Eget kjøkken i grillhuset
- Utsiktspunkt ved gapahuken
- Stor stue med åpen himling
- Både vedovn og varmepumpe
- Plass til langbord i stuen
- Kjøkken med egen spiseplass
- Loftstue for ekstra spillerom
- Bad innredet med dusjhjørne
- Plassbygd badstue på badet
- To soverom, ett med skap
- Utebod og bod inne
Velkommen!
Verdt å merke seg
- Eget kjøkken i grillhuset
- Utsiktspunkt ved gapahuken
- Stor stue med åpen himling
- Både vedovn og varmepumpe
- Plass til langbord i stuen
- Kjøkken med egen spiseplass
- Loftstue for ekstra spillerom
- Bad innredet med dusjhjørne
- Plassbygd badstue på badet
- To soverom, ett med skap
- Utebod og bod inne
Velkommen!
NB: Knappen for å vise hele beskrivelsen har kun en visuell effekt.
NB: Knappen for å vise hele beskrivelsen har kun en visuell effekt.
Salgsoppgaven beskriver vesentlig og lovpålagt informasjon om eiendommen
Se komplett salgsoppgaveNyttige lenker
Nærområdet
Heimdal Eiendomsmegling avd. Orkanger
Prisstatistikk
Gjøssøya 35
14 855 klikk
på annonsen
49 875 kr
prisantydning per kvadratmeter
Prisfordeling
Pris per m² ligger 16 875 kr over snittet for hytter i Hitra.
Grafen viser antall hytter solgt i Hitra siste året fordelt på pris per m² - totalt 29 hytter
Antall boliger
Kvadratmeterpris tilsvarer prisantydning pluss fellesgjeld per kvadratmeter (p-rom eller BRA-i). Prisene i grafen er avrundet til nærmeste 1000 kr.
Annonseinformasjon
| FINN-kode | 356953303 |
|---|---|
| Sist endret | 01. sep. 2025 09:00 |
| Referanse | 12-24-0070 |
Annonsene kan være mangelfulle i forhold til lovpålagt opplysningsplikt. Før bindende avtale inngås oppfordres interessenter til å innhente komplett informasjon fra meglerforetaket, selger eller utleier.








































