Bildegalleri

Utsyn fra innglasset veranda, til Jeløy i syd og vest.
Solgt
Sentrum
3-roms selveier midt i byen. Garasje. Innglasset veranda m utsyn og sol ettermiddag/kveld. Pusset opp rundt 2015/2016
Prisantydning3 180 000 kr
Nøkkelinfo
- Boligtype
- Leilighet
- Eieform
- Eier (Selveier)
- Soverom
- 2
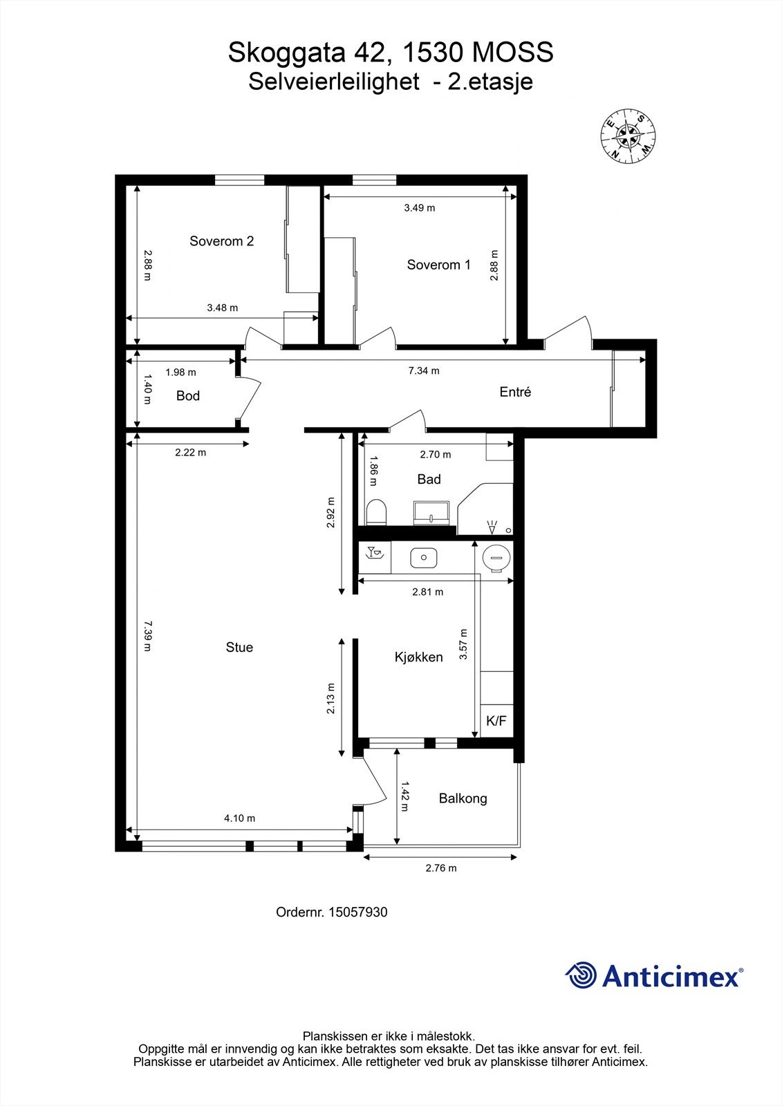
- Internt bruksareal
- 82 m² (BRA-i)
- Bruksareal
- 90 m²
- Eksternt bruksareal
- 3 m² (BRA-e)
- Innglasset balkong
- 5 m² (BRA-b)
- Etasje
- 2
- Byggeår
- 1987
- Rom
- 3
- Tomteareal
- 3 850 m² (eiet)
Fasiliteter
Balkong/Terrasse
Barnevennlig
Bredbåndstilknytning
Garasje/P-plass
Heis
Offentlig vann/kloakk
Sentralt
Turterreng
Om boligen
Gjennomgående tre-roms selveier, midt i byen
- Innglasset veranda med ettermiddags-/kveldssol og utsikt til Jeløy
- Velholdt etter oppussing i 2018
- Kjøkken med alle hvitevarer integrert
- Flislagt bad fra 2016
- Gulvvarme i alle rom utenom soverom
- Biloppstillingsplass i felles garasjeanlegg med mulighet for elbillader
- Fin felles hage for beboerne
- Kort vei til Nesparken og turområder rundt byen
- Få min. gange til togstasjon - 30 min. med tog til Oslo
NB: Knappen for å vise hele beskrivelsen har kun en visuell effekt.
NB: Knappen for å vise hele beskrivelsen har kun en visuell effekt.
Salgsoppgaven beskriver vesentlig og lovpålagt informasjon om eiendommen
Se komplett salgsoppgaveNyttige lenker
Nærområdet
Krogsveen Moss
Verdien av en god megler.
Prisstatistikk
Skoggata 42
4 327 klikk
på annonsen
40 618 kr
prisantydning per kvadratmeter
Prisfordeling
Pris per m² ligger 11 382 kr under snittet for leiligheter i Moss.
Grafen viser antall leiligheter solgt i Moss siste året fordelt på pris per m² - totalt 740 leiligheter
Antall boliger
Kvadratmeterpris tilsvarer prisantydning pluss fellesgjeld per kvadratmeter (p-rom eller BRA-i). Prisene i grafen er avrundet til nærmeste 1000 kr.
Annonseinformasjon
| FINN-kode | 356928532 |
|---|---|
| Sist endret | 02. apr. 2025 16:59 |
| Referanse | KR30.24114 |
Annonsene kan være mangelfulle i forhold til lovpålagt opplysningsplikt. Før bindende avtale inngås oppfordres interessenter til å innhente komplett informasjon fra meglerforetaket, selger eller utleier.


















