Bildegalleri

Velkommen til Stenåsvegen 4 ved foten av vakre Litlrøåsen - ca 750 moh.
Solgt
Lillerøåsen
Godt vedlikeholdt hytte i vakre Litlrøåsen. 3 sov, vintervei, vannpost, solcelle. Fantastisk fjellandskap og turterreng.
Prisantydning890 000 kr
- Omkostninger
- 23 340 kr
- Totalpris
- 913 340 kr
- Kommunale avg.
- 1 418 kr per år
- Eiendomsskatt
- 2 090 kr per år
Nøkkelinfo
- Beliggenhet
- På fjellet
- Boligtype
- Hytte
- Eieform
- Eier (Selveier)
- Internt bruksareal
- 56 m² (BRA-i)
- Bruksareal
- 59 m²
- Eksternt bruksareal
- 3 m² (BRA-e)
- Balkong/Terrasse
- 40 m² (TBA)
- Renovert år
- 2015
- Tomteareal
- 1 202 m² (eiet)
- Byggeår
- 2003
- Soverom
- 3
- Rom
- 4
- Energimerking
- D - Oransje
- Overtakelse
- Etter nærmere avtale med selger. Vær vennlig å angi ønsket overtagelsesdato i vedlagte budskjema.
Fasiliteter
Balkong/Terrasse
Barnevennlig
Bilvei frem
Garasje/P-plass
Peis/Ildsted
Rolig
Turterreng
Om boligen
Hytta ligger i vakre Litlrøåsen helt sør i Engerdal kommune. Området er et eldorado for den som elsker turer på fjellet. Et stort nett av stier og skispor går gjennom området til Bittermarka, Engerdal og over til Sverige. Flott område for fiske og småviltjakt.
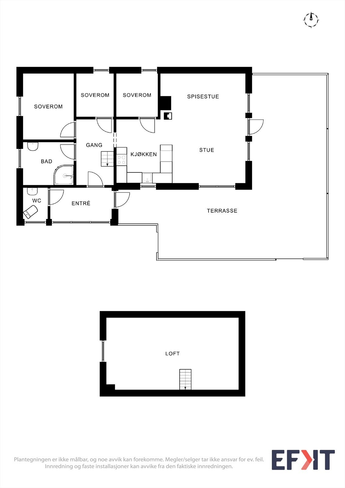
Hytta er godt vedlikeholdt og har stue og kjøkken i åpen løsning, 3 soverom og ekstra soveplasser på loftet. Kjøkken med gasskomfyr og -kjøleskap.
Innredet baderom med dusjkabinett, pumpe og varmtvannsbereder på gass, samt et nyere Cinderella forbrenningstoalett.
Vannpost ca 100m unna.
Hytta er i en gjennomført stil med malte eller beisede overflater, og den selges møblert.
Parkering på egen romslig tomt.
Velkommen til en hyggelig visning!
Hytta er godt vedlikeholdt og har stue og kjøkken i åpen løsning, 3 soverom og ekstra soveplasser på loftet. Kjøkken med gasskomfyr og -kjøleskap.
Innredet baderom med dusjkabinett, pumpe og varmtvannsbereder på gass, samt et nyere Cinderella forbrenningstoalett.
Vannpost ca 100m unna.
Hytta er i en gjennomført stil med malte eller beisede overflater, og den selges møblert.
Parkering på egen romslig tomt.
Velkommen til en hyggelig visning!
NB: Knappen for å vise hele beskrivelsen har kun en visuell effekt.
NB: Knappen for å vise hele beskrivelsen har kun en visuell effekt.
Salgsoppgaven beskriver vesentlig og lovpålagt informasjon om eiendommen
Se komplett salgsoppgaveNyttige lenker
Nærområdet
EiendomsMegler 1 Trysil
Vi loser deg trygt gjennom hele boligsalget
Prisstatistikk
Stenåsvegen 4
15 856 klikk
på annonsen
15 892 kr
prisantydning per kvadratmeter
Prisfordeling
Pris per m² ligger 13 108 kr under snittet for hytter i Engerdal.
Grafen viser antall hytter solgt i Engerdal siste året fordelt på pris per m² - totalt 22 hytter
Antall boliger
Kvadratmeterpris tilsvarer prisantydning pluss fellesgjeld per kvadratmeter (p-rom eller BRA-i). Prisene i grafen er avrundet til nærmeste 1000 kr.
Annonseinformasjon
| FINN-kode | 356815742 |
|---|---|
| Sist endret | 12. aug. 2025 10:54 |
| Referanse | 13240035 |
Annonsene kan være mangelfulle i forhold til lovpålagt opplysningsplikt. Før bindende avtale inngås oppfordres interessenter til å innhente komplett informasjon fra meglerforetaket, selger eller utleier.

























