Bildegalleri

Foto: Skildre (Bjørnar Fjeldberg)
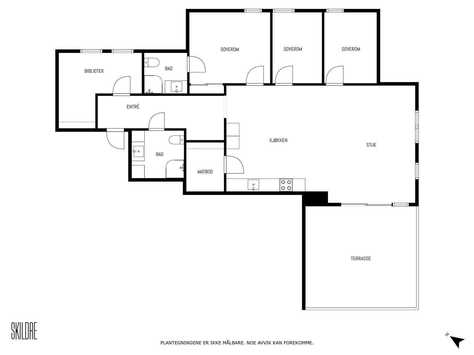
Toppleilighet på 115 m2 fra 2021. Terrasse på 25 m2 / 2 bad / garasje / heis.
Nøkkelinfo
- Boligtype
- Leilighet
- Eieform
- Andel
- Soverom
- 2
- Internt bruksareal
- 115 m² (BRA-i)
- Bruksareal
- 120 m²
- Eksternt bruksareal
- 5 m² (BRA-e)
- Balkong/Terrasse
- 25 m² (TBA)
- Etasje
- 4
- Byggeår
- 2021
- Energimerking
- C - Mørkegrønn
- Rom
- 4
- Tomteareal
- 2 617 m² (eiet)
Fasiliteter
Om boligen
I denne flotte leiligheten får du gjennomgående høy oppgradert standard utover vanlige løsninger. Leiligheten ligger i toppetasjen med heis, og byr på høykvalitets parkett i hele leiligheten. 2 lekre flislagte bad og et stilrent Norema- kjøkken med integrerte hvitevarer. To romslige soverom gir fleksibilitet perfekt enten du trenger hjemmekontor, barnerom eller bare et gjesterom. Med egen parkeringsplass i kjeller, vannbåren varme fra fjernvarmeanlegg er både komfort og praktiske løsninger godt ivaretatt.
Boligen kan enkelt tilbakeføres til opprinnelig planløsning med 4 soverom.
Stor usjenert terrasse med gode solforhold
P-kjeller og bod i kjelleren
Ved nedbetaling av fg blir felleskost. kr. 7.371,- ink oppvarming
Ta kontakt for visning
Salgsoppgaven beskriver vesentlig og lovpålagt informasjon om eiendommen
Se komplett salgsoppgaveNyttige lenker
Nærområdet
OBOS eiendomsmeglere - Hamar
Annonseinformasjon
| FINN-kode | 356755763 |
|---|---|
| Sist endret | 11. feb. 2026 03:16 |
| Referanse | 715240062 |
Annonsene kan være mangelfulle i forhold til lovpålagt opplysningsplikt. Før bindende avtale inngås oppfordres interessenter til å innhente komplett informasjon fra meglerforetaket, selger eller utleier.











































