Bildegalleri

Toppleilighet på 221 kvm med 90 kvm delvis overbygget terrasse mot syd og vest
Villa Tandberg
Nordberg - 221 kvm eksklusiv toppleilighet med panoramautsikt - Garasje - Heis - Squashhall
Prosjektets status
Planlegging
-
Salgsstart
-
Byggestart
-
Overtakelse
-
Nøkkelinfo
- Boligtype
- Leilighet
- Etasje
- 2
- Soverom
- 3
- Internt bruksareal
- 221 m² (BRA-i)
- Bruksareal
- 232 m²
- Eksternt bruksareal
- 11 m² (BRA-e)
- Balkong/Terrasse
- 90 m² (TBA)
Beskrivelse
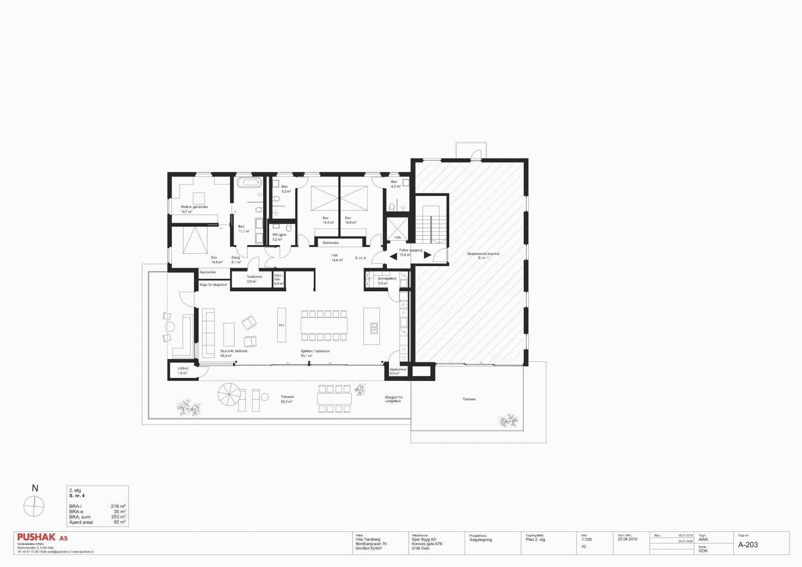
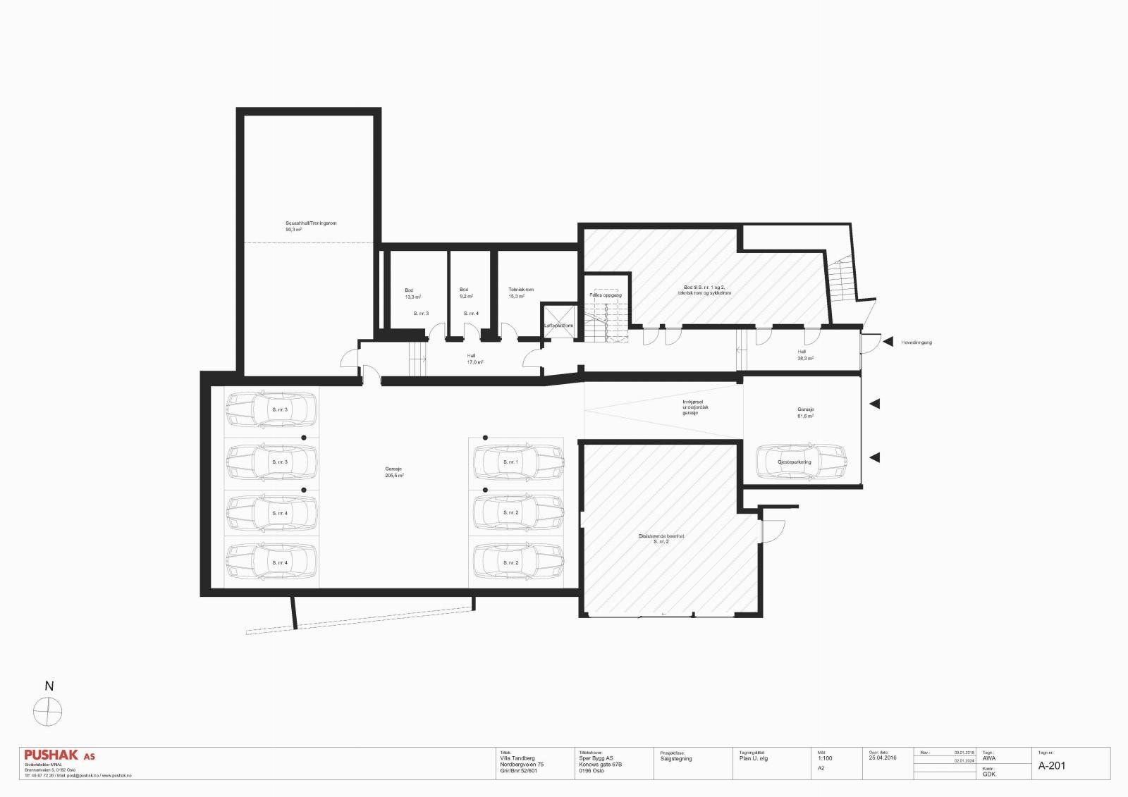
Toppleilighet på 221 kvm med 90 kvm delvis overbygget terrasse mot syd og vest. 180 graders panorama over byen og Oslofjorden, bare avbrutt av noen få trær på naboeiendommen i syd. Høy kvalitet og standard med svært gjennomtenkt planløsning, bl.a. lekkert håndlaget kjøkken fra EVI i åpen løsning med spisestuen. Eget grovkjøkken med blant annet Industrial oppvaskmaskin. Stor masteravdeling med soverom, lekkert bad /wc, walk-in garderobe, samt vaskerom. I tillegg to gjestesoverom/barnerom med tilhørende hvert sitt bad/wc. Takhøye eikedører, gjennomgående stor takhøyde, floor to ceiling vinduer mot utsikten, og snekkerbygd garderobeinnredning. Gjennomgående peis mellom stue og spisestue. I underetasje er det felles treningsstudio, squashhall med internasjonale mål, to garasjeplasser og stort bodareal. Heis fra garasjeplan.
Innhold
2. etasje (snr.4)
Hall, 2 soverom med 2 tilhørende bad/wc, master avdeling med soverom, walk-in garderober, bad, wc og vaskerom. Kjøkken, grovkjøkken, spisetue og peisestue, gjestetoalett.
Beskrivelse av prosjektet
Leilighetene i Villa Tandberg er utstyrt med detaljer i overflater, innredninger og utstyr som løfter boligene til et nivå man sjeldent opplever i nye byggeprosjekter. Materialvalgene er av gjennomgående høy kvalitet. Alle detaljer og valg av enkeltelementer er gjort med tanke på å underbygge en opplevelse av komfort og diskret luksus. Gode takhøyder med opptil 270 cm og takhøye dører skaper romopplevelse. Floor to ceiling vinduer mot utsikten og hagen tar naturen og lyset inn og forsterker "ute-inne" opplevelsen. Panoramavinduene har utvendig automatiserte screens som demper sollyset samtidig som man kan nyte utsynet. Toppleiligheten har en romslig, tilbaketrukket og trygg takterrasse på ca. 90 m2 med utsikt over byen og Oslofjorden. Her er det etablert varmt og kaldt vann. Terrassen leveres med eksklusive Kebony terrassegulv. Ved utforming av prosjektet er det lagt vekt på kvalitet, design og funksjonalitet. Stor fokus også på å skape boliger som skal tilfredsstille høye tekniske krav. Det er eksempelvis etablert behagelig og energieffektiv vannbåren varme i gulv, og hver av leilighetene henter energi fra varmepumpe tilknyttet hver sin energibrønn. Parkering i garasjeanlegg i byggets underetasje. Heis fra garasje til leilighetsplan.
Nordbergveien 75-77 ble oppført som representasjonsbolig for Tandberg radiofabrikk i 1957. Prosjektet er en ombygging og oppføring av påbygg til den opprinnelige Villa Tandberg. Teknisk sett gjelder rammetillatelsen som er gitt "ombygging og bruksendring av en tomannsbolig til en firemannsbolig med tilhørende fasadeendringer".
Overtagelse / Ferdigbefaring
Forventet ferdigstillelse 2. kvartal 2024.
Nyttige lenker
Nærområdet
Advokat Ek
Annonsene kan være mangelfulle i forhold til lovpålagt opplysningsplikt. Før bindende avtale inngås oppfordres interessenter til å innhente komplett informasjon fra meglerforetaket, selger eller utleier.












































