Bildegalleri

En velholdt leilighet med åpen og fin planløsning over to etasjer.
Solgt
Bjerget
Lys og romslig 3-roms selveierleilighet over to plan med to solrike verandaer, garasje og sentral beliggenhet!
Prisantydning4 190 000 kr
Nøkkelinfo
- Boligtype
- Leilighet
- Eieform
- Eier (Selveier)
- Soverom
- 2
- Internt bruksareal
- 123 m² (BRA-i)
- Bruksareal
- 128 m²
- Eksternt bruksareal
- 5 m² (BRA-e)
- Balkong/Terrasse
- 21 m² (TBA)
- Etasje
- 2
- Byggeår
- 1984
- Energimerking
- G - Oransje
- Rom
- 3
- Tomteareal
- 1 428 m² (eiet)
Fasiliteter
Balkong/Terrasse
Garasje/P-plass
Ingen gjenboere
Offentlig vann/kloakk
Peis/Ildsted
Sentralt
Bademulighet
Turterreng
Om boligen
Velkommen til Nedre Bjerget 16!
Velkommen til denne romslige 3-roms selveierleiligheten beliggende i byggets 2. og 3. etasje. Leiligheten ligger i et meget sentralt og rolig område med gangavstand til det meste, samt gode pendlermuligheter. Sameiet ligger høyt i terrenget og boligen er gjennomgående lys.
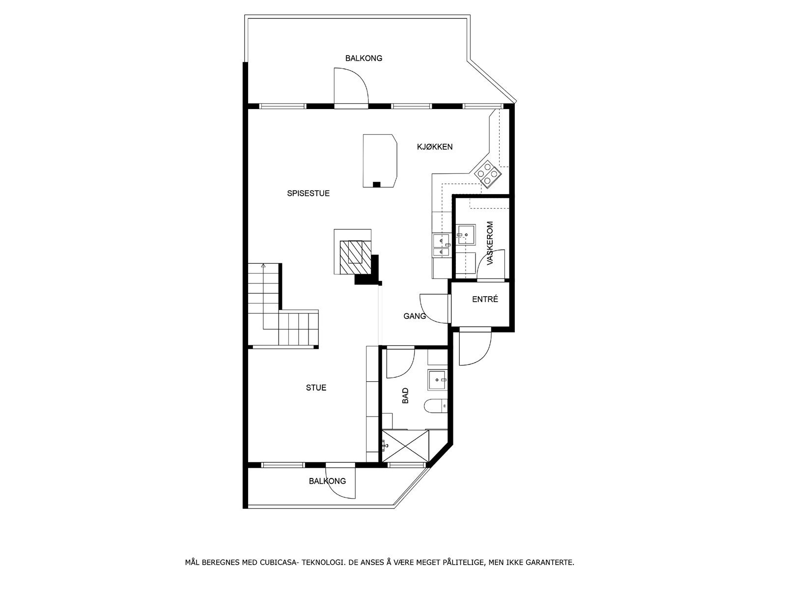
Selv byr boligen på en innbydende, god planløsning over to plan. Stuen har utgang til veranda med morgensol, og fra den romslige spisestuen er det adkomst til solrik, sørvestvendt veranda. Det er kjøkkeninnredning med god kvalitet, og mellom kjøkken og spisestue er en hyggelig peis. Videre er et tidløst bad og eget vaskerom.
Leilighetens 2. etasje er i dagens planløsning innredet med to soverom, alkove og walk-in. Det er parkering i garasje og lagring i utvendig bod.
Velkommen til denne romslige 3-roms selveierleiligheten beliggende i byggets 2. og 3. etasje. Leiligheten ligger i et meget sentralt og rolig område med gangavstand til det meste, samt gode pendlermuligheter. Sameiet ligger høyt i terrenget og boligen er gjennomgående lys.
Selv byr boligen på en innbydende, god planløsning over to plan. Stuen har utgang til veranda med morgensol, og fra den romslige spisestuen er det adkomst til solrik, sørvestvendt veranda. Det er kjøkkeninnredning med god kvalitet, og mellom kjøkken og spisestue er en hyggelig peis. Videre er et tidløst bad og eget vaskerom.
Leilighetens 2. etasje er i dagens planløsning innredet med to soverom, alkove og walk-in. Det er parkering i garasje og lagring i utvendig bod.
NB: Knappen for å vise hele beskrivelsen har kun en visuell effekt.
NB: Knappen for å vise hele beskrivelsen har kun en visuell effekt.
Salgsoppgaven beskriver vesentlig og lovpålagt informasjon om eiendommen
Se komplett salgsoppgaveNyttige lenker
Nærområdet
Nordvik Moss
Vi vet hva det er verdt
Prisstatistikk
Nedre Bjerget 16
7 935 klikk
på annonsen
36 517 kr
prisantydning per kvadratmeter
Prisfordeling
Pris per m² ligger 15 483 kr under snittet for leiligheter i Moss.
Grafen viser antall leiligheter solgt i Moss siste året fordelt på pris per m² - totalt 739 leiligheter
Antall boliger
Kvadratmeterpris tilsvarer prisantydning pluss fellesgjeld per kvadratmeter (p-rom eller BRA-i). Prisene i grafen er avrundet til nærmeste 1000 kr.
Annonseinformasjon
| FINN-kode | 356022406 |
|---|---|
| Sist endret | 21. aug. 2025 11:34 |
| Referanse | 41-0065/24 |
Annonsene kan være mangelfulle i forhold til lovpålagt opplysningsplikt. Før bindende avtale inngås oppfordres interessenter til å innhente komplett informasjon fra meglerforetaket, selger eller utleier.







































