Bildegalleri

Velkommen til Steinan Park!
Steinan Park
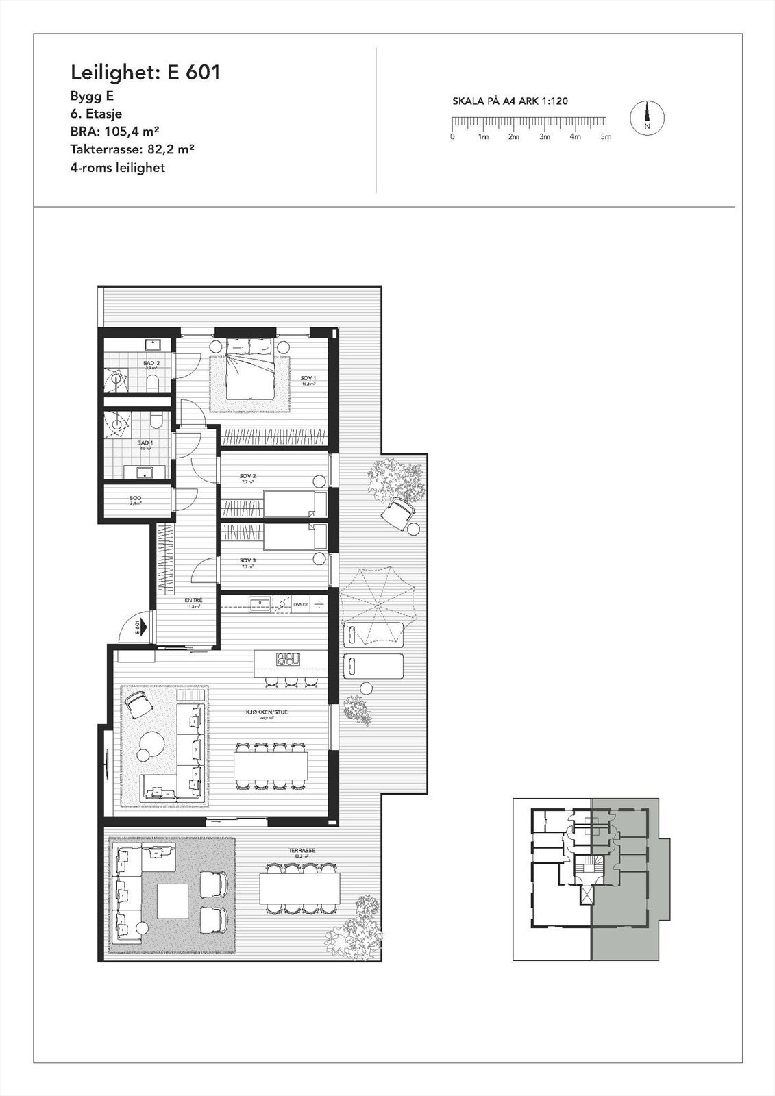
Nydelig toppleilighet på 106kvm med en solrik privat takterrasse på hele 88kvm | 2 bad og heis
Prisantydning9 700 000 kr
Nøkkelinfo
- Boligtype
- Leilighet
- Eieform
- Eier (Selveier)
- Soverom
- 3
- Internt bruksareal
- 105 m² (BRA-i)
- Bruksareal
- 110 m²
- Eksternt bruksareal
- 5 m² (BRA-e)
- Balkong/Terrasse
- 82 m² (TBA)
- Etasje
- 6
- Byggeår
- 2025
- Rom
- 4
- Tomt
- Eiet
Fasiliteter
Takterrasse
Balkong/Terrasse
Barnevennlig
Bredbåndstilknytning
Garasje/P-plass
Hage
Heis
Kjæledyr tillatt
Ingen gjenboere
Kabel-TV
Offentlig vann/kloakk
Parkett
Rolig
Sentralt
Utsikt
Vaktmester-/vektertjeneste
Turterreng
Lademulighet
Balansert ventilasjon
Om boligen
Delikat og svært gjennomtenkt toppleilighet i 6. etasje med en solrik privat takterrasse på hele 88 kvm. Leiligheten inneholder en romslig entré, tre flotte soverom, to pent flislagte bad og en stor åpen stue/kjøkken løsning.
Prosjektet Steinan Park er en sjelden mulighet hvor du har tilgang til natur, men også bor sentralt. Det blir en ny bydel med mange etablerte og varierte tilbud. Her blir det enkelt å bo med alt du trenger til daglig som nærtorg, barnehage og dagligvare. Her vil du bo omgitt av rause friområder med gangavstand til flere treningsanlegg. Fra Steinan Park tar det bare noen minutter til Nardosenteret, Moholt eller Risvollan.
Ta kontakt for uforpliktende og hyggelig gjennomgang av prosjektet!
Prosjektet Steinan Park er en sjelden mulighet hvor du har tilgang til natur, men også bor sentralt. Det blir en ny bydel med mange etablerte og varierte tilbud. Her blir det enkelt å bo med alt du trenger til daglig som nærtorg, barnehage og dagligvare. Her vil du bo omgitt av rause friområder med gangavstand til flere treningsanlegg. Fra Steinan Park tar det bare noen minutter til Nardosenteret, Moholt eller Risvollan.
Ta kontakt for uforpliktende og hyggelig gjennomgang av prosjektet!
NB: Knappen for å vise hele beskrivelsen har kun en visuell effekt.
NB: Knappen for å vise hele beskrivelsen har kun en visuell effekt.
Salgsoppgaven beskriver vesentlig og lovpålagt informasjon om eiendommen
Se komplett salgsoppgaveNyttige lenker
Nærområdet
Heimdal Eiendomsmegling avd. Rosten
Annonseinformasjon
| FINN-kode | 355879977 |
|---|---|
| Sist endret | 20. nov. 2025 10:59 |
| Referanse | 1-23-1587 |
Annonsene kan være mangelfulle i forhold til lovpålagt opplysningsplikt. Før bindende avtale inngås oppfordres interessenter til å innhente komplett informasjon fra meglerforetaket, selger eller utleier.













