Bildegalleri

Velkommen til Eikåsveien 54! -Presenteres av Elisiff Wennersgaard v/Krogsveen
Solgt
Bergertoppen
Attraktiv 4-roms hjørneleilighet med alt på en flate. Vestvendt balkong, utvendig bod og garasjeplass m/el-billader
Prisantydning5 100 000 kr
Nøkkelinfo
- Boligtype
- Leilighet
- Eieform
- Eier (Selveier)
- Soverom
- 3
- Internt bruksareal
- 95 m² (BRA-i)
- Bruksareal
- 100 m²
- Eksternt bruksareal
- 5 m² (BRA-e)
- Balkong/Terrasse
- 16 m² (TBA)
- Etasje
- 2
- Byggeår
- 1998
- Energimerking
- E - Rød
- Tomteareal
- 4 570 m² (eiet)
Fasiliteter
Balkong/Terrasse
Barnevennlig
Bredbåndstilknytning
Garasje/P-plass
Kjæledyr tillatt
Kabel-TV
Offentlig vann/kloakk
Parkett
Peis/Ildsted
Rolig
Sentralt
Bademulighet
Turterreng
Lademulighet
Om boligen
Eikåsveien 54 er en lys og pen vestvendt 4-roms hjørneleilighet med alt på en flate. Leiligheten har en hyggelig og solrik balkong, garasjeplass med el-billader og en sentral beliggenhet på Berger. Det er et attraktivt og barnevennlig boområde på Nesodden med kort vei til barnehage, skole, idrettsanlegg, badestrender og servicetilbud. Umiddelbar nærhet til kollektivtransport som tar deg inn til Aker Brygge eller Lysaker.
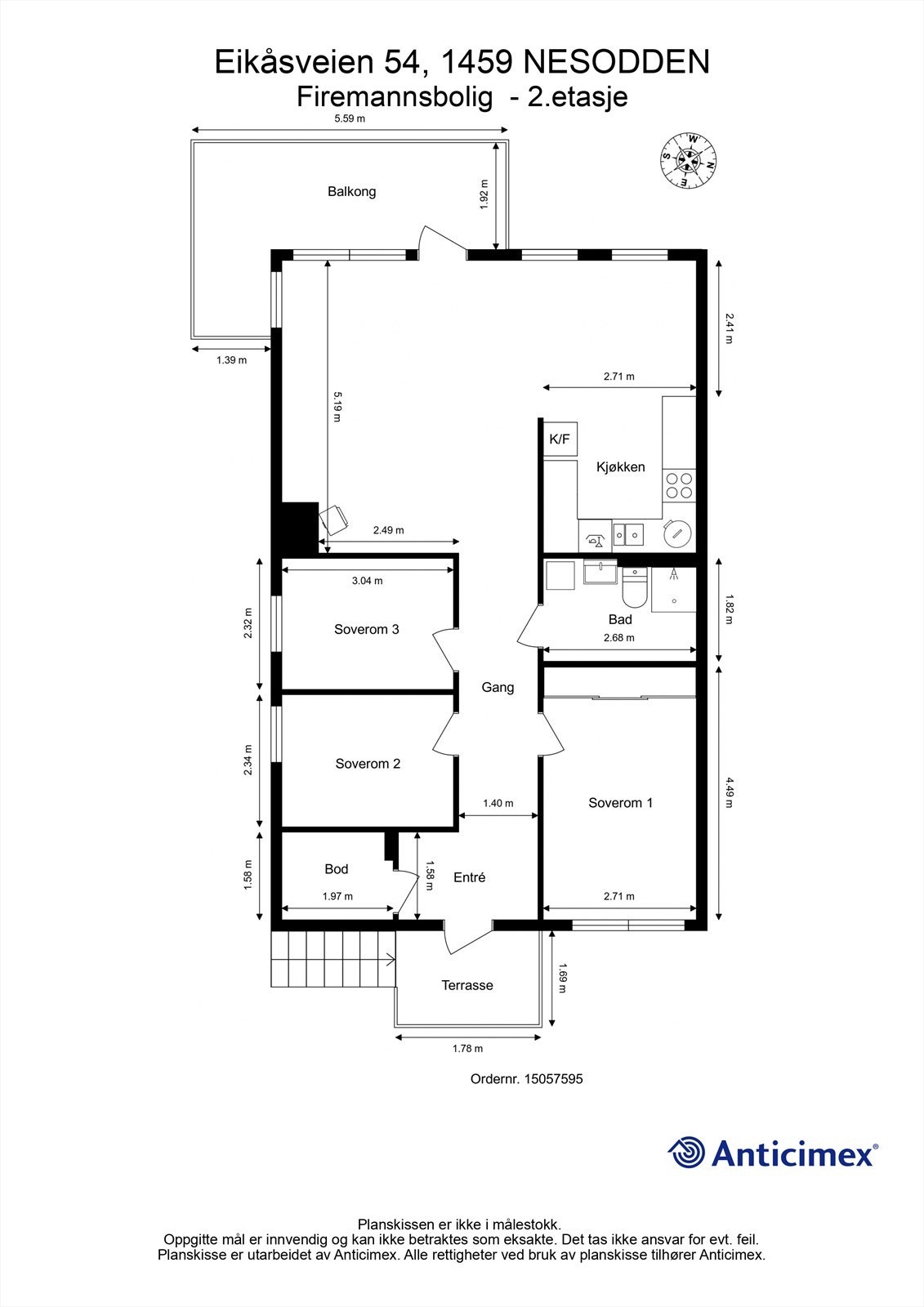
Leilighet er beliggende i byggets 2. etasje med adkomst via utvendig trapp til inngangsparti. Leiligheten holder en god standard med en arealeffektiv planløsning, og består av entré, gang, romslig og lys stue med delvis åpning til kjøkkenet, delikat baderom (oppgradert i 2019) og 3 soverom. Utgang fra stuen til solrik balkong hvor lange sommerdager kan nytes.
Leilighet er beliggende i byggets 2. etasje med adkomst via utvendig trapp til inngangsparti. Leiligheten holder en god standard med en arealeffektiv planløsning, og består av entré, gang, romslig og lys stue med delvis åpning til kjøkkenet, delikat baderom (oppgradert i 2019) og 3 soverom. Utgang fra stuen til solrik balkong hvor lange sommerdager kan nytes.
NB: Knappen for å vise hele beskrivelsen har kun en visuell effekt.
NB: Knappen for å vise hele beskrivelsen har kun en visuell effekt.
Salgsoppgaven beskriver vesentlig og lovpålagt informasjon om eiendommen
Se komplett salgsoppgaveNyttige lenker
Nærområdet
Krogsveen Nesodden
Velkommen til en enklere boligreise.
Annonseinformasjon
| FINN-kode | 355669297 |
|---|---|
| Sist endret | 03. sep. 2024 06:18 |
| Referanse | KR51.2438 |
Annonsene kan være mangelfulle i forhold til lovpålagt opplysningsplikt. Før bindende avtale inngås oppfordres interessenter til å innhente komplett informasjon fra meglerforetaket, selger eller utleier.























