Bildegalleri

Tegneby & Grønnerød Landbruksmegling har gleden av å presentere landbrukseiendommen "Østbråten", idyllisk beliggende ca 10 kilomter fra Mysen sentrum
Østbybråten, Hærland | 68 daa fylldyrket og 111 daa produktiv skog | Tilrettelagt for hestehold i vakkert kulturlandskap
Nøkkelinfo
- Boligtype
- Gårdsbruk/Småbruk
- Eieform
- Eier (Selveier)
- Internt bruksareal
- 123 m² (BRA-i)
- Bruksareal
- 123 m²
- Balkong/Terrasse
- 52 m² (TBA)
- Byggeår
- 1873
- Tomteareal
- 200 000 m² (eiet)
Fasiliteter
Adresse
Mellebyveien 214
1878 Hærland
Matrikkel
Gnr. 300 bnr. 9 i Indre østfold kommune
Østbybråten, Hærland. 68 daa fylldyrket | 111 daa produktiv skog | Velholdt våningshus | stor og velholdt låve m/bl.a. stall og 4 store bokser | Verkstedsbygg | Redskapshus | Stabbur | Pumpehus og potetkjeller
Gården Østbybråten, Mellebyveien 214 ligger i enden av blindvei i et tradisjonelt landbruksområde med flott utsyn over vakkert kulturlandskap. Den dyrkede marken utgjør totalt 68,3 daa og er sammenhengende med unntak av et mindre skifte lenger vest på eiendommen. Tidligere var det adkomst til dette skiftet igjennom egen skog, men nå benyttes adkomst fra Østbyveien. Skiftene er lett tilgjengelige for maskiner, har brukbar arrondering, og ansees bra egnet for moderne redskap. Dyrket mark er systematisk drenert, og noe med eldre drenering. Eier benytter selv arealet rundt tunet til beiter og grasproduksjon. Her er det rundpaddock også er et laget en kuppert treningsløype for hester på ca. 650 meter rundt jordet. Det er i tillegg 2 uteganger for hester. Mulighet for gode leieinntekter for de som vil drive med hest. 2 skifter på østsiden for tunet er bortleid til nabo, som benytter dette til kornproduksjon. Det foreligger ingen leieavtale på dette. Det produktive skogarealet utgjør 111 dda og fordeler seg på 2 teiger. Det er en teig på vestsiden for dyrket mark og en teig på østsiden av dyrket mark og tunet, samt noe kantsoner mot nord. Det er således korte drifteveier for uttak av virke. Selve tunet er meget romslig og rammes fint inn av bygningsmassen. Parkeringsforholdene er meget gode, og det er enkel tilgang til både låve, verkstedbygg og våningshus. Hagemessig pent opparbeidet med plenarealer og diverse beplantninger. Solforhold er svært gode og fra tunet er det vidstrakt utsikt over det omkringliggende kulturlandskapet.
Den eldste delen av våningshuset er fra 1873, og ble ombygget og rehabilitert i 1920. Etter den tid er det foretatt regelmessig oppgraderinger og moderniseringer, samtidig som byggets opprinnelige arkitektur er bevart. Våningshuset går over to plan, og har et samlet BRA-I på 123 kvm. Hvit kjøkkeninnredning med slette fronter, og laminat benkeplate. Flisplater mellom over- og underskap. Bad i 2. etg. er utstyrt med dusjkabinett, wc og opplegg for vaskemaskin. Utstyr og innredninger holder en normalt god standard, og vedlikeholdet er fulgt opp. Låven er bygget i 1968, og har et samlet BTA på 517 kvm. 2. etg. har en fin kjørebru med enkel adkomst via støpt låvebru. Vedlikeholdet er gjennomgående godt og låven har en god bruksverdi. Verkstedbygget er oppført ca. 1980. Verkstedet er godt innredet med smøregrav, og romslig lakkeringsverksted som benyttes til karosseriarbeider og klargjøring for lakkering med en lakkboks ved siden. Redskapshuset er flyttet og gjenoppført i 1979, og har en god nytteverdi for dagens drift. Stabburet har en grunnflate på 19 kvm og benyttes til lagring av lettere gods. Pumpehus for vann med grunnboret brønn og potetkjeller er plassert i skogkanten syd for tunet.
Beliggenhet, adkomst
Eiendommen har en rolig og landlig beliggenhet på Hærland. Det er ca. 1 km til E-18, med ca. 7-8 minutters kjøring til Mysen sentrum med butikker og forretningssenter, kafeer, skoler, togstasjon, kino, bibliotek, museum m.m. Det er kurante adkomstforhold til eiendommen. Mellebyveien er parallellvei til E18. Forøvrig et rolig og fint boområde. Området består hovedsakelig av landbruksområder og spredt boligbebyggelse, glimrende egnet for ale typer friluftsliv til ale årstider. Flotte natur- og friluftsområder med merkede løyper, fiskevann og jak terreng. Rikt dyreliv, fine muligheter for sopp og bærplukking Kort vei til Trømborgfjella som har rike skimuligheter om vinteren og er en perle om sommeren med fiske og friluftsliv. Lundebyvannet ligger også rett i nærheten med fine bademuligheter.
Type, eierform og byggeår
Landbrukseiendom Selveier, oppført i 1873
Bygninger
Våningshus:
1. etg.:
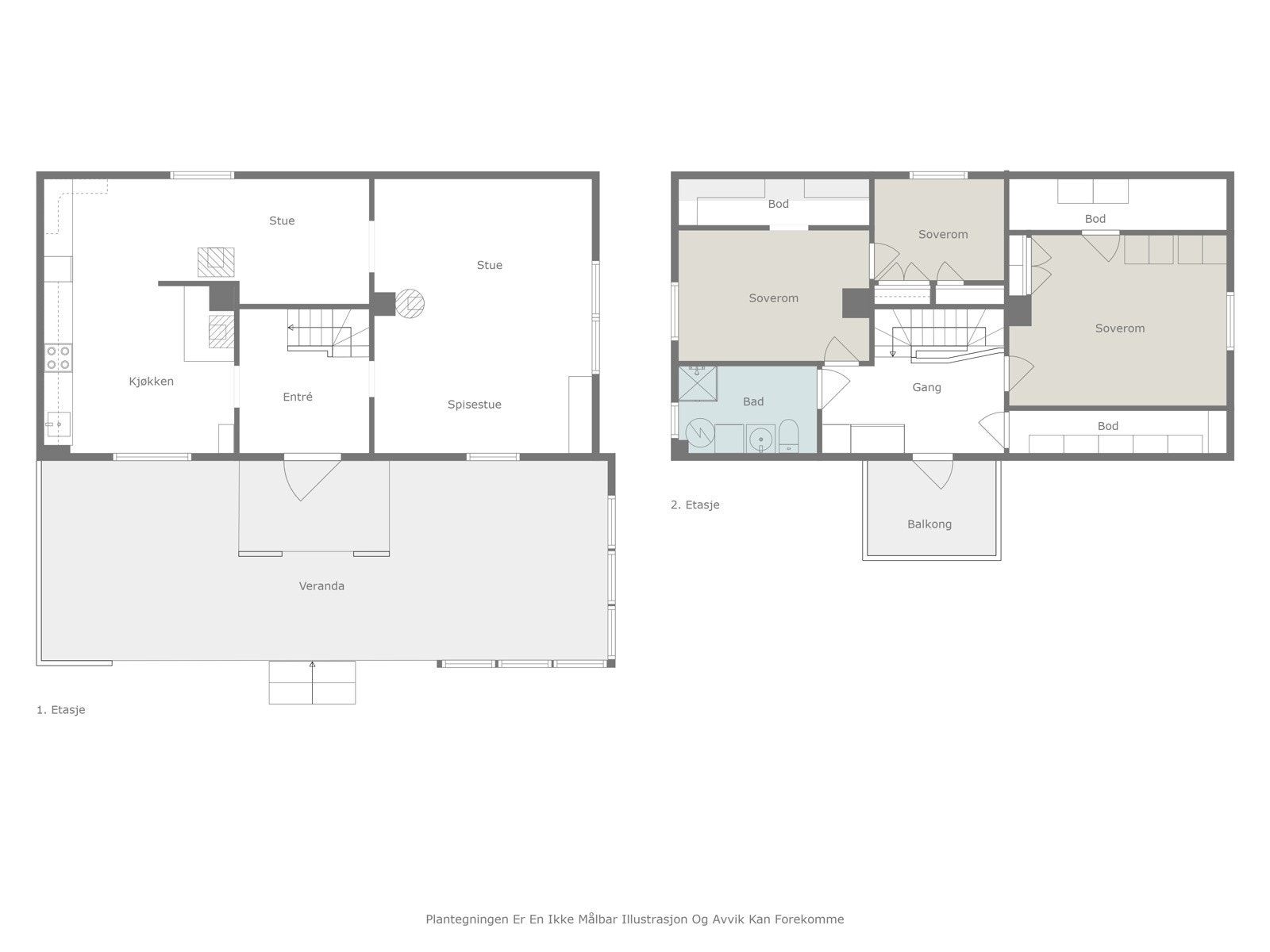
Romslig gang/hall med trapp opp til 2. etg. - kjøkken med god arbeidsplass og spiseplass - 2 stuer
2. etg.:
Trapperom m/lufteveranda - bad med dusj og opplegg for vaskemaskin - 3 soverom og boder
Låve:
1. etg.:
Stall og sælarom - vaskerom - lager/tidligere grisehus - hunderom - lager/teknisk rom/flisrom
2. etg.:
Kjørebru med god lagringsplass - teknisk rom - gang - verksted - tidligere kyllingrom - innredet rom
Redskapshus med verksted:
1. etg.:
Lakkeringsverksted - lakkboks - lagerrom - hvilerom - ventilasjonsrom - verksted
Redskapshus:
1. etg.:
Redskapsrom
Stabbur:
1. etg.:
Lagerrom
Pumpehus:
1. etg.:
Teknisk rom/trykktank og nedsenket vannpumpe
Potetkjeller:
1. etg.:
Lagerrom
Arealer og fordeling per etasje
Primærrom: 113 kvm, Bruksareal: 123 kvm, BRA-i: 123 kvm , TBA: 52 kvm
Byggemåte og standard på bygninger
Våningshus:
Utvendig:
Det er byggegrunn på fjell. Bygningen har naturstein (gråstein). Mot syd er grunnmuren murpusset på utsiden, og her er det satt inn en dør mot lite kjellerrom. Bygningen er rektangulær og enkel konstruksjonsmessig. Yttervegger er oppført i både tømmer og grovt bindingsverk, utvendig kledd med stående trekledning (tømmermannspanel). Delen mot syd er i følge opplysninger fra selger oppført i tømmer, og grovt bindingsverk mot nord. Tak er bygget som saltak med oppløft på begge sider. Fra oppløft mot vest er det i 2. etg. en luftebalkong, som hviler på søyler. Denne balkongen er tekket med sveisepapp. I 1. etg. ved inngangsparti er det terrasse med takoverbygget del mot syd. Boligen fremstår med et vedlikeholdsbehov og påkostninger må påregnes.
Innvendig:
Det er innvendige gulver i begge etasjer med vinyl gulvbelegg, unntatt fra gulv i boder med laminat gulv. Det er vegger i 1. etg. med malte plater og malt strie på kjøkken og tv-stue. Stue har malt tapet. Det er malt trepanel på vegger i entré. Himling med malte flater og takess. 2. etg. har vegger med malt tapet bortsett fra boder med malt trepanel og smartpanel. Himling med takessplater. Etasjeskiller er av trebjelkelag. Det er ikke foretatt radonmålinger og bygget er heller ikke utført med radonsperre. Boligen har 2 stk. mursteinspiper. Piper ble rehabilitert i 2021 med nye inner-rør i stål. Det er montert ved/peisovn (3 stk). En på kjøkken, tv-stue og stue. Vedovn i stue er fra 2021. Bygningen har krypkjeller under trebjelkelag og stubbegulv. Boligen har malt tretrapp og malte innvendige fyllingsdører.
Våtrom/vaskerom:
Badet antas å være utbedret på 90-tallet. Badet har gulv med vinylbelegg, et sluk i gulv. Vegger med respatex plater (våtromsplater) og himlinger med trepanel. Rommet er innredet med gulvmontert toalett, dusjkabinett og vask på vegg. plass og opplegg for vaskemaskin. Varmtvannsbereder på 200 liter er også plassert her.
Kjøkken:
Kjøkkeninnredning med slette lysmalte fronter, benkeplate i laminat med nedsenket beslag med oppvaskkum og skylle kum. Det er flisplater mellom under- og overskap. Det plass og opplegg for oppvaskmaskin og komfyr med ventilator over.
Tekniske installasjoner:
Innvendige vannledninger er av kobber. Det er underskap i kjøkken, som er koblet på vannstoppventil til oppvaskmaskin med føler på gulv. Stoppekran for hovedvann på låve. Det er avløpsrør av plast. Boligen har naturlig ventilasjon med ventiler i vegger og i topp karm på enkelte vinduer. Varmvannstanken er på ca. 200 liter, montert i 2022. Det er åpent el-anlegg på vegger og sikringsskap plassert på gang i 2. etg. med skrusikringer. Det er foretatt el-kontroll i 2019, og det er røykvarslere i etasjene og pulver brannslokningsapparat.
Låve/driftsbygning:
Låve/driftsbygning er bygget 1968. Bygningen er oppført med støpt dekke over hele 1.etg. Det er mot syd støpt møkkakjeller under del som tidligere har vært i bruk til grisehus. Her er det møkkapumpe i gavl mot syd denne for oppkobling mot kraftoverføringsalkesel på traktor. (det er ikke utvendig port for gjødselkjeller) 1.etg er opplyst å være med doble vegger i leca med isolasjon mellom blokkene. Veggene er murpusset på innsiden og utsiden. De bærende konstruksjonene er betong pilarer og støpte dragere under armert dekke mot 2.etg. 2.etg har støpt dekke i hele etasjen og yttervegger og takkonstruksjon her er bygget med sperrebindkonstruksjon (buer) som er fundamentert på det støpte dekket. Vegger er med utfyllende bindingsverk utvendig kledd med stående trekledning bortsett fra bakvegg som er kledd med metallplater. Tak er tekket med aluminiums takplater. Det er støpt låvebru på gavl mot nord. Under låvebru er det et rom som benyttes til lager/vedskjul. Det er mot låvebru bak vedskjul et åpent rom som benyttes for utegang til hest. Fra låvebru er det adkomst til 2.etg med 2 stk slagdører i tre en er isolert, dører har bredde på ca 3,3 meter og høyde ca 2,9 meter. Det er på siden av låvebru over utegang for hest et isolert rom som tidligere har blitt benyttet for fyrrom til kylling rom. Rommet har adkomst via gangdør og det er et vindu i rommet.
2.etg.
2.etg er opprinnelig bygget til produksjon av slaktekylling og har støpt dekke på hele arealet, det er sluk i gulv for rengjøring av rommet. Opprinnelig dekket kyllingproduksjonen hele arealet bortsett fra gangarealer og et teknisk rom, nåværende eier har laget er verksted rom ved inngangsparti og avdelt et rom i sydende av låve dette er benyttet til museum/hobbyrom. I teknisk rom er det sikringsskap med 2.stk strømmålere for bolig og driftsbygning. Yttervegger opplyses i tidligere takst å være isolert med 20 cm mineralull og loft med 30 - 35 cm mineralull. Vegger og himling er kledd med vaskbar duk bortsett fra nedre del av vegger som er kledd med kryss finner. 2.etg benyttes i dag til lager av biler og diverse.
1.etg
Det er stall mot nord på ca 89 m² stallen har 4 stk romslige hestebokser og en ponnyboks . Stallen ble oppgradert i 2010 med hestebokser i tre + ventilasjon i vegger, det ble også satt inn dør fra stall til vaskerom. Fra stall er det også adkomst til et rom på ca. 6m² til seletøy samt vaskerom på ca. 11m² her er det varmtvannsbereder på ca. 200 liter, det er sluk i gulv med avløp til gjødselkjeller. Videre er det adkomst til tidligere fjøs, ( rommet er i dag på ca. 80 m²) opprinnelig bygget for storfe og senere brukt til grisehus. Innredning er fjernet og rommet brukes i dag til lagerrom. Det er avdelt 2 rom mot syd et på ca. 6 m² som i dag benyttes til hundehus og et på ca. 23 m² som benyttes til lagerrom og teknisk rom, her er det montert rensefilter for vann, vann fordeles herifra til bygningene på eiendommen. Det er mot syd et tilbygg på ca. 23 m² som i dag benyttes til flisrom. Rommet har støpt dekke, vegger i bindingsverk utvendig kledd med stående trekledning tak som saltak tekket med stål takplater. Det er slagdør i tre mot syd på ca. 4 meters bredde og ca. 5 meters høyde. På nord/vestre hjørne er det laget en utegang i tilknytning til takoverbygg ved låvebru, utegangen er inngjerdet med PVC (plast) gjerde og plassen er gruset opp det opplyses at det er lagt duk under grusdekke. Det er også laget en utegang med gruset dekke og duk under på sydsiden av låve her er det takoverbygg med futura rundbuehall. Det er i tillegg på nordsiden av eiendommen laget en rundpadokk på ca. 17 meter i diameter med gruset dekke og fletverksgjerde på 1,8 meters høyde rundt. Det er laget en gruset treningsbane rundt ene jordteigen på ca. 650 meter. Uteganger, paddock og treningsbane legges inn i verdien på låve da dette er en del av dagens drift. Bygningen er normalt vedlikeholdt og har en god nytteverdi for dagens drift.
Verkstedbygg:
Bygningen er oppført ca. 1980 og er på 1.etg bygget med en vinkel mot gårdsplass. Bygningen er bygget med støpt plate på mark konstruksjon. Gulvet er isolert mot grunn i følge tidligere takst. Yttervegger oppført i bindingsverk utvendig kledd med stålplater. Opplyst å være isolert med ca. 150 mm mineralull. Takkonstruksjon bygget som saltak takket med stål takplater. Loftet over verksted og lakkeringsavdeling er isolert med ca. 200 mm mineralull i følge tidligere takst.
Bilverksted :
De innvendige veggene i verkstedet er mest sannsynlig kledd med pernit-plater, som kan være asbestholdige. Himlinger med gipsplater. Veggene er malt innvendig og eventuell asbest i plater er bare problem ved bearbeiding eller demontering . Verkstedet har stor folldeport mot gårdsplass med bredde på ca. 3,65 meter og høyde ca. 4 meter. Det er ved siden av denne en plassbygget slagdør i tre med bredde 2,37 meter og høyde 2,26 meter. Mot carport/takoverbygg i nord er det en foldeport med bredde ca. 3,1 meter og høyde ca. 3,4 meter Det er 6 stk vinduer med karmer og rammer i tre.
Verkstedet har løftebukk og en godt innredet med smøregrav på innsiden av foldeport mot gårdsplass, smøregraven har dybde 1,6 meter. Det presiseres at det ikke er montert godkjent oljeutskiller, men verkstedet ble imidlertid oppført før oljeutskiller ble påbudt. Eier har likevel installert kum med dykker, og mulighet for å skille ut olje og urenheter i avløpet fra verkstedet. Det er på innsiden av slagdør i tre en 4-søylet løftebukk. I tak er det løpekatt med kjettingtalje. Bra innredet verksted med arbeidsbenker og faste innredninger.
Det er godt med belysning i tak og det er eget sikringsskap med strømmåler her. Det er innlagt vann med varmt og kaldt vann. (vann er i dette bygget ikke renset gjennom vannrenseanlegg) Rommet varmes opp med luft til luft varmepumpe. Verkstedet er p.t. utleid uten skriftlig avtale, men leietaker kan flytte ut før overtagelse av eiendommen. Her er det mulighet for gode leieinntekter.
Lakkeringsverksted:
Ved siden av lakkboks er det et romslig verksted som benyttes til karosseriarbeider og klargjøring for lakkering. Hallen ble forlenget med et tilbygg i 2004. Innvendig er vegger kledd med stålplater, det er gips i himling. Innerst i hall er det blanderom for lakk og et hvilerom med kjøkkeninnredning(denne ble montert i 2024) Over rommene er det en hems som benyttes til lagring. Det er adkomst til rommet via foldeport med bredde ca. 3 meter og høyde ca. 3,2 meter. Innvendig takhøyde varierer mellom 3,4 meter på tilbygg mot øst og 4,2 meter i resterende hall. Det er små vinduer oppe på vegg 4 stk fastkarmvinduer og 3 stk åpningsvinduer. Det er godt med lys i himling og det er eget sikringsskap med strømmåler. Det er innlagt vann til kjøkken. Rommet varmes opp med luft til luft varmepumpe. Lakkeringsverkstedet er p.t. utleid, og det er 3 måneders oppsigelse.
Lakkboks:
Det er lakkboks med egen port mot øst og adkomst via dør fra lakkverksted. Lakkboksen er prefabrikkert og montert inn i rommet. Ventilasjonsanlegg for lakkboks og kompressor er installert i rom mellom lakkboks og bilverksted, dette rommet har adkomst via slagdør fra gårdsplass.
Carport mot vest:
Takoverbygg mot vest er enkelt oppført med gruset singlet gulv, nedgravde telefon stolper i front, det er takkonstruksjon med pulttak tekket med stål takplater. ( på befaring registreres det utettheter i taktekking og det må påregnes utbedring) På gårdskart.no ser det ut til at bygningen på nordside ligger noe over grense mot nabo. Det vil evt. være kjøpers ansvar å tinglyse en grensejustering. Bygningen er normalt vedlikeholdt.
Redskapshus:
Redskapshus opplyses at er flyttet og gjenoppført i 1979. Bygget er oppført med støpt plate på mark, vegger med grovt bindingsverk utvendig kledd på 2 vegger med stålplater og 2 vegger med slett låvepanel. Tak bygget som saltak og pulttak på baksiden tekket med stål takplater. Det er adkomst i front med 2 stk plassbygde slagdører en med bredde 2,6 meter og høyde 2,6 meter og en med bredde 3,3 meter og høyde 3,1 meter. Det er også en gangdør i bakkant på bygning. Merknad: Trekledning ligger nærme bakke og det registreres råte i enkelte kledningsbord. Bygningen har en god nytteverdi for dagens drift.
Stabbur:
Stabbur med ukjent byggeår. Stabburet er oppført på betongpillarer, gulv/etasjeskiller i treverk. Yttervegger med tømmer bortsett fra gavler 2.etg med bindingsverk . Utvendig kledd med stående trekledning. Tak bygget som saltak tekket med betongtakstein. Innvendig er det tregulver i grov plank og laftede tømmervegger. Det er enkel trapp i tre til 2.etg. Bygget har store skjevheter da bygget har sunket ned i fremkant, nåværende eier har støpt nye fundamenter her og det gjenstår og få hevet bygget i fremkant. Bygget har nytteverdi for lagring av lettere gods.
Pumpehus og potetkjeller:
Pumpehus for vann med grunnboret brønn er plassert i skogkant syd for tunet. Bygget er oppført med støpt grunnmur med takoverbygg i tre tekket med stål takplater. Trykktank er plassert her det opplyses at vannpumpe i borehull er skiftet i 2024. Ved siden av pumpehus er det en potetkjeller.
Potetkjeller er oppført med kjeller med jordgulv og gråsteinsmur, Det er støpt dekke mot 1.etg her er yttervegger oppført i grovt reisverk utvendig kled med stående trekledning. Tak bygget som saltak tekket med stål takplater. Potetkjeller er benyttet som grisehus og det er inngjerdet rundt for utegang .
Merknad: mur er undergravd og ytterkledning er dårlig, det må påregnes utbedringer. Eier opplyser at yttervegger skal kles med stålplater før salg.
Oppvarming
Boligen varmes opp med vedfyring og luft til luft varmepumpe som er montert på vegg tv- stue. Varmepumpe montert år 2010.
Areal og eierform (opplysninger om evt. feste)
Areal: 200 000 kvm, Eierform: Eiet tomt
Tun, jord og skog
Tun:
Tunet har enkel og grei adkomst. Tunet rammes fint inn av bygningsmassen og det er svært gode parkeringsforhold. Tilgang og adkomst til både låve, redskapsgarasje/verksted og våningshus er enkel og den store gårdsplassen er svært godt egnet for større kjøretøyer. Hageanlegget er opparbeidet med av plen og diverse beplantning. Solforholdene er svært gode og er det vidstrakt utsikt ut over det omkringliggende kulturlandskapet.
Dyrket mark:
Dyrket mark er sammenhengende, med unntak av et mindre skifte lenger vest på eiendommen. Tidligere var det adkomst til dette skiftet gjennom egen skog, men nå benyttes adkomst fra Østbyveien. Dyrket mark har brukbar arrondering og anses som bra egnet for moderne redskap. På skifte mot øst er det en åker holme og jord teig på ca. 24 daa som er lagt i gras antas enkelte steder å være grunn jord med fjell i dagen. Dette gir noe tunge driftsforhold på disse skiftene. Det er foretatt noe nydyrking på 50 tallet. Det opplyses at dyrket mark er systematisk drenert noe med eldre drenering. På jordskifte ved tun (i gras) er drenering i dårlig tilstand og utbedringer må påregnes. Jordarten er opplyst å være leirjord til sand/moldjord. Og det antas at avlingsnivået er middels for distriktet. Eier benytter selv areal rundt tunet til beiter og grasproduksjon. Her er det også laget en vei/treningsløype på ca. 650 meter rundt jordet. 2 skifter på østsiden for tunet er bortleid til nabo som benytter dette til kornproduksjon. Det foreligger ingen leieavtale på dette.
Skog:
Skogen er fordelt på 2 teiger en på vestsiden for dyrket mark og en på østsiden av dyrket mark og tunet samt noe kantsoner mot nord. det er således korte drifteveier for uttak
av virke.
Skogen består i følge Gårdskart.no datert 25.04.2024. av :
Skog av høy bonitet 8,7 daa
Skog av middels bonitet 62,7 daa
Skog av lav bonitet 40,1 daa
Uproduktivt skog 3,0 daa
Skogen har det meste av arealet i middels og lav bonitet og dette er skog som fra naturens side har lav tilvekst. Det meste av skogarealet ble avvirket/hogd i perioden fra 2004 til 2010, det er ikke foretatt planting og skogen består i dag av mye lauvskog, det må påregnes ungskogpleie og muligens planting.
Det er per 01.01.2014 innestående kr 38412 på skogfond. Det foreligger ikke skogbruksplan og vurdering bygger på informasjon fra Gårdskart.no, aktivitetsplan innhentet av Indre Østfold kommune og eier.
Jakt og fiske:
Eiendommen er med i Slora elglag og mottar årlig noe elgkjøtt. Verdi av elg, rådyr og småviltjakt settes normalt til 4 - 5 kr pr daa.
Vei, vann og avløp
Det er ca. 750 meter med privat vei, og veivedlikeholdet fordeles mellom 5 eiendommer. Det foreligger ingen skriftlig avtale og veivedlikehold. Privat grunnboret brønn, og privat mini renseanlegg av type Biovac, denne er montert i 2018.
Reguleringsplan
Eiendommen ligger i uregulert område. Formål i.h.t. kommuneplanens arealdel 2024 - 2035 er spredt boligbebyggelse, Nåværende. Endelig vedtatt arealplan: 06.02.2024. Arealbruk for delarealer: LNRF areal for nødvendige tiltak for landbruk og reindrift og gårdstilknyttet næringsvirksomhet
basert på gårdens ressursgrunnlag, Nåværende
Servitutter og heftelser i grunnbok
På eiendommen med gnr/ bnr 300/9 er det tinglyst følgende heftelser og rettigheter som følger eiendommens matrikkel ved overskjøting til ny hjemmelshaver:
1882/902939-1/1 Bestemmelse om veg
02.06.1882
Dokumentet kan sees ved henvendelse til megler
1971/3415-1/1 Skjønn
02.08.1971
Elektriske kraftlinjer
Gjelder denne registerenheten med flere
Dokumentet finnes ikke i arkivet til Statens Kartverk
2005/2925-1/1 Elektriske kraftlinjer
06.05.2005
Rettighetshaver: FORTUM DISTRIBUSJON AS
Bestemmelse om adkomstrett
Med flere bestemmelser
Meglers kommentar: Tidligere eier har inngått overenskomst med Eidsberg Elverk om rett til å føre kraftledning over d.e. Dokumentet kan sees ved henvendelse til megler
2012/880730-1/200 Erklæring/avtale
22.10.2012
Rettighetshaver:ELVIA AS
Org.nr: 980489698
Avtale om bygging, drift, vedlikehold og fornyelse av høyspennings luftledninger.
Bestemmelse om adkomstrett
Bestemmelser om hogst og ryddebelte
Med flere bestemmelser
På eiendommen med gnr/ bnr 300/13 er det tinglyst følgende heftelser og rettigheter som følger eiendommens matrikkel ved overskjøting til ny hjemmelshaver:
1935/900206-1/1 Bestemmelse om veg
22.01.1935
Med flere bestemmelser
Dokumentet kan sees ved henvendelse til megler
1971/3415-1/1 Skjønn
02.08.1971
Elektriske kraftlinjer
Gjelder denne registerenheten med flere
Dokumentet finnes ikke i arkivet til Statens Kartverk
1984/719-1/1 Elektriske kraftlinjer
02.02.1984
Rettighetshaver: EIDSBERG ELVERK
Meglers kommentar: Tidligere eier har inngått overenskomst med Eidsberg Elverk om rett til å føre kraftledning over d.e. Dokumentet kan sees ved henvendelse til megler
1991/6603-1/1 Jordskifte
13.11.1991
Minnelig jordskifteavtale i.h.h.t. jordskifte.` 81 til 84
Gjelder denne registerenheten med flere
Meglers kommentar: Jordskiftesak fra 1991 mellom flere eiendommer, med beskrivelser av diverse grenselinjer. Dokumentet kan sees ved henvendelse til megler
Ferdigattest
Ifølge kommunen foreligger det ikke ferdigattest, brukstillatelse eller byggetegninger for våningshuset. Det er dermed ukjent for megler om bruken er i samsvar med hva som evt. opprinnelig var byggemeldt. Kjøper påtar seg risikoen for både fremtidig, fortsatt bruk og eventuelle pålegg, for alle ovennevnte ulovlige forhold, herunder risikoen for om bruken lar seg godkjenne, og alle kostnader forbundet med dette. Det kan være krav i lov, forskrift og planverk som ikke er eller kan oppfylles, i så fall vil kommunen kunne kreve at rommet/ rommene/ bygningsdelene settes tilbake til opprinnelig godkjent stand.
Informasjon om odelsloven
Det er ikke odel på eiendommen
Informasjon om konsesjonsloven og jordloven
Denne eiendommen er blant annet underlagt jordloven og konsesjonsloven.
Det er konsesjonsplikt i henhold til konsesjonsloven på eiendommen. Det er den enkelte kommune som er rett konsesjonsmyndighet. I konsesjonsbehandlingen legges det særlig vekt på:
1. At kjøper skal oppfylle sin boplikt. Innflytting i boligen på gården skal skje senest ett år etter tinglysning av skjøte og deretter må man bebo eiendommen i minst 5 år etter dette.
2. At eiendommen driftes. Arealer med dyrket mark skal holdes i hevd, altså dyrkes videre hvilket også følger av jordlova. Ofte vil utleie av jorda til en nabobonde vil være tilstrekkelig.
3. Den avtalte prisen må tilgodese en samfunnsmessig forsvarlig prisutvikling. Det er dette som kalles priskontroll hvor kommunen i praksis vurderer hvorvidt den avtalte prisen mellom kjøper og selger ligger på et riktig nivå.
Det er Kjøpers risiko og kostnad å oppnå konsesjon i henhold til konsesjonslovens §9 både med hensyn til priskontroll, drift og botid. Bud med forbehold om konsesjon vil ikke bli godtatt av selger. Etter bud aksept og påfølgende kontraktsmøte forplikter kjøper seg til samtidig å søke konsesjon på eiendommen. Dersom konsesjonsmyndigheten i den respektive kommunen fatter et negativt konsesjonsvedtak plikter kjøper å påklage dette til fylkesmann, alternativt å rette seg etter de pålegg konsesjonsmyndighetene gir. Uavhengig av hva endelig konsesjonsvedtak blir, har kjøper ingen rett til å kreve prisavslag fra selger. Avtalt kjøpesum må betales fullt ut i henhold til kjøpekontraktens overtakelsesdato. I ytterste konsekvens kan et negativt konsesjonsvedtak innebære at kjøper må foreta et videresalg av eiendommen. Kjøper vil da måtte må bære et eventuelt økonomisk tap.
Se utfyllende informasjon på landbruksdirektoratets hjemmeside: https://www.landbruksdirektoratet.no/no/eiendom-og-skog/eiendom/konsesjon/konsesjon#hva-maa-jeg-gjoere-hvis-jeg-ikke-faar-konsesjon-
Alle landbrukseiendommer er også omfattet av jordlovens bestemmelser. Dette innebærer at det er drivepliktog at det gjelder et forbud mot deling av gården. Dette gjelder også selv om eiendommen består av flere bruksnumre.
Spørsmål om odel, bo-og driveplikt, konsesjon og delingsforbudet kan rettes til oppdragsansvarlig.
Prisantydning
6 500 000,-
Takst / tilstandsrapport
Utført av : Tor Helge Randem
Takstdato : 04.05.2024
Markedsverdi : 6 100 000,-
Formuesverdi : 326 662,-
Formuesverdi pr. : 01.01.2022
På denne eiendommen har følgende fått tilstandsgrad 2 (TG2) og 3 (TG3):
Enebolig
Utvendig
Taktekking,TG2
Taktekkingen er av betongtakstein. Taket er besiktiget fra takfot i stige.
Vurdering av avvik:
- Mer enn halvparten av forventet brukstid er passert på taktekkingen.
- Mer enn halvparten av forventet brukstid er passert på undertak.
- Enkelte stein skaler av i overlapp og det er tid for utskifting av taktekking og vindskier. Det er store skjevheter på takstein i forhold til vindski mot nord.
Tiltak
- Tidspunkt for utskiftning av undertak nærmer seg.
- Tidspunkt for utskiftning av taktekking nærmer seg.
Kostnadsestimat : 100 000 - 300 000
Nedløp og beslag,TG2
Takrenner og beslag i overflatebehandlet stål.
Vurdering av avvik:
- Det mangler snøfangere på hele eller deler av taket, men det var ikke krav om dette på byggemeldingstidspunktet.
- Mer enn halvparten av forventet brukstid er passert på renner/nedløp/beslag.
Tiltak
- Andre tiltak:
- Takrenner er eldre og må påregnes å skiftes ut. Snøfangere må monteres.
Kostnadsestimat : 50 000 - 100 000
Veggkonstruksjon,TG2
Veggene har tømmerkonstruksjon og noe med bindingsverk. Fasade/kledning har stående bordkledning.
Vurdering av avvik:
- Det er ingen eller liten lufting i nedre kant av kledning mot grunnmur.
- Det er påvist spredte råteskader i bordkledningen.
- Det er malingsflass på enkelte kledningsbord. Det registreres på østvegg råte i svill muligens nedforet treverk mot mur . Det må påregnes at det kan være råte i bunnsvill.
Tiltak
- Det bør foretas tiltak for å bedre lufting av kledningen.
- Råteskadet trekledning må skiftes ut.
- Muligens må bunnsvill mot øst skiftes ut, det kan også være at bunnsviller på resterende bygning er dårlig.
Kostnadsestimat : Over 300 000
Takkonstruksjon/Loft,TG2
Takkonstruksjonen har sperrekonstruksjon.
Vurdering av avvik:
- Det er begrenset/dårlig ventilering av takkonstruksjonen.
- Det er noe misfarging av undertak. Det er noe dårlig lufting ovre skråtak her skal det være en luftespalte på minimum 5 cm.
Tiltak
- Lufting/ventilering bør forbedres.
- Ved eventuell utskifting av taktekking må lufting over skråtak utbedres. Det anbefales å sette inn ventiler i gavler.
Vinduer,TG2
Bygningen har malte trevinduer med 2-lags glass med utvendige sprosser. Vinduer i 2.etg er fra 1971 til 1973. Koblet glass på baderoms vindu. Vinduer 1.etg fra 1990.
Vurdering av avvik:
- Det er påvist at enkelte vinduer er vanskelig å åpne/lukke.
- Det er påvist noen glassruter som er punktert eller sprukne.
- Karmene i vinduer er slitte og det er sprekker i trevirket.
- Vindu på kjøkken er vanskelig å vippe rundt. Det er et vindu på soverom mot syd med punktert glass. Vindu på bad er tung å lukke opp.
Tiltak
- Det må påregnes noe vedlikehold og at enkelte vinduer må skiftes ut.
- Vinduer med punkterte/sprukne glass må påregnes skiftes ut, enten hele vinduet eller kun selve glassene.
Balkonger, terrasser og rom under balkonger,TG2
Balkong på ca. 5m² med adkomst fra balkongdør i 2 etg. Balkong har bjelkelag i treverk med tett gulv tekket med sveisepapp. Rekkverk i impregnerte materialer dette er skiftet år 2022. Rekkverk er 95 cm høyde. Terrasse 1.etg. til inngangsparti på ca. 47 m², er oppført på støpte søyler, gulv i impregnerte materialer ( ved inngangsparti er det støpt platting) Det er levegg mot nord i malte trematerialer og takoverbygg mot syd på ca. 15 m² med 2 vegger kledd med malt trepanel her er det også satt inn vinduer (blikk mangler under vinduer, dette skal eier utbedre før salg) Tak er bygget som pulttak tekket med polykarbonat takplater.
Vurdering av avvik:
- Mer enn halvparten av forventet brukstid er passert på tettesjikt/membran.
- Rekkverket er for lavt i forhold til dagens krav til rekkverkshøyder.
- Det registreres begynnende råte i ytre hjørne på underlags panel gulv balkong 2.etg. Det er skjevheter i gulv terrasse 1.etg.
Tiltak
- Andre tiltak:
- Terrassegulv 1.etg må forsterkes og rettes opp. Råte i gulv 2.etg må utbedres.
Innvendig
Etasjeskille/gulv mot grunn,TG3
Etasjeskiller er av trebjelkelag.
Vurdering av avvik:
- Målt høydeforskjell på over 30 mm gjennom hele rommet. Tilstandsgrad 3 gis med bakgrunn i standardens krav til godkjente måleavvik.
- Det ble ved hjelp av streklaser foretatt kontroll av planhetsavvik i etasjene. Det registreres høydeforskjell med 3 cm over gulver i 1 etg svanker og buler i overflater. Det registreres høydeforskjell på ca. 2 cm på under 2 meter ved pipe på kjøkken, svanker og buler også på resterende gulv 1.etg. 2.etg har høydeforskjell med 1,5 cm over gang. Soverom med 2,5 cm over gulv. Soverom mot syd og soverom mot øst med 1 cm over rommet. Det må alltids påregnes skjevheter på eldre konstruksjoner grunnet krymp, nedbøyninger osv. Det gjøres oppmerksom på at alle flater ikke er kontrollert grunnet møblering og div.
Tiltak
- For å få tilstandsgrad 0 eller 1 må høydeforskjeller rettes opp. Det vil imidlertid sjelden være økonomisk rasjonelt som et enkeltstående tiltak i en bolig som dette. Dersom boligen en gang skal renoveres, kan man vurdere slike tiltak.
Kostnadsestimat : Ingen umiddelbar kostnad
Radon,TG2
Det er ikke foretatt radonmålinger og bygget er heller ikke utført med radonsperre.
Vurdering av avvik:
- Det er ikke foretatt radonmålinger, og bygget er heller ikke utført med radonsperre.
- Boligen ligger i et område med moderat til lav radonforekomst.
Tiltak
- Det bør gjennomføres radonmålinger.
Pipe og ildsted,TG2
Boligen har 2 stk mursteinspiper. Piper ble rehabilitert i 2021 med nye inner-rør i stål. Det er montert ved/ peisovner. En på kjøkken, en i tv stue og en i stue. Vedovn i stue er fra 2021.
Vurdering av avvik:
- Avstanden mellom ildstedet og brennbart materiale er for liten.
- Det opplyses i egenerklæring at det er pålegg fra brann og feievesen med treverk som er for nærme pipe.
Tiltak
- Større avstand til brennbart materiale må lages.
Krypkjeller,TG2
Bygningen har krypkjeller under trebjelkelag og stubbegulv. Det er krypkjeller under hele boligen men kun tilgang til ca. 1/3 mot syd, denne har tilgang med dør i mur på sydside. Denne delen blir besiktiget
Vurdering av avvik:
- Det er begrenset tilgang til hele krypkjelleren.
- Det er ikke tilfredsstillende ventilering av krypkjeller.
- Det er registrert symptom på aktivitet fra skadedyr
- Det registreres stipet borebille i bjelkelag, dette bør undersøkes nærmere, dette skyldes ofte høyt fuktnivå. Det måles også høy fukt i bjelkelag. Det opplyses i tidligere takst at det har vært stokkmaur i bygningen, angrepet ble da bekjempet av skadedyr firma. Det er kun en lufteluke på vegg mot syd, ventilasjon må utbedres. Det gjøres oppmerksom på at krypkjeller er en risikokonstruksjon for sopp og råte og bør ha jevnlig tilsyn. På befaring var det ikke tilgang til hele krypkjeller, det registreres heller ingen lufteluker. Det er viktig at krypkjeller er godt luftet for å forhindre fukt/råteskader. Det anbefales at denne konstruksjonen undersøkes nærmere og at det etableres tilgang til denne.
Tiltak
- Det må gjennomføres ytterligere undersøkelser.
- Bedre ventilering må etableres.
- Ut ifra visuelle observasjoner fra de besiktigede områdene, gir det grunnlag for å forsøke å foreta grundigere undersøkelser i de mindre tilgjengelige områdene. Det kan ikke utelukkes skader i disse områdene.
Innvendige trapper,TG2
Boligen har malt tretrapp.
Vurdering av avvik:
- Åpninger i rekkverk er større enn dagens forskriftskrav til rekkverk i trapper.
- Det mangler håndløper på vegg i trappeløpet.
- Rekkverkshøyder er under dagens forskriftskrav til rekkverk i trapper.
- Rekkverk er 84 cm høyde skal være minimum 0,9 meter.
Tiltak
- Det er ikke krav om utbedring av åpninger opp til dagens krav.
- Håndløper må monteres på vegg for å tilfredsstille krav på byggetidspunktet.
Våtrom
Etasje > Bad/vaskerom
Generell,TG3
Aktuell byggeforskrift er byggeforskrifter fra før 1997. Dokumentasjon: ingen dokumentasjon. Badet antas å være utbedret på 90 tallet. Badet har gulv med vinylbelegg, et sluk i gulv. Vegger med respatex plater ( våtromsplater) og himlinger med trepanel Rommet er innredet med gulvmontert toalett, dusjkabinett, vask på vegg. Plass og opplegg for vaskemaskin. Varmtvannsbereder på 200 liter er også plassert her. Det er åpent røropplegg med kobber-rør på vegg. Det er ingen ventilasjon fra rommet, dette bør monteres.
Vurdering av avvik:
- Våtrommet må oppgraderes for å tåle normal bruk etter dagens krav.
Tiltak
- Våtrommet må totalrenoveres. Alle forhold med tettesjikt, våtsone, sluk m.m. må dokumenteres.
- Totalrenovering er kun en anbefaling grunnet alder. Badet kan fortsatt tåle en forsiktig bruk. ( det forutsettes fortsatt bruk av dusjkabinett). Det er dog ingen garantier. En slik løsning kan forhindre fuktskade, men gir ingen erstatning for tettesjikt/membran skader på rør.
Kostnadsestimat : 100 000 - 300 000
Kjøkken
Etasje > Kjøkken
Overflater og innredning,TG2
Kjøkkeninnredning med slette lysmalte fronter, benkeplate i laminat med nedsenket beslag med oppvaskkum og skylle kum. Det er flisplater mellom under og overskap. Det er plass og opplegg for oppvaskmaskin og komfyr med ventilator over. Antar innredningen er fra 1970 tallet eier har skiftet underskap under oppvaskbenk og satt opp nyere overskap mot tv- stue.
Vurdering av avvik:
- Det er avvik:
- Eldre innredning og det må påregnes oppgraderinger.
Tiltak
- Tiltak:
Tekniske installasjoner
Vannledninger,TG2
Innvendige vannledninger er av kobber. Det er i underskap kjøkken koblet på vannstoppventil til oppvaskmaskin med føler på gulv. Stoppekran for hovedvann er på låve.
Vurdering av avvik:
- Mer enn halvparten av forventet brukstid er passert på innvendige vannledninger.
Tiltak
- Det er ikke behov for utbedringstiltak siden anlegget fungerer i dag, men ut ifra alder kan skader plutselig oppstå på eldre anlegg.
Avløpsrør,TG2
Det er avløpsrør av plast.
Vurdering av avvik:
- Det er ikke påvist tilfredsstillende lufting av avløpsanlegget.
- Mer enn halvparten av forventet brukstid er passert på innvendige avløpsledninger.
Tiltak
- Andre tiltak:
- Det er ikke behov for utbedringstiltak siden anlegget fungerer i dag, men ut ifra alder kan skader plutselig oppstå på eldre anlegg.
- Lufting avløp må føres over tak.
Varmtvannstank,TG2
Varmtvannstanken er på ca. 200 liter. Montert 2022.
Vurdering av avvik:
- Det er ikke påvist tilfredsstillende el-tilkobling av varmtvannstank iht. gjeldende forskrift.
Tiltak
- Det bør etableres tilfredsstillende el-tilkobling etter gjeldende forskrift.
Tomteforhold
Grunnmur og fundamenter,TG2
Bygningen har grunnmur i natursteinsmur murpusset mot syd. Fundamentert på fjell.
Vurdering av avvik:
- Det er avvik:
- Grunnmur i naturstein med enkelte løse steiner. Det er tettet mellom steinblokker med byggeskum.
Tiltak
- Tiltak:
- Det må påregne utbedringer, med forsterkninger av grunnmur, muligens noe utskifting.
Kostnadsestimat : 100 000 - 300 000
Utvendige vann- og avløpsledninger,TG2
Utvendige avløpsrør er av plast Utvendige avløpsledninger er fra 2018. Det er privat mini renseanlegg av type Biovac, denne er montert i 2018. Utvendige vannledninger er av plast (PEL). Utvendige vannledninger anslås å være fra ca. 1985. Det er privat grunnboret brønn.
Vurdering av avvik:
- Det foreligger ingen dokumentasjon på vannkvaliteten på brønnvannet.
- Mer enn halvparten av forventet brukstid er passert på utvendige vannledninger.
Tiltak
- Det er ikke behov for utbedringstiltak siden anlegget fungerer i dag, men ut ifra alder kan skader plutselig oppstå på eldre anlegg.
- Innhent dokumentasjon, om mulig.
Forsikring
If
Polisenummer: SP1007630.9.3.
Kommunale avgifter
Kr. 8 269 pr. år
Pliktig medlemsskap i velforening/sameie
Kjøper forplikter seg til å følge de til enhver tids retningslinjer for samarbeid og eventuelt sin andel av økonomiske kostnader for vedlikehold av privat gårdsvei og øvrig nabosamarbeid.
Oppgjør
Hele kjøpesummen med omkostninger må være innbetalt og disponibel for megler på meglers klientkonto, senest på siste virkedag innen overtagelsen finner sted.
Arealangivelser i salgsoppgaven
Arealangivelsene er hentet fra takst (evt tilstandsrapport).
Diverse
Ved overtakelse av eiendommen blir våningshuset og kårbolig ryddet og rengjort. Øvrige bygninger og utearealer overtas slik det fremstår på visning og vil ikke bli ryddet eller rengjort ut over dette. Selger forbeholder seg retten til å ta med seg det han selv ønsker av Løsøre, maskiner, redskaper og antikviteter. Dette gjelder også frittstående hvitevarer.
Antikk og løsøre
Landbruksdirektoratets søknadsskjema for konsesjon finnes et eget punkt for løsøre, pkt. 7. Til forskjell fra en ordinær enebolig selges ofte en landbrukseiendom med en del løsøre, maskiner ogredskaper, samt antikviteter/ gamle bruksgjenstander, som medfølger gårdsbruket. Kjøper skal ikke betale dokumentavgift av denne delen av kjøpet, ei heller skal selger kapital beskattes. Løsøre, maskiner, redskap og antikviteter skal reguleres i en egen kontrakt mellom kjøper og selger uavhengig om det anses som en del av kjøpstilbudet kjøper har gitt på eiendommen, eller om det kommer i tillegg til kjøpstilbudet på eiendommen. Selger har full bestemmelsesrett over hva slags løsøre som kan følge gården og hva som eventuelt skal komme tillegg. Løsøre, maskiner, redskap og antikviteter som kommer i tillegg til kjøpesummen for eiendommen kan kjøper selv velge om han/hun skal godta eller ikke. Fastsettelse av pris for løsøre, maskiner redskap og antikviteter erutenfor meglers kompetanseområde og må derfor avtales direkte mellom kjøper selger på lik linje som om det skulle blitt annonsert i markedet, eksempelvis på finn.no. Eventuelt kan partene engasjere uavhengig fagkyndig personell til taksering av objektene.Megler kan forøvrig bistå med kontrakt i henhold til det partene har blitt enige om.
Maskiner og utstyr
Fastsettelse av pris for løsøre, maskiner redskap og antikviteter er utenfor meglers kompetanseområde og må derfor avtales direkte mellom kjøper selger på lik linje som om det skulle blitt annonsert i markedet, eksempelvis på finn.no. Eventuelt kan partene engasjere uavhengig fagkyndig personell til taksering av objektene. Megler kan forøvrig bistå med kontrakt i henhold til det partene har blitt enige om.
Budgivning
Alle bud skal inngis skriftlig til megler. Benytt "Gi bud"-knappen på våre annonser for å registrere ditt bud elektronisk. Dette er en enkel og sikker løsning som lar deg signere budet elektronisk ved hjelp av Bank ID. Selger står fritt til å godta eller forkaste ethvert bud. Likeledes er budgiver klar over at budet er bindende for når det er kommet til selgers kunnskap. Handelen er juridisk bindende for begge parter dersom budet aksepteres innen akseptfristen. Ved innsendelse av bud på eiendommen til megler bekrefter budgiver at den skriftlige salgsoppgaven, PDF. dokument eller trykket salgsoppgave, er gjennomlest og forstått.
Overtagelse
Avklares i forbindelse med budgivning.
Eiendommen selges etter reglene i avhendingsloven
Eiendommen skal overleveres kjøper i tråd med det som er avtalt. Det er viktig at kjøper setter seg grundig inn i alle salgsdokumentene, herunder salgsoppgave, tilstandsrapport og selgers egenerklæring.
Kjøper anses kjent med forhold som er tydelig beskrevet i salgsdokumentene. Forhold som er beskrevet i salgsdokumentene kan ikke påberopes som mangler. Dette gjelder uavhengig av om kjøper har lest dokumentene.
Alle interessenter oppfordres til å undersøke eiendommen nøye, gjerne sammen med fagkyndig før bud inngis. Kjøper som velger å kjøpe usett kan ikke gjøre gjeldende som mangel noe han burde blitt kjent med ved undersøkelsen.
Dersom det er behov for avklaringer, anbefaler vi at kjøper rådfører seg med eiendomsmegler eller en bygningssakyndig før det legges inn bud.
Hvis eiendommen ikke er i samsvar med det kjøperen må kunne forvente ut ifra alder, type og synlig tilstand, kan det være en mangel. Det samme gjelder hvis det er holdt tilbake eller gitt uriktige opplysninger om eiendommen. Dette gjelder likevel bare dersom man kan gå ut i fra at det virket inn på avtalen at opplysningen ikke ble gitt eller at feil opplysninger ikke ble rettet i tide på en tydelig måte. En bolig som har blitt brukt i en viss tid, har vanligvis blitt utsatt for slitasje og skader kan ha oppstått. Slik bruksslitasje må kjøper regne med, og det kan avdekkes enkelte forhold etter overtakelse som nødvendiggjør utbedringer. Normal slitasje og skader som nødvendiggjør utbedring, er innenfor hva kjøper må forvente og vil ikke utgjøre en mangel.
Boligen kan ha en mangel dersom det er avvik mellom opplyst og faktisk areal, forutsatt at avviket er på 2% eller mer og minimum 1 kvm.
Ved beregning av et eventuelt prisavslag eller erstatning må kjøper selv dekke tap/kostnader opptil et beløp på kr 10 000 (egenandel).
Dersom kjøper ikke er forbruker selges eiendommen "som den er",og selgers ansvar er da begrenset jf. avhl. § 3-9, 1. ledd 2. pktm. Avhendingsloven § 3-3 (2) fravikes, og hvorvidt en innendørs arealsvikt karakteriseres som en mangel vurderes etter avhendingsloven § 3-8. Informasjon om kjøpers undersøkelsesplikt, herunder oppfordringen om å undersøke eiendommen nøye, gjelder også for kjøpere som ikke anses som forbrukere. Med forbrukerkjøp menes kjøp av eiendom når kjøperen er en fysisk person som ikke hovedsakelig handler som ledd i næringsvirksomhet."
Med unntak av beboelseshus er landbrukseiendommen med driftsbygninger og innmark/utmark i utgangspunktet en næringseiendom og selges i den stand den var ved kjøpers besiktigelse, jf. avhendingsloven § 3-9 (1). Det innebærer at avhendingslovens regler om når eiendommen har mangel, fravikes til ugunst for kjøper.
Lov om hvitvasking
I henhold til lov om hvitvasking og terrorfinansiering har megler plikt til å gjennomføre kontrolltiltak ovenfor kunder. Dette innebærer å bekrefte kunders identitet på bakgrunn av fremvist gyldig legitimasjon. Videre innebærer det å få bekreftet identiteten til eventuelle reelle rettighetshavere, og å innhente opplysninger om kundeforholdets formål.
Kjøpers innbetaling skal foretas fra norsk bank/finansinstitusjon.
Selgers oppgjør vil skje til konto i norsk bank/finansinstitusjon.
Dersom megler får mistanke om brudd på hvitvaskingsreglementet i forbindelse med en eiendomshandel, og han ikke klarer å få avkreftet denne mistanke, har han plikt til å rapportere dette til Økokrim. Melding sendes Økokrim uten at partene varsles. Megler kan i enkelte tilfeller også ha plikt til å stanse gjennomføring av handelen.
Salgsoppgaven beskriver vesentlig og lovpålagt informasjon om eiendommen
Se komplett salgsoppgaveNyttige lenker
Nærområdet

TEGNEBY & GRØNNERØD LANDBRUKSMEGLING AS
Annonseinformasjon
| FINN-kode | 355563669 |
|---|---|
| Sist endret | 06. sep. 2024 12:19 |
| Referanse | 14240015 |
Annonsene kan være mangelfulle i forhold til lovpålagt opplysningsplikt. Før bindende avtale inngås oppfordres interessenter til å innhente komplett informasjon fra meglerforetaket, selger eller utleier.













































