Bildegalleri

Velkommen til Karenslyst allé 50 presentert av Nicolay Ulvin v/EIE eiendomsmegling.
Moderne 3-roms leilighet m/solrik vestvendt balkong | Garasje m/elbillader | Felles takterrasse | Attraktiv beliggenhet
Nøkkelinfo
- Boligtype
- Leilighet
- Eieform
- Andel
- Soverom
- 2
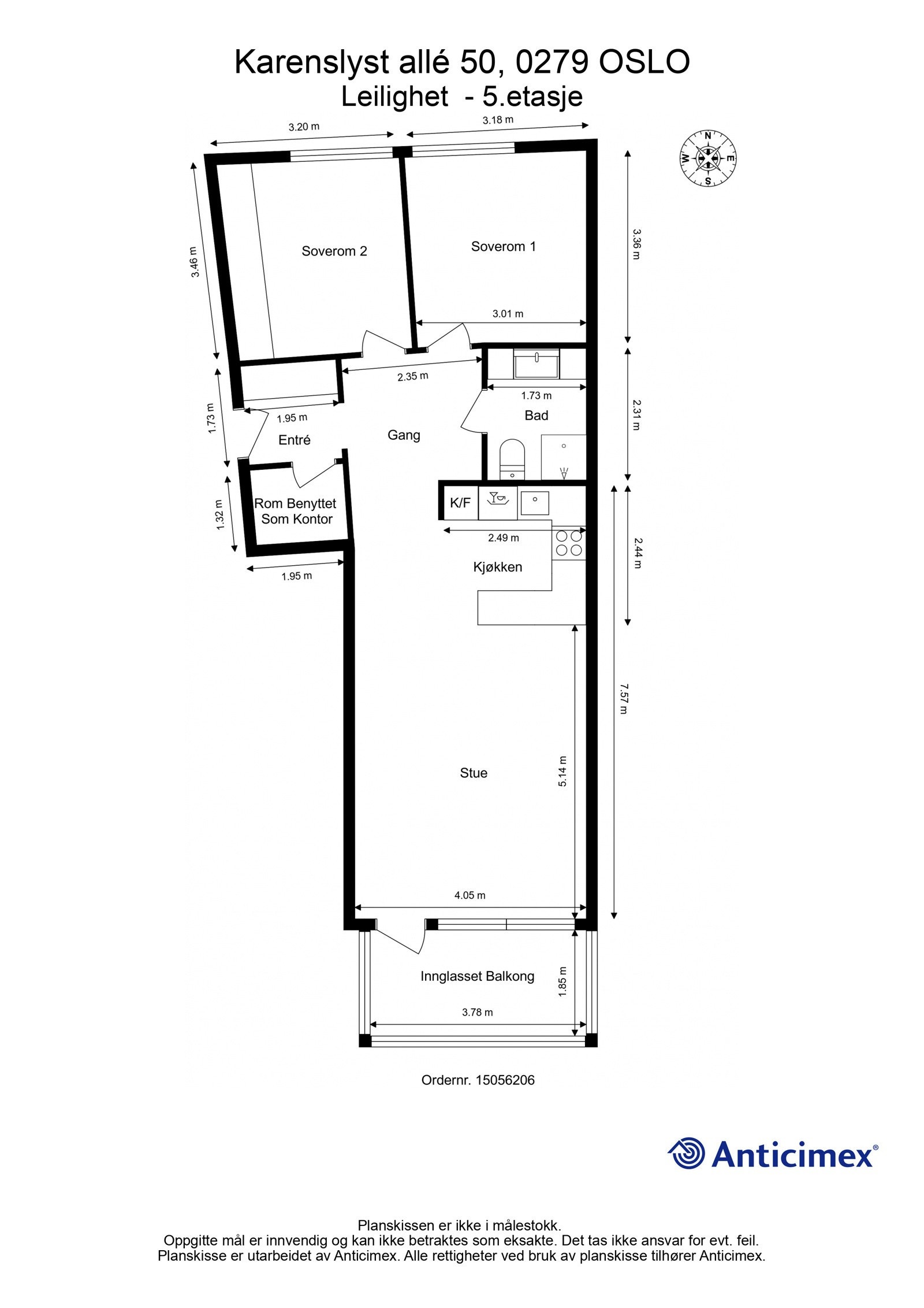
- Internt bruksareal
- 70 m² (BRA-i)
- Bruksareal
- 83 m²
- Eksternt bruksareal
- 5 m² (BRA-e)
- Innglasset balkong
- 8 m² (BRA-b)
- Etasje
- 5
- Byggeår
- 2008
- Energimerking
- B - Lysegrønn
- Tomteareal
- 2 663 m² (eiet)
Fasiliteter
Om boligen
Velkommen til Karenslyst allé 50 - en perle av en 3-roms leilighet venter på deg!
Denne lyse og innbydende boligen har en gjennomgående planløsning og ligger i byggets 5. etasje med heisadkomst. Nyt den solrike innglassende balkongen som forlenger utesesongen.
Bygget er fra 2008 og krever lite vedlikehold. Du har enkel tilgang til garasjeplassen i kjeller hvor det er montert elbillader. Beliggenheten er uslåelig med umiddelbar nærhet til Sjølyst og Skøyen, hvor du finner et rikt utvalg av butikker, serveringsteder og kollektivtransport som trikk, buss og flytog.
- Solrik vestvendt balkong på 8 kvm
- Garasjeplass m/elbillader
- Trappefri adkomst via heis
- Felles takterrasse
- Bod i underetasje på 5 kvm
- Gangavstand til alt du trenger
Her er alt tilrettelagt for en enkel og behagelig hverdag. Velkommen hjem!
Salgsoppgaven beskriver vesentlig og lovpålagt informasjon om eiendommen
Se komplett salgsoppgaveNærområdet
EIE eiendomsmegling Røa, Skøyen og Ullern

Emma Kristine Uhrberg
Medhjelper
Prisstatistikk
Karenslyst allé 50
på annonsen
prisantydning per kvadratmeter
Prisfordeling
Pris per m² ligger 10 142 kr over snittet for leiligheter i Ullern.
Grafen viser antall leiligheter solgt i Ullern siste året fordelt på pris per m² - totalt 719 leiligheter
Antall boliger
Kvadratmeterpris tilsvarer prisantydning pluss fellesgjeld per kvadratmeter (p-rom eller BRA-i). Prisene i grafen er avrundet til nærmeste 1000 kr.
Annonseinformasjon
| FINN-kode | 355287820 |
|---|---|
| Sist endret | 14. juni 2024 12:04 |
| Referanse | 51240031 |
Annonsene kan være mangelfulle i forhold til lovpålagt opplysningsplikt. Før bindende avtale inngås oppfordres interessenter til å innhente komplett informasjon fra meglerforetaket, selger eller utleier.































