Bildegalleri

Velkommen til visning i Myreveien 318!
Moderne og energieffektiv eiendom m/ 1(2) utleiedeler! Vannbåren varme/balansert ventilasjon og høy teknisk standard.
Nøkkelinfo
- Boligtype
- Enebolig
- Eieform
- Eier (Selveier)
- Soverom
- 6
- Internt bruksareal
- 264 m² (BRA-i)
- Bruksareal
- 272 m²
- Eksternt bruksareal
- 8 m² (BRA-e)
- Balkong/Terrasse
- 115 m² (TBA)
- Byggeår
- 2002
- Energimerking
- B - Oransje
- Tomteareal
- 2 031 m² (eiet)
- Boligselgerforsikring
- Ja
Fasiliteter
Om boligen
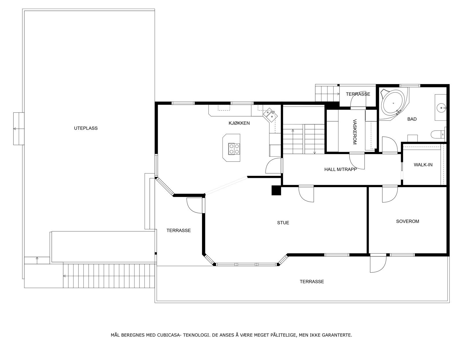
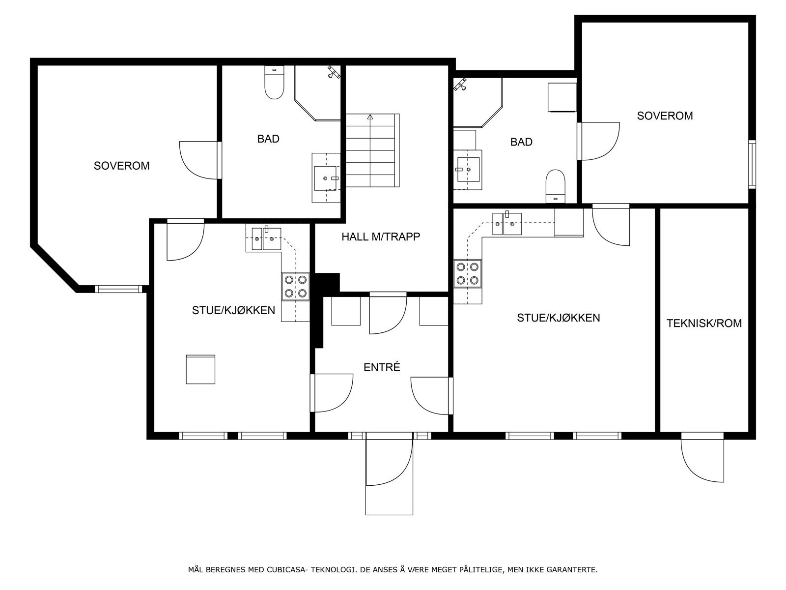
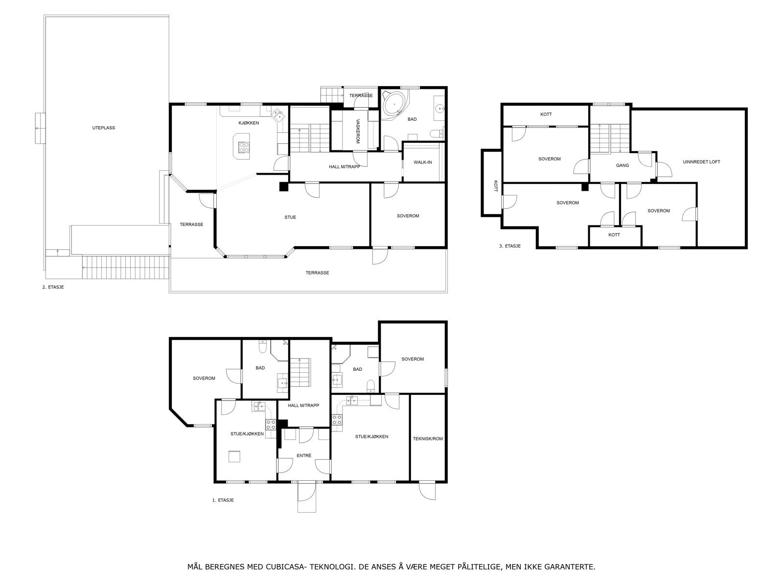
Særdeles velholdt og påkostet enebolig, med høy teknisk kvalitet og standard! De siste 2 årene har boligen fått nytt luft/vann varmeanlegg, varmtvannsberedere, balansert ventilasjon. Energieffektivisering har vært i fokus, som igjen har gitt boligen energiklasse B! Boligen inneholder også 1(2) utleiedeler. Det er lagt inn 3 høyhastighets fibernett linjer til boligen. Uteområde med fantastisk utsikt, som er betydelig påkostet de siste årene, perfekt for sene sommerkvelder. Dobbel garasje m/32amp el-bil lader, hems og full kjeller, som bidrar med uvanlig god lagringsplass. Boligen ligger i et barnevennlig område med kort avstand til skoler, barnehager og Revetal sentrum med alle nødvendige fasiliteter. Det er ca 15 min med bil til Tønsberg og Holmestrand sentrum, og ca 20 min til Horten.
Salgsoppgaven beskriver vesentlig og lovpålagt informasjon om eiendommen
Se komplett salgsoppgaveNyttige lenker
Nærområdet

PrivatMegleren Tønsberg
Prisstatistikk
Myreveien 318
på annonsen
prisantydning per kvadratmeter
Prisfordeling
Pris per m² ligger 13 349 kr under snittet for eneboliger i Tønsberg.
Grafen viser antall eneboliger solgt i Tønsberg siste året fordelt på pris per m² - totalt 446 eneboliger
Antall boliger
Kvadratmeterpris tilsvarer prisantydning pluss fellesgjeld per kvadratmeter (p-rom eller BRA-i). Prisene i grafen er avrundet til nærmeste 1000 kr.
Annonseinformasjon
| FINN-kode | 355222401 |
|---|---|
| Sist endret | 18. apr. 2025 12:24 |
| Referanse | 13240066 |
Annonsene kan være mangelfulle i forhold til lovpålagt opplysningsplikt. Før bindende avtale inngås oppfordres interessenter til å innhente komplett informasjon fra meglerforetaket, selger eller utleier.































































