Bildegalleri

Inaktiv
Lager- og kontorlokaler med mulighet for handel sentralt på Alnabru
Nøkkelinfo
- Areal
- 500 - 1 300 m²
Type lokale
Kontor
Butikk/Handel
Lager/Logistikk
Kombinasjonslokaler
Fasiliteter
Aircondition
Alarm
Bredbåndstilknytning
Garasje/P-plass
Heis
Kjøreport
Om eiendommen
Alfaset 1. Industrivei 4 er en generelt godt vedlikeholdt næringsgård bestående av forretningslokaler i under-/ og 1.etasje samt kontorlokaler i de øvrige etasjene. Det er hovedinngang til bygget, samt en stor vareheis. Eiendommen har god parkeringsdekning. Øvrige leietagere er blant annet Alcadon AS, Jacobsen Dental AS og Stoff & Stil.
Eiendommen driftes og forvaltes av Malling & co forvaltning.
Arealspesifikasjon:
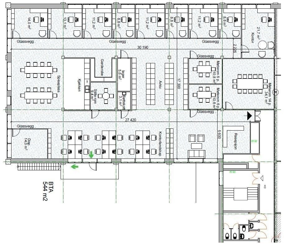
• 1. etasje: Lager på ca. 700 kvm med egen kjøreport
• 2. etasje: Kontor på ca. 500 kvm
• 2. etasje: kontor med mulighet for handel på ca. 600 kvm
Det er mulighet for å dele opp arealet i 2. etasje på ca. 600 kvm. Dette arealet er i dag revet og står klart for tilpasning etter leietakers behov og ønsker. Kontorarealene kan leies separat, men ikke lager, de må kombineres med kontorareal.
Eiendommen driftes og forvaltes av Malling & co forvaltning.
Arealspesifikasjon:
• 1. etasje: Lager på ca. 700 kvm med egen kjøreport
• 2. etasje: Kontor på ca. 500 kvm
• 2. etasje: kontor med mulighet for handel på ca. 600 kvm
Det er mulighet for å dele opp arealet i 2. etasje på ca. 600 kvm. Dette arealet er i dag revet og står klart for tilpasning etter leietakers behov og ønsker. Kontorarealene kan leies separat, men ikke lager, de må kombineres med kontorareal.
Beliggenhet
Alna senter er en av de nærmeste naboene og det er offentlig kommunikasjon innen kort gangavstand. Eiendommen har en meget sentral og attraktiv beliggenhet på Alnabru, nord i Oslo. Alnabru er i dag et knutepunkt for handel, næring og servicetilbud. Det er kort vei til Alna Senter, Coop Obs bygg mm.
Adkomst
Enkel adkomst til Alfaset 1.Industrivei 4 fra Strømsveien v/Alna senter. ca 10 min med bil til Oslo Sentrum. Kort gangavstand til offentlig kommunikasjon ved Alna Senter med busslinje 66, 68 og 401.
Matrikkelinformasjon
Kommunenr: 301
Gårdsnr: 117
Bruksnr: 5
NB: Knappen for å vise hele beskrivelsen har kun en visuell effekt.
NB: Knappen for å vise hele beskrivelsen har kun en visuell effekt.
Visning
Ta kontakt for å avtale visning.Realnor
Din næringsmegler
Nærområdet
Annonsene kan være mangelfulle i forhold til lovpålagt opplysningsplikt. Før bindende avtale inngås oppfordres interessenter til å innhente komplett informasjon fra meglerforetaket, selger eller utleier.


















