Bildegalleri

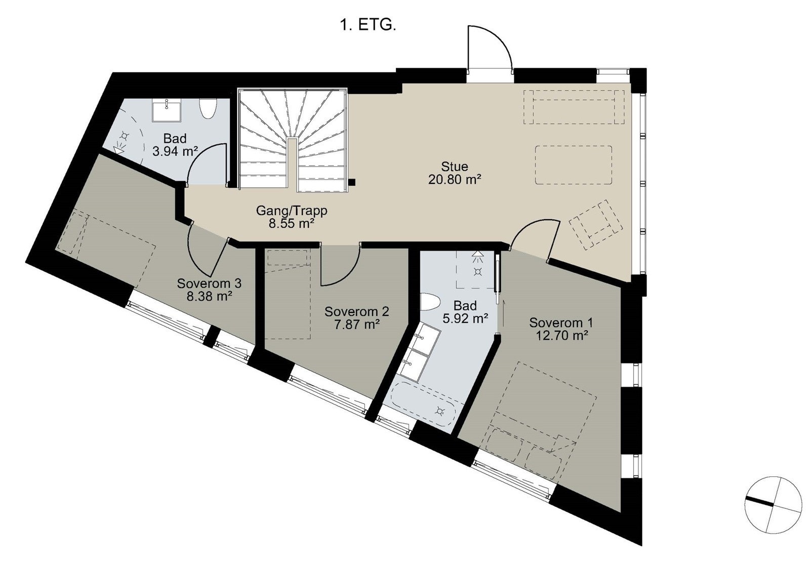
Bolig A 1. etg
Rygjaveien 26
Enebolig Rygjaveien 26B
Prisantydning14 490 000 kr
Prosjektets status
Planlegging
-2023
Salgsstart
-2024
Byggestart
-September 2024
Overtakelse
-Q3 - 2025
Nøkkelinfo
- Boligtype
- Enebolig
- Soverom
- 4
- Internt bruksareal
- 212 m² (BRA-i)
- Bruksareal
- 217 m²
- Eksternt bruksareal
- 5 m² (BRA-e)
- Balkong/Terrasse
- 8 m² (TBA)
Visning
Alle våre visninger har påmelding. På denne måten sikrer vi at megler har god oversikt og tid til å imøtekomme alle interessenter på beste måte. Dette er veldig verdifullt for boligkjøpere og for oss. Det er enkelt å melde seg på, og du kan like enkelt melde deg av.
Kontakt også gjerne megler i forkant av visning dersom du har spørsmål.
VisningspåmeldingBeskrivelse
Mer informasjon kommer
NB: Knappen for å vise hele beskrivelsen har kun en visuell effekt.
NB: Knappen for å vise hele beskrivelsen har kun en visuell effekt.
Nyttige lenker
Nærområdet
Privatmegleren Galleri
Herlige SPV AS
Utbygger
Annonseinformasjon
| FINN-kode | 354768523 |
|---|---|
| Sist endret | 08. juli 2025 02:11 |
| Referanse | 317240118 |
Annonsene kan være mangelfulle i forhold til lovpålagt opplysningsplikt. Før bindende avtale inngås oppfordres interessenter til å innhente komplett informasjon fra meglerforetaket, selger eller utleier.


