Bildegalleri

Fasade
Inaktiv
Enebolig med landlig og fin beliggenhet. Kort kjøretur til Rindal sentrum.
Prisantydning1 490 000 kr
Nøkkelinfo
- Boligtype
- Enebolig
- Eieform
- Eier (Selveier)
- Soverom
- 3
- Internt bruksareal
- 152 m² (BRA-i)
- Bruksareal
- 162 m²
- Eksternt bruksareal
- 10 m² (BRA-e)
- Balkong/Terrasse
- 22 m² (TBA)
- Etasje
- 2
- Byggeår
- 1970
- Energimerking
- E - Oransje
- Tomteareal
- 700 m² (eiet)
Visning
Det gjennomføres kun visninger etter avtale på forhånd, selv der det er oppsatt fellesvisning. Kontakt megler eller meld deg på visning med knappen visningspåmelding før visningen. Fellesvisning vil ikke bli gjennomført om det ikke er påmeldinger senest kl. 20:00 dagen før annonsert visning. Kontakt i alle tilfeller megler ved interesse for visning.
VisningspåmeldingOm boligen
Eiendommen ligger tilbaketrukket fra veien. I nærområdet har man Surna, en god lakseelv. Mektige Trollheimen, med sitt unike naturområde, har man også lett tilgang til. Her er naturen tett på, og Rindal sentrum er bare en kort kjøretur unna.
I nærområdet er det bl.a. Bunnpris og Bolme Barnehage ca. 4 km unna, samt bensinstasjon rett ved eiendommen.
Inneholder:
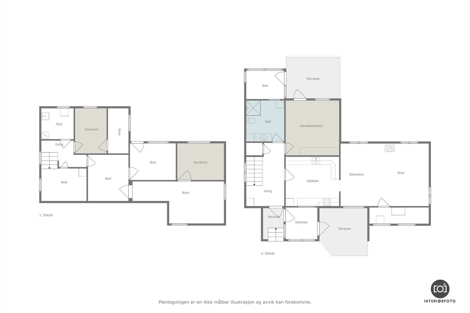
1.etg: Gang, kjøkken, stue, bod, bad, kott og soverom. Ved inngangspartiet er det ei lita sommerstue.
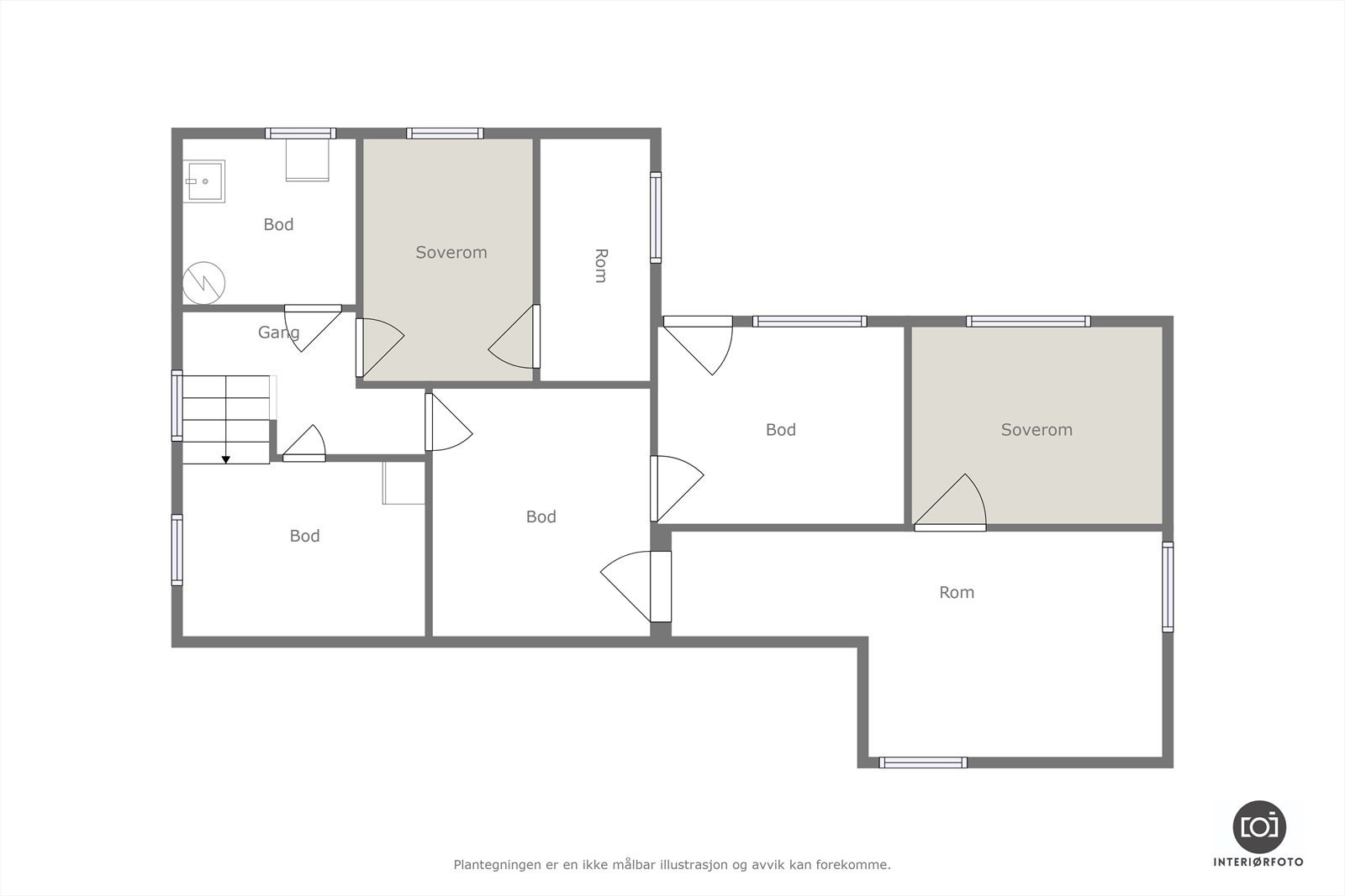
Kjeller: Gang, eldre vaskerom, bod, 2 soverom, bod 2, bod 3 og innredet rom.
Boligen er av eldre dato (trolig flyttet til eiendommen i ca. 1970) og er tilbygget tidlig 80-tallet.
I nærområdet er det bl.a. Bunnpris og Bolme Barnehage ca. 4 km unna, samt bensinstasjon rett ved eiendommen.
Inneholder:
1.etg: Gang, kjøkken, stue, bod, bad, kott og soverom. Ved inngangspartiet er det ei lita sommerstue.
Kjeller: Gang, eldre vaskerom, bod, 2 soverom, bod 2, bod 3 og innredet rom.
Boligen er av eldre dato (trolig flyttet til eiendommen i ca. 1970) og er tilbygget tidlig 80-tallet.
NB: Knappen for å vise hele beskrivelsen har kun en visuell effekt.
NB: Knappen for å vise hele beskrivelsen har kun en visuell effekt.
Salgsoppgaven beskriver vesentlig og lovpålagt informasjon om eiendommen
Se komplett salgsoppgaveNærområdet
Aktiv Orkla
Annonseinformasjon
| FINN-kode | 353978516 |
|---|---|
| Sist endret | 24. okt. 2025 06:20 |
| Referanse | 1702240157 |
Annonsene kan være mangelfulle i forhold til lovpålagt opplysningsplikt. Før bindende avtale inngås oppfordres interessenter til å innhente komplett informasjon fra meglerforetaket, selger eller utleier.




























