Bildegalleri

Koselig og fin uteplass ved terrassen med boblebad
Solgt
Sentrum syd
Innholdsrik fin enebolig , 2 plan + kjeller, anneks, meget sentralt, 5 min å gå til Holmestrand sentrum
Prisantydning4 290 000 kr
Nøkkelinfo
- Boligtype
- Enebolig
- Eieform
- Eier (Selveier)
- Soverom
- 2
- Internt bruksareal
- 185 m² (BRA-i)
- Bruksareal
- 235 m²
- Eksternt bruksareal
- 50 m² (BRA-e)
- Balkong/Terrasse
- 38 m² (TBA)
- Byggeår
- 1930
- Energimerking
- G - Oransje
- Rom
- 5
- Tomteareal
- 841 m² (eiet)
Fasiliteter
Balkong/Terrasse
Barnevennlig
Hage
Peis/Ildsted
Rolig
Sentralt
Turterreng
Om boligen
Sentral og fin beliggenhet syd i Holmestrand med ca.10 min å gå til Hagemannsparken med koselig båthavn og badestrand. Litt sjøutsikt.
Det er kort vei til byens sentrum med koselige bryggeområder og båthavn. Badestrand ved Dulpen. Sentrum med forretninger, kafeer, restauranter og nyere flott bibliotek med fine utearealer, nyere barnehage rett ved. ca. 50 min til Oslo, 20 min til Drammen.
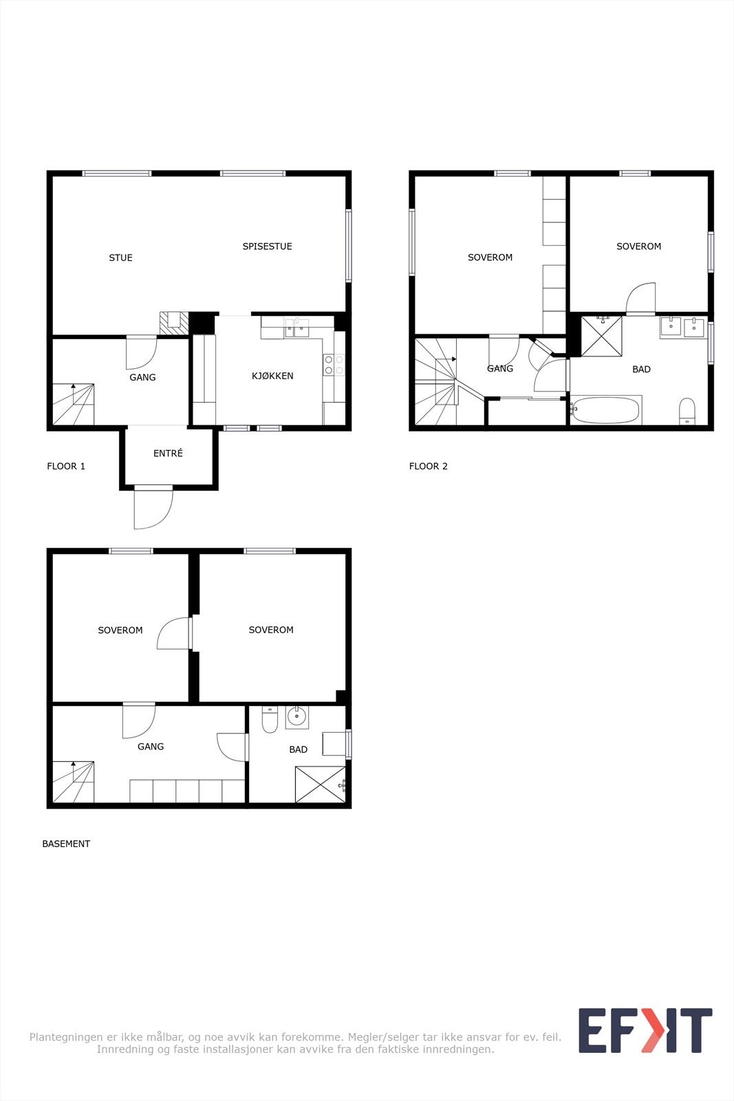
Koselig enebolig , 1 etg: Vindfang, hall, koselig stue, pent kjøkken.
2 etg: gang med luke til delvis gulvet loft.
Nyere lekkert bad/wc, 2 soverom hvorav 1 med sjøgløtt.
Kjeller; 1 innredet/gang, bad/wc og 2 soverom.
Koselig anneks med innlagt vann. 1 rom og bad/wc med belegg og våtromsplater. Verksted.
Parkering i romslig asfaltert gårdsplass. Hage med hekk. Stor solrik terrasse.
Det er kort vei til byens sentrum med koselige bryggeområder og båthavn. Badestrand ved Dulpen. Sentrum med forretninger, kafeer, restauranter og nyere flott bibliotek med fine utearealer, nyere barnehage rett ved. ca. 50 min til Oslo, 20 min til Drammen.
Koselig enebolig , 1 etg: Vindfang, hall, koselig stue, pent kjøkken.
2 etg: gang med luke til delvis gulvet loft.
Nyere lekkert bad/wc, 2 soverom hvorav 1 med sjøgløtt.
Kjeller; 1 innredet/gang, bad/wc og 2 soverom.
Koselig anneks med innlagt vann. 1 rom og bad/wc med belegg og våtromsplater. Verksted.
Parkering i romslig asfaltert gårdsplass. Hage med hekk. Stor solrik terrasse.
NB: Knappen for å vise hele beskrivelsen har kun en visuell effekt.
NB: Knappen for å vise hele beskrivelsen har kun en visuell effekt.
Salgsoppgaven beskriver vesentlig og lovpålagt informasjon om eiendommen
Se komplett salgsoppgaveNyttige lenker
Nærområdet
Eiendomsmegler 1 Holmestrand
et foretak i SpareBank 1 Sør-Norge konsernet
Prisstatistikk
Sykehusveien 20
6 213 klikk
på annonsen
23 189 kr
prisantydning per kvadratmeter
Prisfordeling
Pris per m² ligger 5 811 kr under snittet for eneboliger i Holmestrand.
Grafen viser antall eneboliger solgt i Holmestrand siste året fordelt på pris per m² - totalt 227 eneboliger
Antall boliger
Kvadratmeterpris tilsvarer prisantydning pluss fellesgjeld per kvadratmeter (p-rom eller BRA-i). Prisene i grafen er avrundet til nærmeste 1000 kr.
Annonseinformasjon
| FINN-kode | 353960185 |
|---|---|
| Sist endret | 07. aug. 2025 06:00 |
| Referanse | 7029240026 |
Annonsene kan være mangelfulle i forhold til lovpålagt opplysningsplikt. Før bindende avtale inngås oppfordres interessenter til å innhente komplett informasjon fra meglerforetaket, selger eller utleier.











































