Bildegalleri

Nyoppført delvis møblert hytte med med spektakulær utsikt | 4 soverom | Bad | WC | Bod
- Omkostninger
- 19 920 kr
- Totalpris
- 5 009 920 kr
Nøkkelinfo
- Beliggenhet
- Ved sjøen
- Boligtype
- Hytte
- Eieform
- Eier (Selveier)
- Internt bruksareal
- 96 m² (BRA-i)
- Bruksareal
- 96 m²
- Balkong/Terrasse
- 41 m² (TBA)
- Tomt
- Eiet
- Byggeår
- 2023
- Soverom
- 4
Fasiliteter
Visning
Ta kontakt for å avtale visning.Om eiendommen
Beliggenhet
Velkommen til Herje Hyttefelt!
Feltet har en naturskjønn beliggenhet med utsikt til topp og vann – og med kort vei til fiske, fjordaktiviteter og fjellet, hvor det venter spennende turer og opplevelser for både små og store føtter. Herje hyttefelt ligger midt mellom Åndalsnes og Molde i Møre og Romsdal (ca. 30 min fra hver side). Hyttefeltet er lett tilgjengelig fra hovedvei. Glad i natur, fjord og fjell? Bygg din Tindehytte i skjønne omgivelser nær vannet. I umiddelbar nærhet er det fine turmuligheter, både til fjellvann og nærliggende topper. Det er gratis utleie av kano. Mulighet for fiske, og leie av båter og båtplass i småbåthavna som er tilknyttet feltet. På vinteren blir det kjørt opp langrennsløyper ved Herjevatnet.
Adkomst/Tomteforhold
Fra Dombås (Oslo/Trondheim):
Følg E136 vestover fra Dombås. Veien går ned gjennom den dramatiske Romsdalen til Åndalsnes. Kjør så RV64 mot Molde til Åfarnes og følg videre på RV660 i 2 km.
Fra Ålesund:
Følg E136 østover via Sjøholt og over Ørskogfjellet. Kjør så RV64 mot Molde til Åfarnes og følg videre på RV660 i 2 km til Åfarnes og videre til Herje.
Fra Molde:
Kjør østover langs RV64mot Sølsnes, hvor det går ferge over fjorden til Åfarnes. Følg RV660 i 2 km til Åfarnes og videre til Herje.
Fra Geiranger:
Følg Rv63 nordover, via ferge Eidsdal-Linge og den fantastiske Trollstigen.
Kjør så RV64 mot Molde til Åfarnes og følg videre på RV660 i 2 km til Åfarnes og videre til Herje.
Generelt
Herje hyttefelt store selveiertomter fra 1200–1600m² med flott utsikt utover sjø og fjell. Alle tomter har innlagt vann, avløp og strøm.
Tre gode hyttemodeller er forslått i forskjellige størrelser men man er fri til å velge andre hyttemodeller fra våre hyttekataloger.
Tomtefeltet ligger i vakker natur med flott utsikt til Langfjorden og store deler av Romsdalsfjorden. Tomtene har panoramautsikt utover sjø og fjell og kveldssol til halv 12 på kvelden om sommeren!
Flere av landets største turistattraksjoner ligger i
nærområdet slik som Trollstigen, Trollveggen,
Atlanterhavsveien og Mardalsfossen. Om du har egen båt, kan du leie plass i båthavnen vår. Der det også er en stor overbygd sløyeplass med lys og vann.
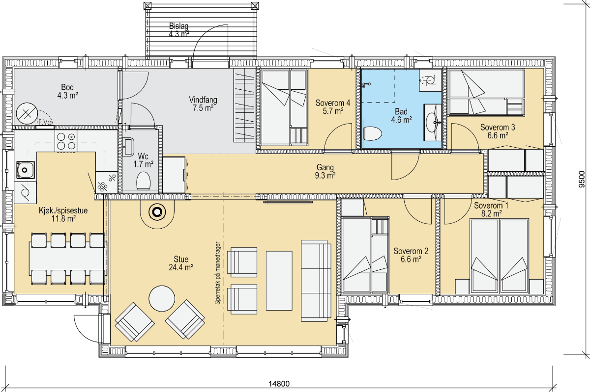
Rondane 100 er en modell med fire gode soverom. Hytta har et romslig bad og egen WC. I tillegg en innvendig bod med varmtvannsbereder og med plass til bl.a. vaskemaskin. Åpen stue/kjøkken løsning der kjøkkenet er litt skjermet fra stua og har egen spiseplass.
Hytta selges som den står og med alle møblene til fast pris!
Leveransebeskrivelse
Generell utførelse
• Stående 22x198 Faspanel m/stor V-fuge. 20 cm isolasjon i yttervegg. Utvendig grunnet og beiset i fargen Jernvitrol. Omramming med rette hjørner.
• Valdres takshingel
• Takstige og snøfangere der det er krav.
• Vinduer iht. tegning. 2-lag energiglass, standard farge sort NC SS 8500N. Vinduer med gjennomgående sprosser.
• Takrenner i sort stål.
• Tinde ytterdør m/vindu, malt sort, NCSS 8500N
• Terrasse leveres der det er vist på tegninger med rekkverk og sauestengsel.
• Isolasjon 25 cm i tak, 20 cm yttervegg og 10 cm i innervegger.
• Flytende gulv med 13 mm eikeparkett 3-stavs, type Kährs.
• Innvendige furupanel fra Moelven: 13 mm Sprekkpanel på vegger og himling, beist i fargen Tindegrå.
• Glatt standard listverk, beiset i fargen Tindegrå.
• Trend 1 innerdører, malt sort, NCSS 8500 N. Dempelist på dørene og sorte vridere.
• Kjøkken fra Sigdal Kjøkken av typen Vidde, Korn med Eik laminat benkeplate og Slimline kjøkkenventilator (hvitevarer følger ikke med).
Rørlegger/innvendig sanitær
Rørleggerarbeid med utstyr iht. standard rørleggeroppsett. I utstyrsoversikt kan nevnes:
• Bunnledninger (rør som ligger i betongplate innenfor ringmur fram til toalett, sluker osv.).
• Rette slagdører i dusjnisje evnt. Dusjnisjedør (iht. tegning) med dusjgarnityr.
• Vegghengt toalett med innebygd sisterne.
• Unidrainsluk på bad.
• Baderomsinnredning m/skuffer grå, porselensvask og speil.
• Innredning med vask og speilskap på WC rom.
• Varmtvannsbereder 200 liter.
• 1-greps blandebatterier på kjøkken, bad og evnt. andre våtrom.
• Opplegg for tilkobling av kjøkkenbenk m/ 1-greps benkebatteri med høy tut, samt opplegg for tilkobling av oppvaskmaskin.
• Lekkasjesikring/vannstoppeventil.
Murer, Flis, pipe og ildsted
• Peisovn med sideglass og m/glassplate montert på sort stålpipe.
• Flislagt gulv i vindfang med 30x60cm flis.
• Flislagt gulv på bad og WC med 30 x 60 fliser.
• Flislagt vegg i dusjhjørne på bad med 30x60 cm flis.
• Flislagt gulv på innvendig bod med 30x30 cm flis.
Elektroinstallasjoner og utstyr
Elektrikerarbeid med utstyr iht. standard elektrikeroppsett. I utstyrsoversikt kan nevnes:
• Inntaksskap og kabel mellom inntak og sikringsskap.
• Sikringsskap m/overbelastningsvern, jordfeilautomater og overspenningsvern.
• EL-punkter (iht. NEK 400).
• Varmekabler med termostat og føler i vindfang og våtrom.
• Lun varme i stue, kjøkken og gang
• Strømforsyning til seriekoblet røkvarslere m/backup batteri.
• Astrour-styrte utelamper.
• Downlights leveres i vindfang, gang, bad, wc og kjøkken.
• Taklamper leveres i soverom og bod.
• Panelovner, stikkontakter, komfyrvakt.
Prisen er for ferdig oppsatt hytte inkl. tomt og grunnarbeid og møbler.
Dokumentavgift på tomta på 2,5% kommer i tillegg.
Salgsoppgaven beskriver vesentlig og lovpålagt informasjon om eiendommen
Se komplett salgsoppgaveNærområdet
Tindehytter AS
Annonsene kan være mangelfulle i forhold til lovpålagt opplysningsplikt. Før bindende avtale inngås oppfordres interessenter til å innhente komplett informasjon fra meglerforetaket, selger eller utleier.




























