Bildegalleri

Wallemsvikveien 3 presenteres av EIE eiendomsmegling ved Joakim Wiik Bjerknes.
Gravdal | Romslig tomt med kondemnerbar enebolig. Stort potensial. Godkjent rammetillatelse for enebolig over to etasjer
Nøkkelinfo
- Boligtype
- Enebolig
- Eieform
- Eier (Selveier)
- Primærrom
- 90 m²
- Bruksareal
- 90 m²
- Tomteareal
- 1 530 m² (eiet)
Visning
Om boligen
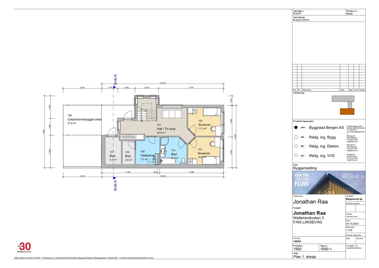
Kondemnerbar enebolig på skrående eiet tomt. Boligen er i en fatning som anses og ikke ha noe teknisk verdi og den behøver omfattende restaurering eller riving. Tilleggstomt har oppført garasje, denne er også kondemnerbar. Det foreligger godkjent rammetillatelse for bl.a. oppføring av ny enebolig over to etasjer.
Det foreligger godkjent rammetillatelse datert 20.12.2023 vedrørende:
- Riving av eksisterende bolighus ca. 90 kvm BRA.
- Nybygg enebolig ca. 191 kvm BRA med tilhørende opparbeiding av utomhusareal.
- Vesentlig terrenginngrep.
- Anlegging av ny vei og avkjørsel.
- Parkeringsplass ca. 18 kvm BRA.
Rammetillatelsen er gyldig i senest innen 3 år etter tillatelsen er gitt. Det må søkes om igangsettingstillatelse i god tid slik at tiltaket kan være vesentlig igangsatt innen fristen på 3 år
Salgsoppgaven beskriver vesentlig og lovpålagt informasjon om eiendommen
Se komplett salgsoppgaveNærområdet
Mekleriet Bergen Sentrum
Annonseinformasjon
| FINN-kode | 353859468 |
|---|---|
| Sist endret | 10. des. 2025 15:22 |
| Referanse | 81240011 |
Annonsene kan være mangelfulle i forhold til lovpålagt opplysningsplikt. Før bindende avtale inngås oppfordres interessenter til å innhente komplett informasjon fra meglerforetaket, selger eller utleier.





















