Bildegalleri

Sjelden anledning. Helt ny toppleilighet med optimale solforhold. Her ligger du alene på toppen med lys fra 3 sider og uhindret utsikt mot Stensparken. Vannbåren gulvvarme. Kun ment som illustrasjon.

Solgt
Bislett

Thereses gate 31

Fantastisk toppleilighet med solrik beliggenhet og nydelig utsikt over Stensparken - 2 bad

Prisantydning20 500 000 kr
Totalpris
20 623 190 kr
Omkostninger
123 190 kr
  • Planlegging

    Q2 2024

  • Salgsstart

    28. mai 2024

  • Byggestart

    Bygging pågår

  • Overtakelse

    Q3 2026

Nøkkelinfo

Boligtype
Leilighet
Etasje
5
Soverom
2
Rom
3
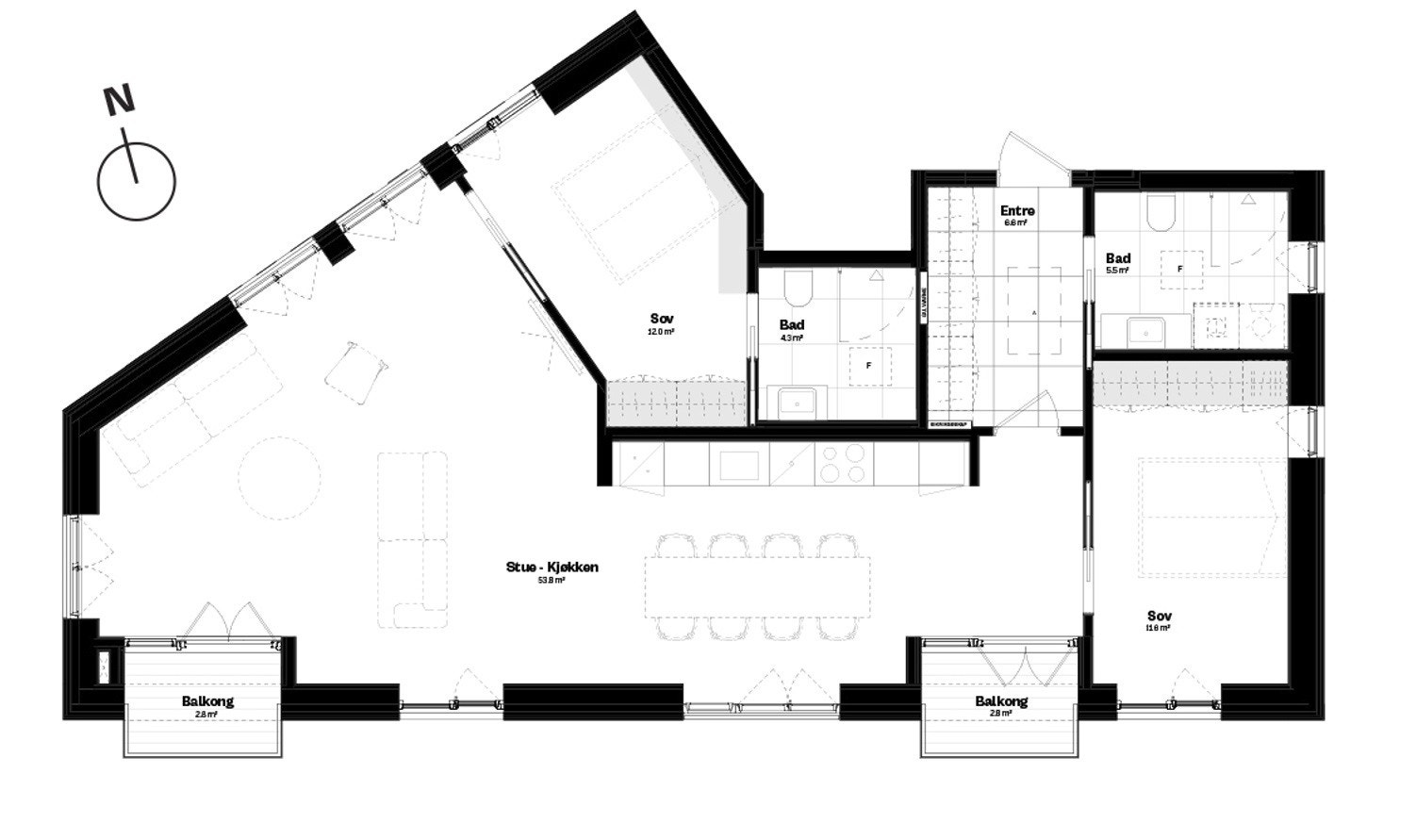
Internt bruksareal
97 m² (BRA-i)
Bruksareal
102 m²
Eksternt bruksareal
5 m² (BRA-e)
Balkong/Terrasse
5 m² (TBA)

Les mer om bruksareal her

Fasiliteter

Balkong/Terrasse
Bredbåndstilknytning
Garasje/P-plass
Heis
Turterreng

Beskrivelse

Dette er en presentasjon av leilighet LB501, en raus og innbydende toppleilighet med suveren beliggenhet i et av Oslo mest spennende prosjekter. Leiligheten inneholder stor stue med åpen kjøkkenløsning, og utgang til to balkonger. Her får du lys fra tre sider, optimale solforhold og nydelig utsikt mot Stensparken og nærområdet. God plass til både sittegruppe og spisestue. I tillegg 2 gode soverom og 2 bad. Stor entré med god plass til garderobeløsninger. Mulighet for leie av garasjeplass i nærområdet, konferer megler.

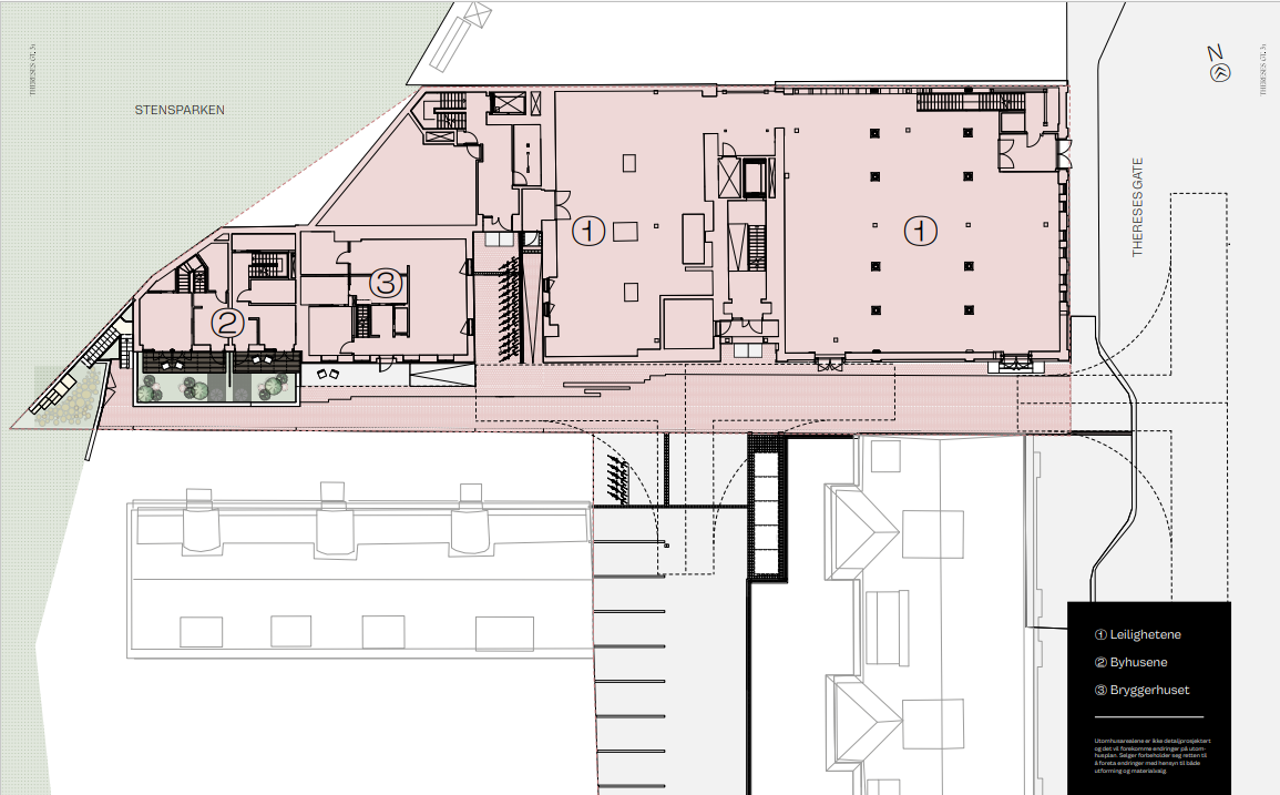
Thereses gate 31 består av et mangfold av ulike boliger, både beliggende i den originale bebyggelsen og i det som skal legges til. Vi kan tilby 2-roms, 3-roms og 4-roms leiligheter, helt nye byhus og et vakkert bryggerhus. Drømmeboliger midt i byen vår!

  • Spennende arkitektur med suveren beliggenhet
  • Gjennomgående høy kvalitet
  • Enstavs eikeparkett leveres som standard
  • Nydelige kjøkken fra Nordiska Kök
  • Integrerte hvitevarer fra Miele
  • Vannbåren gulvvarme
  • Urbant og grønt
  • Stensparken som nærmeste nabo
  • Mulighet for leie av garasjeplass
  • Ta trikken hvor du vil, og helt hjem
  • Tuvalu arkitekter
  • Interiørkonsept utarbeidet av Curious Yellow Design
  • Edit, designstudio for landskapsarkitektur og urbanisme
  • Veslefrikk og Bunde Eiendom

    Boligen selges til fast pris og etter prinsippet om førstemann til mølla. Ta gjerne kontakt med megler om du skulle ha spørsmål til prosessen, eller om oppsatt visningstidspunkt ikke passer. Vi tar gjerne en privat visning med deg.

    www.theresesgate.no

    KORT OM THERESESGATE 31
    Midt på Bislett i Oslo utvikler Veslefrikk og Bunde Eiendom boligprosjektet Thereses gate 31, tegnet av Tuvalu arkitekter. Leiligheter og byhus veves inn i de gamle, verneverdige fabrikkbygningene, og resultatet blir 27 nye hjem i hjertet av Oslo. Her kan vi kjenne duften av nykvernet kaffe, handle i nydelige nabolagsbutikker og ta trikken hele veien hjem.

    Sammen med Tuvalu har vi vært opptatt av å balansere kulturminner med det som skal bygges nytt, slik at historien som allerede finnes har en tydelig stemme i den nye helheten. Vi får derfor et mangfold av ulike boliger, både beliggende i den originale bebyggelsen og i det som skal legges til. Nå skal disse husene sammen finne sin plass i byen vår.

    Hver enkelt bolig er tilpasset omgivelsene og har sin helt egne identitet. Dette gir oss unike og spennende hjem, hvor lyset, utsynet og arkitekturen har fått spille en stor rolle i utformingen av hver enkelt bolig. Innvending vil det bli luftig, med store vindusflater som fanger sol og lys - og som rammer inn utsikten mot by og park. Det vil innredes med eikeparkett, kvalitetskjøkken, subtile fargevalg og vakre detaljer på alt fra benkeplater til dørhåndtak. Thereses gate 31 blir et mangfold av personlige drømmehjem med nydelige kvaliteter.

    BELIGGENHET
    På Bislett kan du kjenne den urbane pulsen slå, samtidig som du er midt i et historisk nabolag. De mange hyggelige gatene består av klassisk murbebyggelse med boliger, små butikker og spisesteder. Sjarmerende nisjebutikker, uformelle nabolagskafeer og gode spisesteder ligger som perler på en snor. Alt sammen i rusleavstand fra Thereses gate 31.

    Nabolaget har lange tradisjoner hvor barna går på Marienlyst skole, aker i Stensparken, kan trene på Bislett stadion eller kanskje synge i det anerkjente Bislett guttekor. I gaten er fortauet ekstra bredt, og fylles hver morgen av friske blomsterbuketter, duften av ferske boller og brød, nykvernet kaffe og naboer som skal av sted. En perfekt kulisse for et deilig byliv.

    Det beste med Oslo er den korte veien mellom de urbane strøkene og de grønne lungene. I Thereses gate 31 er vi tett på begge deler. På den ene siden tøffer trikken trofast gjennom Thereses gate og tar deg med hele veien hjem. På den andre siden er Stensparken en nær og kjær nabo, og mange av boligene vil ha utsyn mot parken og de store trekronene. Den grønne lungen er alles felles hage.

    Det er det indre som teller
    I Thereses gate 31 er hver enkelt bolig tilpasset omgivelsene og har sin helt egne identitet. Dette gir oss unike og spennende hjem, hvor lyset, utsynet og arkitekturen har fått spille en stor rolle i utformingen av hvert hus og hver leilighet. Innvendig vil det bli luftig, med store vindusflater som fanger sol og lys og som rammer inn utsikten mot by og park. Det vil innredes med eikeparkett, kvalitetskjøkken, subtile fargevalg og vakre detaljer på alt fra benkeplater til dørhåndtak. Thereses gate 31 blir et mangfold av personlige drømmehjem med nydelige kvaliteter. I samarbeid med arkitekt og interiørarkitekt har vi valgt gode, anerkjente leverandører.

    Svenske, håndbygde kjøkken fra Nordiska Kök
    Det er på kjøkkenet det skjer, i hjemmets hjerte. Nordiska Kök bygger alle sine kjøkken fra bunnen av i et eget snekkerverksted. Håndbygget og plassbygget i skandinavisk design, med sans for kvalitet og detaljer. Vi har valgt mørkbeiset trefinér kombinert med lyse overskap i melamin og benkeplate i kompositt fra Cæsarstone. Alle hvitevarer leveres av Miele.

    Bad
    Baderommet blir lunt og delikat med baderomsmøbel fra Haven i fargen røkt eik, kombinert med vask og benkeplate i hvit porselen. Blandebatteriene leveres av Tapwell, i fargen bronze som standard. Flisene leveres av Fagflis, en anerkjent leverandør av kvalitetsfliser. På gulvet har vi valgt nydelige fliser fra Vallelunga co, som kombineres med mindre fliser på vegg i dusjsone fra Pavigres.

    Gulv og oppvarming
    Et gulv bør både være vakkert og varig. Vi har valgt enstavs eikeparkett fra Skógr. Denne er mattlakkert og har en bruntone som er litt lysere enn eikens naturlige fargetone. Skógr er en anerkjent leverandør av eksklusive kvalitetsgulv i naturlige materialer. I entré flislegges det med store fliser fra Pavigres. Flisen leveres i en delikat beigetone med sjatteringer av rød terrazzostein som står fint til veggfargen.

    Behagelig og miljøvennlig oppvarming, med vannbåren gulvvarme tilknyttet fjernvarme.

    Farger- Lune og sofistikerte farger skaper vakre hjem
    Vi har ønsket å skape en grunnpalett med lyse, varme toner og nydelige fargekombinasjoner. Et unikt og spennende hjem helt uten hvite og grå vegger. Interiørarkitektene har utarbeidet forslag om å fargesette veggene med fargene Savanna Sunset i entré, Hummus i stue og kjøkken, og Devine på soverom, alle fra Jotun. En nydelig palett og et godt utgangspunkt for å innrede et personlig hjem.

    Innvendige dører
    Innvendige ettspeils kompaktdører i farge tilpasset prosjektet med dempelist. Karmer i samme farge som vegg. Dørhandtak av type Basics fra Formani i fargen bronze. Flat terskel i hvitlasert/lakkert eik.

    Personlig preg på ditt nye hjem
    Det skal være lunt og hyggelig å være hjemme, med god flyt mellom rommene, mye lys og vakre detaljer å hvile øynene på. Hver bolig er designet med gjennomtenkte valg av fargetoner, materialer og leverandører. Alt ligger til rette for å skape et unikt og spennende hjem med kvaliteter som varer i lang tid.

    Våre leverandører vil være behjelpelige med tilvalg eller endringer om det er ønskelig.

    PARKERING OG SPORTSBOD
    Det kan være mulig å leie p-plass i nærområdet. Konferer megler.

    Det følger med en bod iht. forskriftskrav per leilighet på minimum 5 kvm.

    VENTILASJON
    Det installeres balansert ventilasjon med varmegjenvinning. Separat aggregat i hver leilighet enten i bod, i himling i entre/ gang eller i kjøkkenventilator på enkelte 2-roms leiligheter. Avtrekk fra bad/WC, kjøkken og bod med overstrømning over terskel. Tilluft til øvrige rom.

    FREMDRIFT
    Prosjektet er planlagt gjennomført i ett byggetrinn. Forventet ferdigstillelse er 3. kvartal 2026, men dette tidspunktet er foreløpig, ikke bindende, og utløser ikke dagmulkt. Når selger har opphevet forbeholdene som selger har satt i kjøpekontrakten, skal selger fastsette en overtagelsesperiode som ikke skal vare lenger enn 3 måneder. Selger skal skriftlig varsle kjøper om når overtagelsesperioden begynner og slutter. Cirka 10 uker for ferdigstillelse av eiendommen skal selger gi kjøper skriftlig melding om endelig overtagelsesdato. Denne endelige datoen er bindende og dagmulktsutlosende, og skal ligge innenfor overtagelsesperioden.

    ØKONOMI
    FORSKUDD: Ved kontraktsinngåelse betales 5% av kjøpesum til meglers klientkonto. Hovedoppgjør (rest kjøpesum, kjøpsomkostninger og eventuelle tilvalg) innbetales én uke før overtagelse.

    KJØPSOMKOSTNINGER: Dokumentavgift vil utgjøre 2,5 % av andel tomteverdi, ca. kr. 1 130, pr. kvm BRA. Gebyr for tinglysning av skjøte, f.t. kr. 500, . Tinglysningsgebyr og attestgebyr for pantobligasjon i forbindelse med etablering av eventuelle lån, f.t. kr. 740, pr. obligasjon inkl. attest. Det tas forbehold om endring av satsene for offentlige gebyrer og avgifter i tiden frem til hjemmelsovergang finner sted. I tillegg innbetales a konto kr. 2 500, (fastledd) + 50, pr. kvm BRA til sameiet for likviditet i oppstartsfasen. Dette er ikke en kjøpsomkostning, men et likviditetstilskudd til sameiet som vil bli innkalt av forretningsfører. Beløpet vil kreves inn gjennom forretningsfører ved overtagelse, ofte i forbindelse med første faktura for felleskostnader.

    FELLESKOSTNADER: Størrelsen på fellesutgiftene er ikke fastsatt, men stipulerte fellesutgifter skal dekke sameiets ordinære driftsutgifter. Hvor store kostnadene blir vil blant annet avhenge av hvor mange ytelser sameiet rekvirerer og utviklingen av markedsprisen for disse ytelsene. Fellesutgiftene fordeles med 30% likt og 70% etter sameiebrøken. Basert på erfaring estimeres disse til ca. kr. 35 40, per kvm BRA per måned.

    Fellesutgiftene skal blant annet dekke kommunale avgifter, forsikring, forretningsførsel, revisjon, samt strøm og drift og vedlikehold av fellesarealer inne og ute. Dette omfatter blant annet brøyting og strøing av internveier.

    I tillegg til felleskostnadene kommer følgende faste eierkostnader:
    - Eiendomsskatt faktureres direkte fra Oslo kommune til den enkelte leilighetseier og vil variere avhengig av størrelse på boligen.
    - Eventuelt kabel-TV og bredbånd. Utbygger vil levere ferdig kablet anlegg, frem til leiligheten. Kostnad vil være avhengig av valgt løsning. Ved tegning av abonnement tilkommer en tilknytningsavgift.
    - Kostnader til strøm, innboforsikring og innvendig vedlikehold for den enkelte enhet.
    - For oppvarming anslås det kr. 15, pr. kvm/mnd.

    Selger vil budsjettere driftskostnadene for første hele driftsår, og på bakgrunn av dette beregne andel av felleskostnader som kjøper er forpliktet til a dekke. Eierseksjonsloven og sameiets vedtekter forplikter kjøperen i forbindelse med dette. Driftskostnadene er budsjettert på bakgrunn av erfaringstall fra lignende prosjekter og vil kunne vare gjenstand for senere endringer etter vedtak i årsmøtet.

    LOVGRUNNLAG
    Boligene selges iht. bestemmelsene i bustadoppføringslova til forbrukerkjøpere, herunder 5 års garanti iht. lovens §12. For øvrig gjelder eierseksjonsloven for sameiet og driften av dette.

    Denne annonsen utgjør ingen fullgod eller uttømmende presentasjon av prosjektet/eiendommen. Det er derfor viktig at interessenter kontakter megler for å få tilsendt komplett salgsdokumentasjon og går nøye gjennom dette før inngivelse av kjøpetilbud.

Ansvarlig megler

Trygve Formo Hermansen

Nærområdet

Annonseinformasjon

FINN-kode353330832
Sist endret02. juli 2024 15:00
Referanse21-24-0462

Rapporter annonse

Annonsene kan være mangelfulle i forhold til lovpålagt opplysningsplikt. Før bindende avtale inngås oppfordres interessenter til å innhente komplett informasjon fra meglerforetaket, selger eller utleier.