Bildegalleri

Velkommen til Gruva
Inaktiv
Fin endeleilighet i 1.etg. Klar til innflytting. Dobbelboligforsikring. Elbillader i carport. Fjernvarme i gulv.
Prisantydning3 265 000 kr
Nøkkelinfo
- Boligtype
- Leilighet
- Eieform
- Eier (Selveier)
- Soverom
- 2
- Primærrom
- 65 m²
- Bruksareal
- 65 m²
- Etasje
- 1
- Byggeår
- 2024
- Rom
- 3
- Tomteareal
- 2 374 m² (eiet)
Fasiliteter
Balkong/Terrasse
Barnevennlig
Bredbåndstilknytning
Garasje/P-plass
Hage
Kjæledyr tillatt
Kabel-TV
Offentlig vann/kloakk
Parkett
Rolig
Sentralt
Utsikt
Turterreng
Lademulighet
Balansert ventilasjon
Visning
Ved annonsert visning er det viktig at du melder deg på visningen ved å bruke visningspåmeldingsknappen eller kontakter megler. Annonserte visninger hvor det ikke er noen påmeldte innen kl. 14.00 visningsdagen vil ikke bli avholdt. For visninger utover dette, ta direkte kontakt med megler.
VisningspåmeldingOm boligen
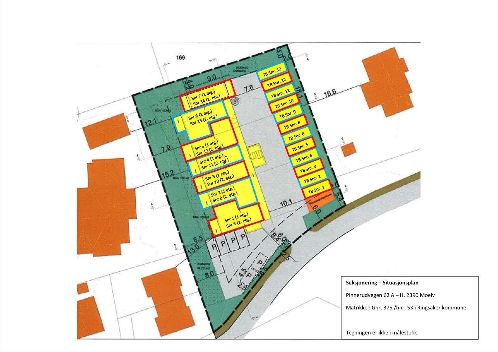
Ny endeleilighet i Pinnerudvegen 62 i Moelv. Beliggende i 1.etg. Leiligheten får egen carport (med elbillader) i eget fellesanlegg og det blir opparbeidet tilstrekkelig med gjesteparkering.
Leilighetene blir tilknyttet det lokale fjernvarmeanlegget og leveransen vil blant annet inkludere fjernvarme i alle gulv, varmekabler på bad samt downlights i gang, bad og kjøkkenområdet.
Selger har tegnet dobbeltboligforsikring. Hvis boligen din ikke er solgt etter 3 mnd, dekker forsikringen bokostnadene dine på inntil 15.000 kr. per mnd i 9 mnd om du ikke får solgt boligen din.
Kort fortalt:
- Elbillader
- Carport
- Fjernvarme i alle gulv
- God takhøyde 270*
- Fiber bredbånd
- Dobbeltboligforsikring - sikre mot doble kostnader
Leilighetene blir tilknyttet det lokale fjernvarmeanlegget og leveransen vil blant annet inkludere fjernvarme i alle gulv, varmekabler på bad samt downlights i gang, bad og kjøkkenområdet.
Selger har tegnet dobbeltboligforsikring. Hvis boligen din ikke er solgt etter 3 mnd, dekker forsikringen bokostnadene dine på inntil 15.000 kr. per mnd i 9 mnd om du ikke får solgt boligen din.
Kort fortalt:
- Elbillader
- Carport
- Fjernvarme i alle gulv
- God takhøyde 270*
- Fiber bredbånd
- Dobbeltboligforsikring - sikre mot doble kostnader
NB: Knappen for å vise hele beskrivelsen har kun en visuell effekt.
NB: Knappen for å vise hele beskrivelsen har kun en visuell effekt.
Salgsoppgaven beskriver vesentlig og lovpålagt informasjon om eiendommen
Se komplett salgsoppgaveNyttige lenker
Nærområdet
Aktiv Innlandet
Annonseinformasjon
| FINN-kode | 353316227 |
|---|---|
| Sist endret | 26. aug. 2024 10:14 |
| Referanse | 1214240040 |
Annonsene kan være mangelfulle i forhold til lovpålagt opplysningsplikt. Før bindende avtale inngås oppfordres interessenter til å innhente komplett informasjon fra meglerforetaket, selger eller utleier.


























