Bildegalleri

Boligen ligger i hjertet av Stjørdal sentrum, hvor du har alt av fasiliteter innen umiddelbar nærhet.
Øverlands gate 2A og 2B
Øverlands gate 2A og 2B
Prosjektets status
Planlegging
-
Salgsstart
-
Byggestart
-
Overtakelse
-
Nøkkelinfo
- Boligtype
- Tomannsbolig
- Soverom
- 2
- Internt bruksareal
- 82 m² (BRA-i)
- Bruksareal
- 86 m²
- Eksternt bruksareal
- 4 m² (BRA-e)
- Balkong/Terrasse
- 65 m² (TBA)
Beskrivelse
Oppdragsansvarlig
Stjørdal Eiendomsmegling AS / Stefanos Pitharoulis
Selger/Utbygger
Steinvik-Eiendom AS v. Ole Martin Steinvik
Betegnelse
Gnr. 102 Bnr. 1263 Snr. 2 i Stjørdal kommune
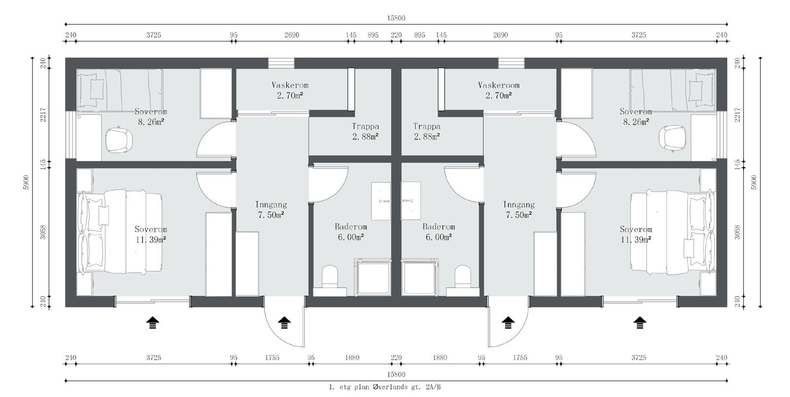
Arealer og fordeling per etasje
Totalt BRA '86 kvm består av:
- BRA-i (internt bruksareal): 82 kvm
- BRA-e (eksternt bruksareal): 4 kvm
- TBA (terrasse-/balkongareal) 65 kvm
Det totale bruksarealet fordeler seg som følger:
Første etasje:
- BRA: 45 m²
- BRA-i: 41 m²
- BRA-b: 4 m²
Andre etasje:
- BRA: 41 m²
- BRA-i: 41 m²
Carport
BRA 13 m²:
Hver enhet vil få et BRA-i på ca 82 kvm som vil bestå av 2/3 soverom, bad, bod, kjøkken og stue. Takterrasse til hver bolig. Enhetene vil også få en egen utvendig bod som utgjør BRA-e på ca. 4 kvm. Hver enhet vil også få egen plass i carportanlegg.
Merknad areal:
Arealer er hentet fra arkitektens tegninger. De oppgitte arealer i markedsføringen er å betrakte som cirka areal. Partene har ingen krav mot hverandre dersom arealet skulle vise seg å være 5% mindre/større enn markedsført areal.
Arealer og fordeling pr. etasje
Bruksareal: 86 kvm, BRA-i: 82 kvm , BRA-e: 4 kvm , TBA: 65 kvm
Kvaliteter
Privatmegleren har gleden av å presentere et nytt kommende prosjekt med 2 moderne halvparter av tomannsbolig med takterrasse.
Boligene vil være i funkisstil over 2 plan med en arealeffektiv planløsning. Ypperlig beliggenhet i hjertet av Stjørdal sentrum, hvor du har alt av fasiliteter innen umiddelbar nærhet, men bor i en rolig tilbaketrukket gate.
Boligene vil inneholde bl.a.:
2 eller 3 soverom (mulighet for større stue)
Takterrasse til hver bolig
Bad og separat vaskerom
Ekstra god takhøyde i stue/kjøkken
Egen parkering i carport og utvendig bod
Fordeler med å kjøpe prosjekt:
- Du betaler ingenting før boligen er ferdig
- God tid til forberedelse av evt. eget salg
- 5 års garanti på hele boligen
- Leveres nøkkelferdig og innflyttingsklart
- Mange muligheter for tilvalg og tilpasninger for å tilpasse bolig til sin stil og sin drømmebolig
Beliggenhet
Boligen ligger i hjertet av Stjørdal sentrum, hvor du har alt av fasiliteter innen umiddelbar nærhet. Her finnes dagligvare, shoppingsenter med butikker, frisør, apotek og vinmonopol. Utenfor Torgkvartalet kan bykjernen by på flere kafeer og restauranter i Kjøpmannsgata og et nytt kulturhus som ble åpnet i 2015. Kulturhuset inneholder flere kinosaler, ungdomsklubb, kulturskole, kirke og bibliotek. I umiddelbar nærheten finner du også treningssenter og kollektivtransport. Det er også kort vei til flere av sentrumskjernen sine flotte parkområder, som Blinkparken, Kimenparken og Ole Vigs park.
Sentrumskjernen byr på flere butikker for dagligvarehandel. Prix ved Stjørdalsporten, Coop Mega på Torgkvartalet eller Kiwi på Mindes hus. Alt innenfor kort gange fra leiligheten. Videre er sentrumstilbudet med butikker, serveringssteder og tilbud generelt økt betraktelig de siste årene.
Like utenfor boligen kan man by på flotte turområder. En gåtur langs sjøsiden kan være flott på fine sommerdager. Da er det heller ikke langt til småbåthavna eller Storvika dersom man ønsker et forfriskende bad.
Boligens beliggenhet gjør at den også utmerket egner seg for pendlere. Fra boligen har man Stjørdal togstasjon med både buss- og togtilbud innen en spasertur på ca. 10 min. Første stopp i sørgående retning med toget er Trondheim Lufthavn Værnes.
Bygninger
Tomannsbolig, vertikaldelt.
Byggemåte
Se leveransebeskrivelse vedlagt salgsoppgaven for detaljer om byggemåte. Boligene blir oppført iht. bestemmelsene i Plan og Bygningsloven og Teknisk forskrift.
Møblering
Alle illustrasjoner, skisser, møblerte plantegninger m.m. er kun ment for å danne inntrykk av den ferdige bebyggelsen, og kan således ikke anses som endelig leveranse. Det vil fremkomme elementer i presentasjonsmaterialet som ikke inngår i leveransen.
Oppvarming
EL -varmekabler rom med flis. Stålrørspipe eller pipemodul i boligen. Ovn og montering er ikke inkludert. I tillegg er det mulig med varmepumpe, dette avklares før byggestart og er et tillegg.
Eventuell tilleggsvarme besørges av kjøper etter eget ønske og behov.
Parkering / Garasje
Carport.
Beskrivelse av tomt
Fellestomt for sameiet.
Utomhus-areal er planert med knuste varer eller sand, opparbeidelse av plen, hekk og annen beplanting er ikke med i leveransen. Det gjøres oppmerksom på at deler av utomhusarealene kan ha en senere ferdigstillelse på grunn av tidspunkt for salg og avtale om overtakelse. Dette i forhold til årstiden. Utomhusplanen kan avvike noe fra illustrasjon til ferdig bygget.
Tinglyste rettigheter og forpliktelser
Kommunen har legalpant som sikkerhet for betaling av kommunale avgifter. Legalpant er pant som følger av loven, og som ikke tinglyses. Legalpant følger derfor eiendommen ved salg. På eiendommen kan det være tinglyst erklæringer som f eks rett for kommunen til å vedlikeholde rørsystemer for vann- og kloakk. Disse erklæringene vil følge eiendommen ved salg. Kontakt megler for nærmere informasjon.
Øvrige sameiere har panterett i seksjonen for krav mot sameieren som følge av sameieforholdet, jf. eierseksjonsloven § 31. Pantekravet kan ikke overstige 2G (Folketrygdens grunnbeløp). Sameiet kan vedtektsfeste ytterligere panterett for sameiet. Vedtektsfestet pant tinglyses i seksjonene.
Servitutter / rettigheter
Eiendommen overdras fri for pengeheftelser, med unntak av eventuelle erklæringer, avtaler, servitutter og panteheftelser som fremgår av salgsoppgaven og skal følge med eiendommen ved salg. Kjøpers bank vil få prioritet etter disse.
Tinglyste heftelser/servitutter i gnr. 102, bnr. 1263:
1959/1321-1/67 Erklæring/avtale
24.04.1959
Bestemmelse om samvirke vedkommende vertikalt delt bolig
Overført fra: 5035-102/295
Gjelder denne registerenheten med flere
2022/300428-3/200 Bestemmelse om bebyggelse
17.03.2022 21:00
rettighetshaver:Knr:5035 Gnr:102 Bnr:295
Tillatt å bygge nærmere tomtegrensen enn 4 m
2022/300428-4/200 Bestemmelse om vann/kloakk
17.03.2022 21:00
rettighetshaver:Knr:5035 Gnr:102 Bnr:295
Tinglyste rettigheter i gnr. 102, bnr. 295:
2022/300428-1/200 Bestemmelse om adkomstrett
17.03.2022 21:00
rettighetshaver:Knr:5035 Gnr:102 Bnr:1263 har veirett over eiendommen iht vedlagte kart. Vedlikehold og kostnader for fellesinnkjørsel deles likt mellom eiendommene. Rettighetshaver har også rett til å bruke tomten som manøvreringsareal ved behov. Se vedlagt erklæring for detaljer.
2022/300428-2/200 Bestemmelse om bebyggelse
17.03.2022 21:00
rettighetshaver:Knr:5035 Gnr:102 Bnr:1263
Tillatt å bygge nærmere tomtegrensen enn 4 m. Rettighetshaver har rett til å oppføre og ha stående bygning(f.eks garasje) i felles eiendomsgrense. Se vedlagt erklæring for detaljer.
Kjøper kan ikke motsette seg fremtidig tinglysning av avtaler fra Stjørdal kommune som regulerer vann/avløp o.l., samt erklæringer / forpliktelser til sameie/velforening/veilag eller andre leverandører f.eks strøm og fiber/kabel-tv/internett.
Vei / Vann / Avløp
Eiendommen vil bli tilkoblet offentlig vann og kloakk, via private stikkledninger. Sameiet har ansvar for vedlikehold av private stikkledninger frem til offentlig punkt. Kostnader ved evt. utskiftinger av private ledninger fordeles iht eierbrøk, evt dekkes av oppsparte midler.
Privat gårdsvei fram til offentlig vei. Kostnader til brøyting/vedlikehold av privat vei må påregnes.
Ferdigattest eller midl. brukstillatelse
Midlertidig brukstillatelse eller ferdigattest skal foreligge innen overtakelse av boligen. Det er selgers ansvar å fremskaffe ferdigattest. Midlertidig brukstillatelse gir imidlertid kjøper anledning til å ta boligen i bruk. Manglende ferdigattest skal ikke være til hinder for selgers oppgjør i forbindelse med overtakelsen. Megler oppfordrer likevel kjøper til å holde tilbake et forholdsmessig beløp ved overtakelsen dersom boligen overtas mot midl.brukstillatelse, til sikkerhet for at ferdigattest blir stilt.
Boligen leveres i byggerengjort stand.
Verdi ved skattefastsetting
Verdien ved skattefastsetting er p.t. ikke fastsatt. Verdien ved skattefastsetting fastsettes av Ligningskontoret etter beregningsmodell som tar hensyn til om boligen er en såkalt "primærbolig" (der boligeieren er folkeregistrert bosatt) eller "sekundærbolig" (alle boliger man eier, men ikke bor fast i). Interessenter oppfordres til å sjekke www.skatteetaten.no eller kontakte ansvarlig megler for nærmere informasjon om verdien ved skattefastsetting.
Reguleringsforhold
Eiendommen er regulert til boligformål og er opprinnelig underlagt reguleringsplan "Sentrumsplan Stjørdalshalsen". Denne reguleringsplanen overstyres av kommuneplanens arealdel 2013-2022 (KPA). I kommuneplanen ligger eiendommen i fortettingskategori BF3. Eiendommen ligger også i område for bla. "Gul støysone iht T-1442" iht kommuneplanen.
Reguleringsplan og kommuneplan med tilhørende bestemmelser kan ses ved henvendelse til megler
Beskrivelse av sameiet
En sameier eier en andel i eiendommen, med tilknyttet enerett til bruk av sin bruksenhet, jf. eierseksjonsloven § 25.
Ingen kan erverve mer enn to boligseksjoner i et sameie, jf. eierseksjonsloven § 23 første ledd. Dersom et erverv har funnet sted i strid med eierseksjonslovens regler kan Kartverket nekte overskjøting. Dersom overskjøting blir nektet, er kjøper likevel forpliktet til å gjennomføre handelen med selger, og oppgjør til selger vil finne sted tross manglende overskjøting.
Ved erverv av bolig blir kjøper sameier i et fremtidig eierseksjonssameie, jfr. lov om eierseksjoner av 16.juni 2017 nr. 65. Boligsameiet administrerer fellesinteressene, herunder driften av fellesarealer; herunder også utomhusanlegg. Som sameier i et eierseksjonssameie har sameierne til enhver tid, rett og plikt til å følge eierseksjonsloven og de til enhver tid gjeldende vedtekter for sameiet.
Som seksjonseier, påhviler det plikt til å svare andel av sameiets kostnader til drift og vedlikehold av eiendommen (felleskostnader) fra overtakelsestidspunktet.
Selger har i forbindelse med seksjoneringen utarbeidet vedtekter som skal gjelde for sameiet. Det er også utarbeidet en bruksrettsplan som viser hvordan bruksretten til tomtearealet fordeles mellom de to seksjonene. Det er ikke utarbeidet forslag til budsjett eller stipulert felleskostnader for sameiet. Det vil bli opp til seksjonseierne hva de eventuelt ønsker skal inngå i månedlige felleskostnader. Konf. megler ved spørsmål.
Interessenter oppfordres til å sette seg inn i sameiets vedtekter, seksjonering bruksrettplan m.m. Kjøpere vil måtte innbetale kr 10 000,- i startkapital til sameiet.
Andre faste løpende kostnader
- Det er ikke stipulert felleskostnader for det framtidige sameiet. Eierene må selv avgjøre om de vil betale noe felleskostnader og hva som eventuelt skal inngå i disse. Ved behov for drift og vedlikehold av sameiet må kjøper påregne å betale sin andel.
- Kommunale avgifter er p.t. ikke fastsatt. Disse fastsettes av Stjørdal kommune etter ferdigstillelse.
- Avgifter til Innherred renovasjon er p.t. ikke fastsatt og vil avhenge av valgt abbonement.
- Villa-/husforsikring besørges av kjøper fra overtakelsesdagen. Priser på forsikring vil variere ut ifra leverandør og individuelle avtaler. Det vil bli opp til seksjonseierne om de skal ha felles husforsikring.
- Strøm vil variere ut ifra leverandør og forbruk.
- Abonnement for kabel-tv/ internett/ telefoni: Kostnader til dette må påregnes. Pris vil variere utifra leverandør og abbonement. Påkoblingsavgift vil tilkomme
Andel fellesgjeld / formue
Andel fellesgjeld kr. 0,- / Andel fellesformue kr. 0,- pr ifølge forretningsfører.
Andel fellesgjeld og evt. formue overtas av kjøper.
Oppgjør
Hele kjøpesummen inklusive bestilte tilvalg og omkostninger innbetales 3 dager før overtakelse.
Utbetaling av oppgjør til selger forutsetter at megler har mottatt signert overtagelsesprotokoll, midlertidig brukstillatelse eller ferdigattest, samt at fullt oppgjør er innbetalt og at hjemmel er overført til kjøper. Entreprenørgaranti (iht §12 i buofl.) må også være utstedt og gyldig ved overtagelsestidspunktet.
Finansiering
Kontakt megler for avklaring av finansielle forhold, herunder lån til kjøp av eiendom. Privatmegleren har avtale med Nordea om formidling av lån og andre finansielle tjenester. Privatmegleren mottar godtgjørelse for dette.
Annen nyttig informasjon
Kapittel VI i Bustadoppføringslova gir kjøper en avbestillingsrett. Dersom slik rett benyttes vil kjøper bli holdt ansvarlig for selgers merkostnader og tap som følge av en eventuell avbestilling. Bestilte tilvalg og endringer skal i slike tilfeller, i sin helhet, uansett betales av kjøper.
Avbestilling før bygging er besluttet igangsatt vil medføre et avbestillingsgebyr på kr 300 000,-. Kjøper bærer all risiko ved en eventuell avbestilling av sitt kjøp.
Selger forbeholder seg retten til å nekte enhver overdragelse av rettsposisjoner i henhold til kjøpekontrakten før overtakelse har funnet sted. Ved selgers eventuelle godkjennelse av transportsalg, skal kjøper betale et administrasjonsgebyr på kr 30 000,- inkl mva til selger. Selger forbeholder seg retten til å stille vilkår for aksept av transport, herunder krav om solidaransvar eller krav om garantiansvar
Ved et evt. videresalg av kontrakt vil evt. kostnader til eiendomsmegler komme i tillegg. For at skjøte skal utstedes og tinglyses på ny kjøper, må ovennevnte være i orden. Hvis disse forhold ikke er bragt i orden innen overtagelsen, må opprinnelig kjøper oppfylle kontraktsforpliktelsene.
Adgang til utleie
Bolig i eierseksjonssameie kan som hovedregel fritt leies ut. Det kan imidlertid følge av sameiets vedtekter at leietager skal godkjennes av styret, jf. eierseksjonsloven § 24 tredje ledd. Styret må ha "saklig grunn" for ikke å godkjenne leietager.
Konsesjon / Odel
Det er ingen konsesjonsplikt eller odelsforhold knyttet til eiendommen.
Sikkerhetsstillelse
Alle eiendomsmeglingsforetak har lovpålagt forsikring av klientmidler begrenset oppad til kr 45 mill. Enkeltsaker er forsikret inntil kr 15 mill. Dersom kjøpers låneinstitusjon krever tilleggsforsikring ved omsetning over 15 millioner, må kjøper selv eller dennes låneinstitusjon dekke utgiftene forbundet med dette.
Planlagt overtagelse
Byggetid er estimert til 12-14 mnd. etter vedtatt byggestart. Byggestart for prosjektet vil bli etter første salg og at forbeholdene er avklart. En senere oppstart vil kunne medføre en senere overtakelsesdato. Det gjøres uttrykkelig oppmerksom på at tidsanslaget ovenfor ikke er å anse som en avtalt frist for overtakelse i henhold til buofl. § 10.
Selger skal uten ugrunnet opphold varsle kjøper skriftlig når grunnlaget for forbeholdene er falt bort, samt dato for bortfallet. Selger informerer kjøper når bygging igangsettes (byggestart). Arbeider med og på eiendommen som gjøres før slikt varsel foreligger, er ikke å regne for byggestart etter kontraktsbestemmelsene.
Endelig dato for overtagelse vil blant annet avhenge av kommunal behandling og fremdrift i prosjekt- og byggearbeid (les også forbehold i salgsoppgave).
Endelig overtakelsesdato meddeles skriftlig ca 4 uker før overtakelse. Denne dato gjelder da som partenes avtalte overtakelsesdato. Denne bestemmelsen medfører ingen innskrenkning i kjøpers rettigheter iht. bustadoppføringslova §10 annet og tredje ledd. Selger kan kreve at overtakelse skjer inntil 2 måneder tidligere enn måneden selger meddelte som siste frist.
Overtakelse skjer ved overtakelsesforretning. Det skal føres protokoll som kjøper og selger signerer. Selger er ansvarlig for å overlevere denne til megler etter at overtakelse er gjennomført.
Dersom utomhus-arealer / fellesarealer ikke er ferdigstilt ved overtakelse av bolig, kan og bør det avtales et beløp som kan deponeres på meglers klientkonto for hver enkelt bolig. Det deponerte beløpet vil gi sikkerhet for ferdigstillelse av utomhus-/fellesarealet. Megler anbefaler at tilbakeholdt beløp noteres ned i overtakelsesprotokoll, og at det presiseres at beløp gjeler for ferdigstillelse av fellesarealer. Beløpet kan ikke benyttes til andre formål enn ferdigstillelse av utomhusarealer. Kjøper gis dermed ikke rett til å avregne beløpet for andre feil og mangler. Kjøper er innforstått med at ferdigstillelse av felles-/utearealer kan skje etter innflytting pga. klimatiske forhold.
Overtakelse kan ikke finne sted før fullt oppgjør inkludert omkostninger og eventuelle tilvalg er innbetalt til megler. Det samme gjelder så fremt midlertidig brukstillatelse eller ferdigattest ikke foreligger.
Selgers forbehold
Selger tar følgende forbehold for gjennomføring av prosjektet:
- Godkjent rammetillatelse/Endelig igangsettingstillatelse
- Byggelånsfinansiering
- 1 solgt enhet
Kjøper kan ikke kreve utført endringer og tilleggsarbeid som endrer selgers vederlag med mer enn 15 prosent jf. buofl. § 9.
Tegningsmateriale, utomhusplan og beskrivelse er utarbeidet på et tidlig stadium i prosjektet, og endrede løsninger og/eller endringer i utvendig materialvalg vil kunne forekomme. Det nevnes spesielt
" Endret plassering og/eller størrelse på kanaler for V/A og luftekanaler
" Justering av vindusformat, vindusplasseringer og lagt til eller fjernet vindu.
" Som følge av detaljprosjekteringen vil mindre avvik i oppgitt areal-tall forekomme.
" Nøyaktig plassering/bredde av atkomstveg, innkjøring til den enkelte bolig etc
" Avvik på illustrasjoner/bilder, vist i prospekt vil forekomme. Byggetegninger gjelder foran illustrasjon.
Spesifikasjoner i romskjema vil også kunne få mindre endringer. Disse endringene skal ikke redusere byggets eller boligens kvalitet og gir ikke rett til prisjustering. Det tas forbehold om endringer som kan komme som følge av offentlige krav eller pålegg.
Utbygger forbeholder seg retten til å levere tilsvarende produkter/løsninger uten at dette skal få priskonsekvens for kjøper eller utbygger. Det forutsettes at det ikke er vesentlig endring i kvaliteten.
Det tas forbehold om at det kan bli foretatt endringer i denne leveransebeskrivelsen fordi det pr. dato gjenstår en del prosjektering og endelige offentlige godkjenninger. Ev. endringer skal ikke i vesentlig grad endre husets verdi. Utstyr som er vist på tegninger for å illustrere møbleringsmuligheter osv, men som ikke er omtalt i denne beskrivelsen er ikke inkludert i leveransen. Ved motstrid mellom tekst og tegninger/illustrasjoner går tekst foran.
Alt treverk er hygroskopisk, dvs at det har en naturlig egenskap til å gi fra seg eller oppta fuktighet. I trevirke i nye bygg vil det alltid forekomme bevegelser i forbindelse med uttørking og akklimatisering. Over tid vil det også forekomme bevegelser i trevirket som følge av skiftende relativ luftfuktighet som vil opptre ved ulike årstider. Sprekkdannelser i ferdige overflater som skyldes disse naturlige egenskapene i trevirket vil ikke bli akseptert som reklamasjon. Reklamasjon på sprekker i ferdige overflater vil kun bli tatt til følge dersom det kan påvises konstruksjonsmessig feil, eller feil i byggetiden.
Forkjøpsrett
Ingen forkjøpsrett.
Solgt ihht bustadoppføringsloven
Boligene selges i henhold til Bustadoppføringslova som regulerer kjøpers (forbrukers) rettigheter og plikter ved avtale om oppføring av bolig og kjøp av fast eiendom der bygningen ikke er fullført når avtalen inngås. Ved salg til aksjeselskap legges Avhendingslovens bestemmelser til grunn. For øvrig gjelder Lov om eierseksjoner for eierseksjonssameiet og driften av dette.
Garantier
Det stilles garantier i henhold til Bustadoppføringslovas bestemmelser. Garanti etter § 12 vil bli stilt i forbindelse med avtaleinngåelse. Garantien skal være pålydende 3% av kjøpesummen i byggetiden og 5% i 5 år etter overlevering av boligene til kjøper. Garanti etter § 47 forutsettes stilt om selger ønsker utbetalt forskudd/delinnbetaling/sluttoppgjør før hjemmelsovergang. Eventuelle påkrevde endringer av garantier ved eventuelle videresalg/transporter utføres ikke og bekostes ikke av selger.
Forsikring
Frem til overtagelse vil eiendommen være forsikret av selger. Etter overtagelse vil eiendommen forsikres gjennom sameiets fellesforsikring. Kjøper må selv besørge innboforsikring og forsikring av eventuelle særskilte påkostninger.
Budgiving
Boligene selges til fastpris.
Alle bud/kjøpetilbud på eiendommen skal være skriftlig og sendes meglerforetaket pr. fax, mail, sms eller via vår "gi bud"-knapp på våre nettsider. Knappen finner du også på Privatmeglerens hjemmeside for prosjektet, se på den enkelte bolig.
Bud/kjøpetilbud må ikke ha kortere akseptfrist enn til kl. 12.00 første virkedag etter siste annonserte visning. Lørdag regnes ikke som virkedag. Bud/kjøpetilbud med kortere frist enn dette kan ikke formidles av megler. Nærmere info om budgiving finner du på egen side sammen med kjøpetilbud/budskjema.
Som budgiver hos Privatmegleren kan du kreve budjournal fremlagt så snart handel er gjennomført.
Innhold i budjournal er lovregulert, og innebærer at budgivere må akseptere at opplysninger om budet kan bli fremlagt for selger, kjøper og øvrige budgivere. Budgiver som ikke blir kjøper, kan kreve kopi av anonymisert budjournal.
Vedlegg
Byggetegninger
Tegninger kjøkken og bad
Budskjema
Servitutter
Situasjonsplan
Grunnkart
Deklarasjon/leveransebeskrivelse
Lov om hvitvasking
Megler er underlagt lov om hvitvasking som innebærer plikt til å melde ifra til Økokrim om mistenkelige transaksjoner
Meglers vederlag og utlegg
Meglerprovisjon (1,25% av kjøpesum, pr enhet. ), Oppgjørskostnad (Kr.5 990,- pr.enhet)
I tillegg kommer tilrettelegging kr 17 500,-. Samt direkte utlegg og markedsføring i henhold til avtale og regning. Ved oppsigelse skal det kun betales for solgte enheter, samt direkte utlegg.
Nyttige lenker
Nærområdet

Privatmegleren Stjørdal
Annonseinformasjon
| FINN-kode | 353309598 |
|---|---|
| Sist endret | 23. nov. 2025 03:09 |
| Referanse | 311240092 |
Annonsene kan være mangelfulle i forhold til lovpålagt opplysningsplikt. Før bindende avtale inngås oppfordres interessenter til å innhente komplett informasjon fra meglerforetaket, selger eller utleier.



