Bildegalleri

Velkommen til Bentsebrugata 17D! Flott 5- roms fra 2021 med takterrasseparsell
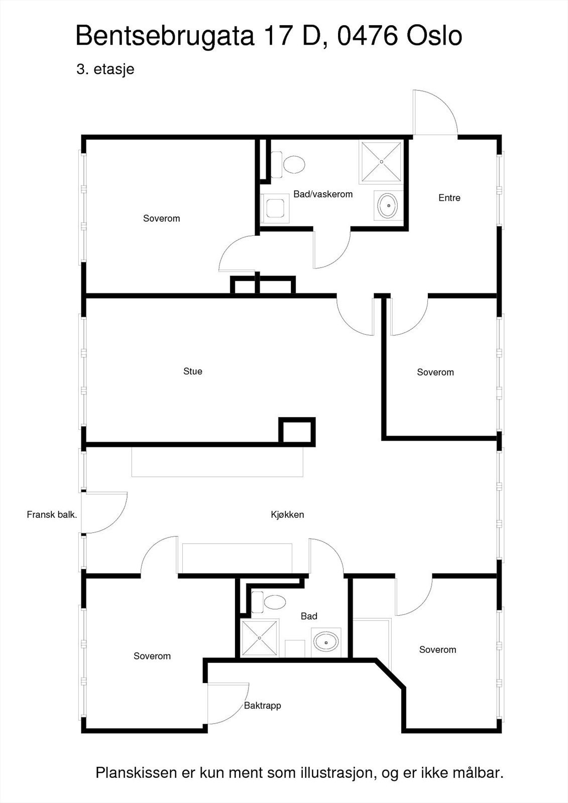
Meget lekker eiet 5-roms 2021 med egen solrik takparsell. 2 stk. delikate baderom - 4 soverom - P-plass kan leies*
Nøkkelinfo
- Boligtype
- Leilighet
- Eieform
- Eier (Selveier)
- Soverom
- 4
- Internt bruksareal
- 94 m² (BRA-i)
- Bruksareal
- 99 m²
- Eksternt bruksareal
- 5 m² (BRA-e)
- Etasje
- 3
- Byggeår
- 1959
- Rom
- 5
- Tomteareal
- 1 233 m² (eiet)
Fasiliteter
Om boligen
Boligen er meget lekker og gjennomført med 4 gode soverom, 2 stk. delikate baderom, stue samt herlig kjøkken med flott spiseplass og fransk balkong mot elva. Kjøkkeninnredningen er meget tiltalende med grå, slette fronter og alle hvitevarer integrert. Gode vindusflater i den gjennomgående boligen sikrer det beste lysinnfallet. Flexit balansert ventilasjon felles brannvarslingsanlegg.
Biloppstillingsplass kan leies når ledig, noe som det er p.t. Dette er en meget lekker bolig! Velkommen til visning
Salgsoppgaven beskriver vesentlig og lovpålagt informasjon om eiendommen
Se komplett salgsoppgaveNærområdet
IKKE AKTIV Aktiv Grefsen og Torshov
Prisstatistikk
Bentsebrugata 17D
på annonsen
prisantydning per kvadratmeter
Prisfordeling
Pris per m² ligger 19 681 kr under snittet for leiligheter i Sagene - Torshov.
Grafen viser antall leiligheter solgt i Sagene - Torshov siste året fordelt på pris per m² - totalt 2 418 leiligheter
Antall boliger
Kvadratmeterpris tilsvarer prisantydning pluss fellesgjeld per kvadratmeter (p-rom eller BRA-i). Prisene i grafen er avrundet til nærmeste 1000 kr.
Annonseinformasjon
| FINN-kode | 353294727 |
|---|---|
| Sist endret | 22. nov. 2024 12:24 |
| Referanse | 1004240054 |
Annonsene kan være mangelfulle i forhold til lovpålagt opplysningsplikt. Før bindende avtale inngås oppfordres interessenter til å innhente komplett informasjon fra meglerforetaket, selger eller utleier.











































