Bildegalleri

Velkommen til Gaupemyr 2 - En innholdsrik enebolig med sentral beliggenhet i Lillesand. Svært solrik eiendom, med flotte utearealer
Solgt
Innholdsrik enebolig på hyggelig og solrik tomt. Sentral beliggenhet. Garasje
Prisantydning3 390 000 kr
Nøkkelinfo
- Boligtype
- Enebolig
- Eieform
- Eier (Selveier)
- Soverom
- 4
- Internt bruksareal
- 147 m² (BRA-i)
- Bruksareal
- 186 m²
- Eksternt bruksareal
- 39 m² (BRA-e)
- Etasje
- 2
- Byggeår
- 1993
- Rom
- 5
- Tomteareal
- 492 m² (eiet)
Fasiliteter
Balkong/Terrasse
Barnevennlig
Bredbåndstilknytning
Garasje/P-plass
Hage
Kjæledyr tillatt
Kabel-TV
Offentlig vann/kloakk
Rolig
Sentralt
Bademulighet
Turterreng
Om boligen
Velkommen til Gaupemyr 2!
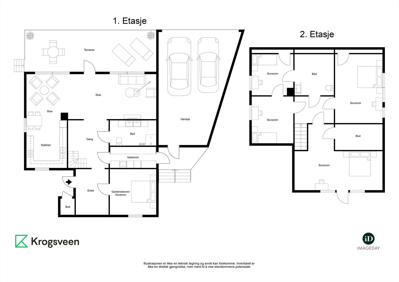
Dette er en lys og trivelig enebolig i et rolig og barnevennlig nabolag på Gaupemyr, sentralt i Lillesand. Herfra er det gåavstand til sentrum og Lillesand senter med dagligvarer og andre tjenester som kommer godt med i hverdagen.
Eiendommen byr på flott hageareal, asfaltert innkjørsel med god biloppstillingsplass, garasje, lun veranda og svært gode solforhold og kveldssola!
Deler av boligen er i nyere tid oppusset/ renovert og den fremstår lys og innbydende med praktiske løsninger og god planløsning. Her får du 4 gode soverom, stort og åpent stue/ kjøkkenrom, eget vaskerom, bad, toalettrom, og god med bod og oppbevaringsplass.
På Gaupemyr bor du med kort avstand til sjøen og Lillesands flotte skjærgård, samt flotte turområder.
Velkommen til visning
Dette er en lys og trivelig enebolig i et rolig og barnevennlig nabolag på Gaupemyr, sentralt i Lillesand. Herfra er det gåavstand til sentrum og Lillesand senter med dagligvarer og andre tjenester som kommer godt med i hverdagen.
Eiendommen byr på flott hageareal, asfaltert innkjørsel med god biloppstillingsplass, garasje, lun veranda og svært gode solforhold og kveldssola!
Deler av boligen er i nyere tid oppusset/ renovert og den fremstår lys og innbydende med praktiske løsninger og god planløsning. Her får du 4 gode soverom, stort og åpent stue/ kjøkkenrom, eget vaskerom, bad, toalettrom, og god med bod og oppbevaringsplass.
På Gaupemyr bor du med kort avstand til sjøen og Lillesands flotte skjærgård, samt flotte turområder.
Velkommen til visning
NB: Knappen for å vise hele beskrivelsen har kun en visuell effekt.
NB: Knappen for å vise hele beskrivelsen har kun en visuell effekt.
Salgsoppgaven beskriver vesentlig og lovpålagt informasjon om eiendommen
Se komplett salgsoppgaveNyttige lenker
Nærområdet
Krogsveen Kristiansand
Velkommen til en enklere boligreise.
Annonseinformasjon
| FINN-kode | 353193880 |
|---|---|
| Sist endret | 09. okt. 2024 11:55 |
| Referanse | KR31.24149 |
Annonsene kan være mangelfulle i forhold til lovpålagt opplysningsplikt. Før bindende avtale inngås oppfordres interessenter til å innhente komplett informasjon fra meglerforetaket, selger eller utleier.









































