Bildegalleri

Gjøsvika.

Ny bolig i Gjøsvika på Røros.

Enebolig med garasje

Prisantydning3 950 000 kr
Totalpris
3 960 400 kr
Omkostninger
10 400 kr
Felleskost/mnd.
420 kr

Kort om prosjektet

5 av 8 boliger er nå solgt. Nærmere bestemt i Kølfogdveien. Resterende boenheter under oppføring. Sentrumsnært, men likevel tett på naturen. Rike turmuligheter og skiløype rett ved boligene. Barnehage og matbutikk i nærområdet.

  • Planlegging

    01.04.2024

  • Salgsstart

    01.06.2024

  • Byggestart

    05.12.2024

  • Overtakelse

    Etter nærmere avtale.

Nøkkelinfo

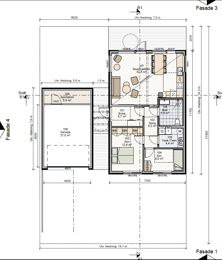
Boligtype
Enebolig
Soverom
2
Rom
6
Primærrom
78 m²
Bruksareal
115 m²
Energimerking
B

Les mer om bruksareal her

Fasiliteter

Balkong/Terrasse
Barnevennlig
Bredbåndstilknytning
Garasje/P-plass
Lademulighet
Offentlig vann/kloakk
Peis/Ildsted
Utsikt
Turterreng

Visning

Ta kontakt for å avtale visning.

Nærområdet

Annonseinformasjon

FINN-kode353154303
Sist endret10. feb. 2026 07:28

Rapporter annonse

Annonsene kan være mangelfulle i forhold til lovpålagt opplysningsplikt. Før bindende avtale inngås oppfordres interessenter til å innhente komplett informasjon fra meglerforetaket, selger eller utleier.