Bildegalleri

Helleristningen 33 til salgs ved Per Olav Hess - EIE eiendomsmegling.
Pen, gjennomgående 2-roms bygget i 2019 - lave felleskost. garasjeplass og to boder i kjelleren - heis - landlig område
Nøkkelinfo
- Boligtype
- Leilighet
- Eieform
- Eier (Selveier)
- Soverom
- 1
- Internt bruksareal
- 39 m² (BRA-i)
- Bruksareal
- 47 m²
- Eksternt bruksareal
- 8 m² (BRA-e)
- Balkong/Terrasse
- 7 m² (TBA)
- Etasje
- 1
- Byggeår
- 2019
- Energimerking
- A - Rød
- Tomteareal
- 9 508 m² (eiet)
Fasiliteter
Om boligen
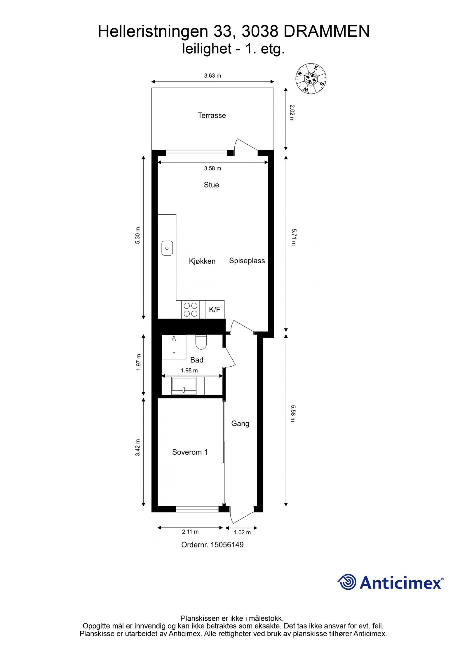
Velkommen til Helleristningen 33 - en innbydende 2-roms i et moderne bygg fra 2019. Her får man balansert ventilasjon, oppvarming via radiatorer med felles varmesentral, garasjeplass i felles garasjekjeller, to boder i kjelleren og heis i bygget. Leiligheten har uteplass ved inngangspartiet og markterrasse utenfor stuen. Den inneholder entré med oppbevaringsplass, soverom med garderobeskap, bad med opplegg for vaskemaskin og stue/spisestue/kjøkken i et åpent og lyst rom. Boligen har gjennomgående god standard - her kan du flytte rett inn!
Fra leiligheten er det kort vei til barneskole, barnehage, busstopp og dagligvarebutikker. Kort vei til sjøen og marka med vakre Nordbykollen og idylliske Røysjømarka. Dette er et område man garantert vil trives!
Velkommen til visning!
Salgsoppgaven beskriver vesentlig og lovpålagt informasjon om eiendommen
Se komplett salgsoppgaveNærområdet
EIE eiendomsmegling Asker
Prisstatistikk
Helleristningen 33
på annonsen
prisantydning per kvadratmeter
Prisfordeling
Pris per m² ligger 25 051 kr over snittet for leiligheter i Gamle Drammen.
Grafen viser antall leiligheter solgt i Gamle Drammen siste året fordelt på pris per m² - totalt 1 078 leiligheter
Antall boliger
Kvadratmeterpris tilsvarer prisantydning pluss fellesgjeld per kvadratmeter (p-rom eller BRA-i). Prisene i grafen er avrundet til nærmeste 1000 kr.
Annonseinformasjon
| FINN-kode | 352685965 |
|---|---|
| Sist endret | 11. juli 2024 19:24 |
| Referanse | 85240080 |
Annonsene kan være mangelfulle i forhold til lovpålagt opplysningsplikt. Før bindende avtale inngås oppfordres interessenter til å innhente komplett informasjon fra meglerforetaket, selger eller utleier.









































