Bildegalleri

DJI_20240425161905_0941_D
Enebolig med innredet kjeller beliggende i et etablert populært barnevennlig boligområde
Nøkkelinfo
- Boligtype
- Enebolig
- Eieform
- Eier (Selveier)
- Soverom
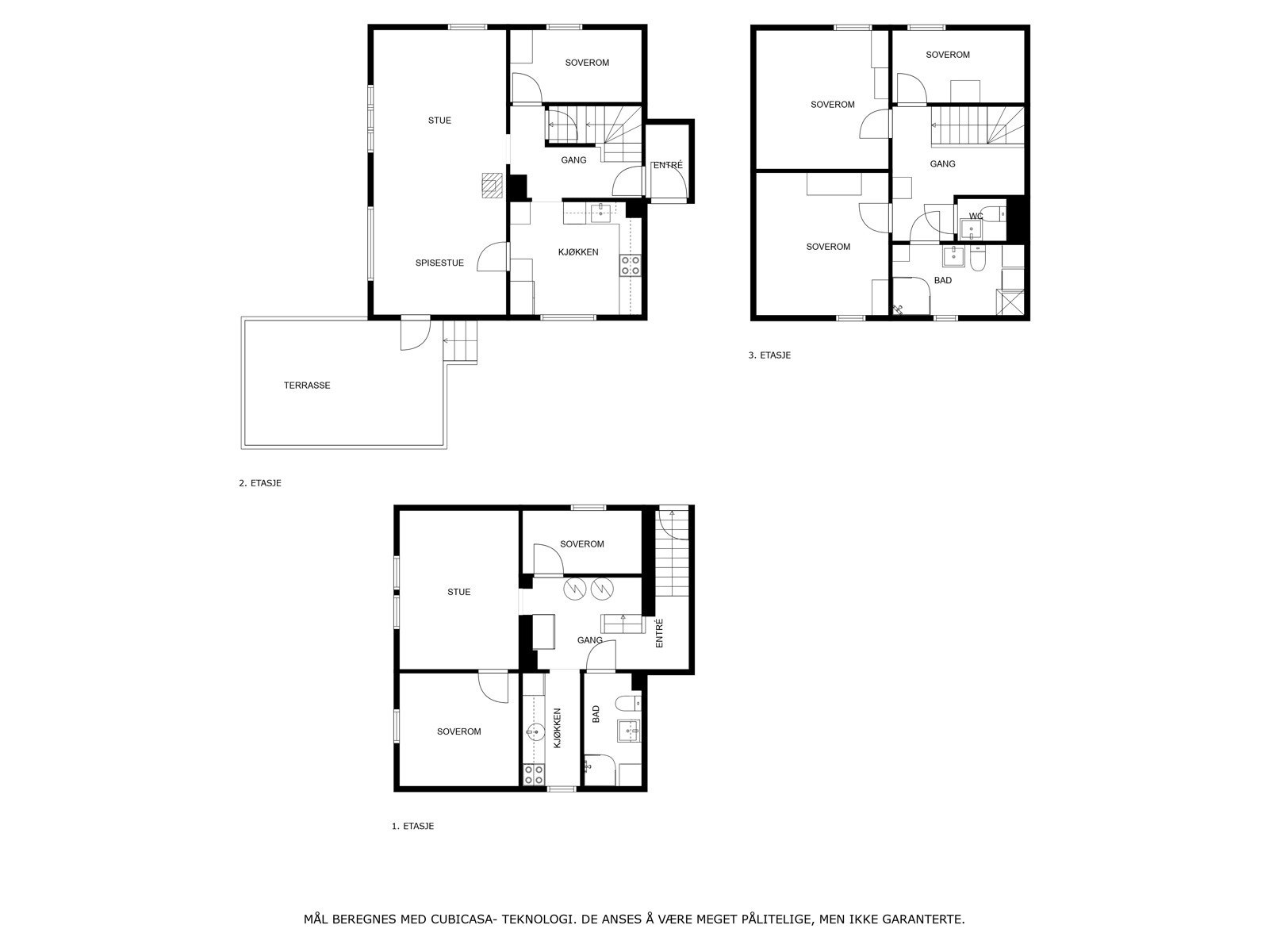
- 6
- Internt bruksareal
- 157 m² (BRA-i)
- Bruksareal
- 157 m²
- Balkong/Terrasse
- 19 m² (TBA)
- Byggeår
- 1964
- Rom
- 8
- Tomteareal
- 232 m² (eiet)
Om boligen
Velkommen til Fasanveien 33A!
Enebolig med innredet kjeller beliggende i et etablert populært barnevennlig boligområde på Brevik.
Kort vei til Tunejordet med kjøpesenter, treningssenter, apotek og dagligvarebutikker. Gangavstand til barnehage, skoler, idrettsanlegg, lekeplass og fotballøkke.
- 6 soverom
- Utleiemulighet
- Parkering på gårdsplass
- Sentral beliggenhet
Salgsoppgaven beskriver vesentlig og lovpålagt informasjon om eiendommen
Se komplett salgsoppgaveNyttige lenker
Nærområdet
Proaktiv Eiendomsmegling Sarpsborg
Prisstatistikk
Fasanveien 33A
på annonsen
prisantydning per kvadratmeter
Prisfordeling
Pris per m² ligger 3 771 kr under snittet for eneboliger i Sarpsborg.
Grafen viser antall eneboliger solgt i Sarpsborg siste året fordelt på pris per m² - totalt 402 eneboliger
Antall boliger
Kvadratmeterpris tilsvarer prisantydning pluss fellesgjeld per kvadratmeter (p-rom eller BRA-i). Prisene i grafen er avrundet til nærmeste 1000 kr.
Annonseinformasjon
| FINN-kode | 352161820 |
|---|---|
| Sist endret | 28. nov. 2025 07:29 |
| Referanse | 109240027 |
Annonsene kan være mangelfulle i forhold til lovpålagt opplysningsplikt. Før bindende avtale inngås oppfordres interessenter til å innhente komplett informasjon fra meglerforetaket, selger eller utleier.



































