Bildegalleri

Nordvik Finnsnes presenterer Nordliveien 1!
Solgt
Visning søndag 26. mai kl 14! Innholdsrikt hjem med 4 soverom, 3 garasjer og løftebukk!
Prisantydning3 200 000 kr
Nøkkelinfo
- Boligtype
- Enebolig
- Eieform
- Eier (Selveier)
- Soverom
- 4
- Internt bruksareal
- 182 m² (BRA-i)
- Bruksareal
- 282 m²
- Eksternt bruksareal
- 100 m² (BRA-e)
- Balkong/Terrasse
- 39 m² (TBA)
- Etasje
- 2
- Byggeår
- 1975
- Energimerking
- E - Gul
- Tomteareal
- 1 967 m² (eiet)
Fasiliteter
Balkong/Terrasse
Barnevennlig
Garasje/P-plass
Hage
Offentlig vann/kloakk
Peis/Ildsted
Turterreng
Om boligen
Velkommen til Nordliveien 1, her presentert av Nordvik Finnsnes!
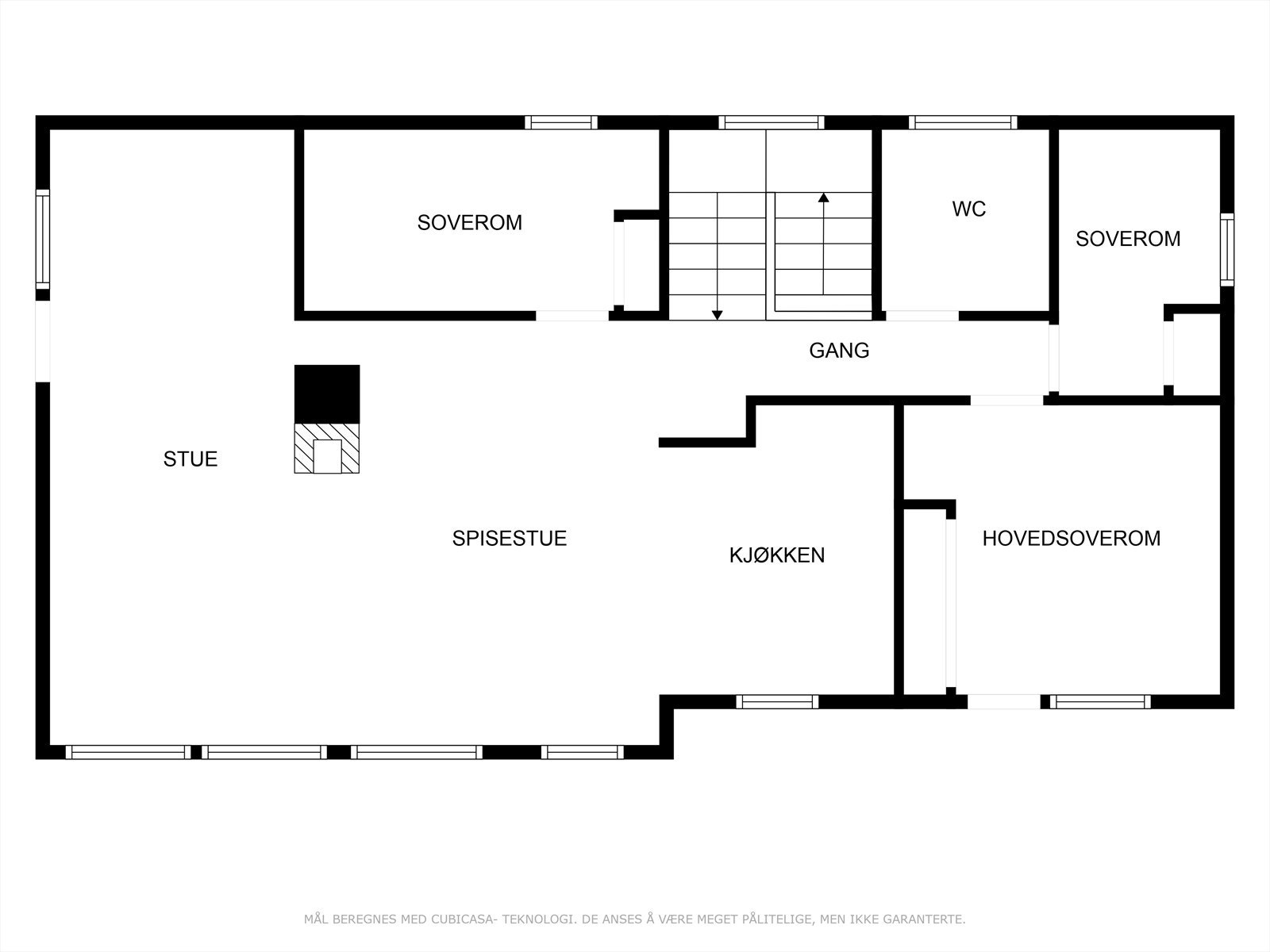
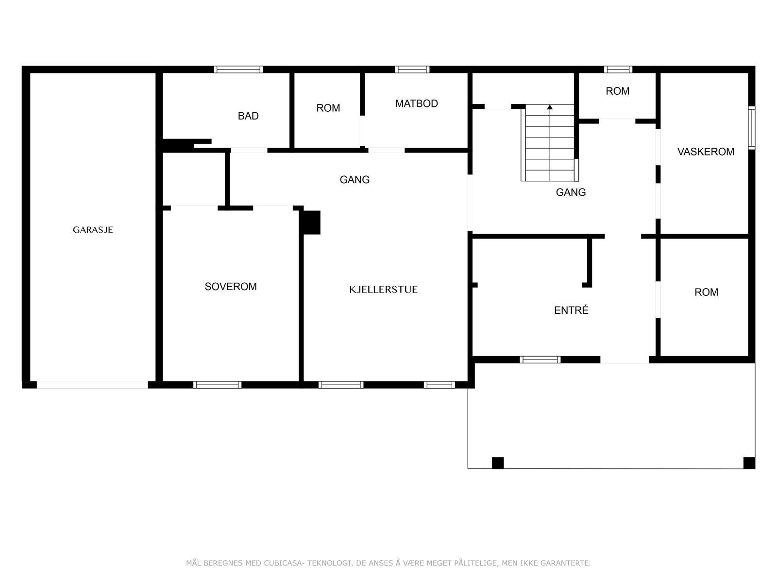
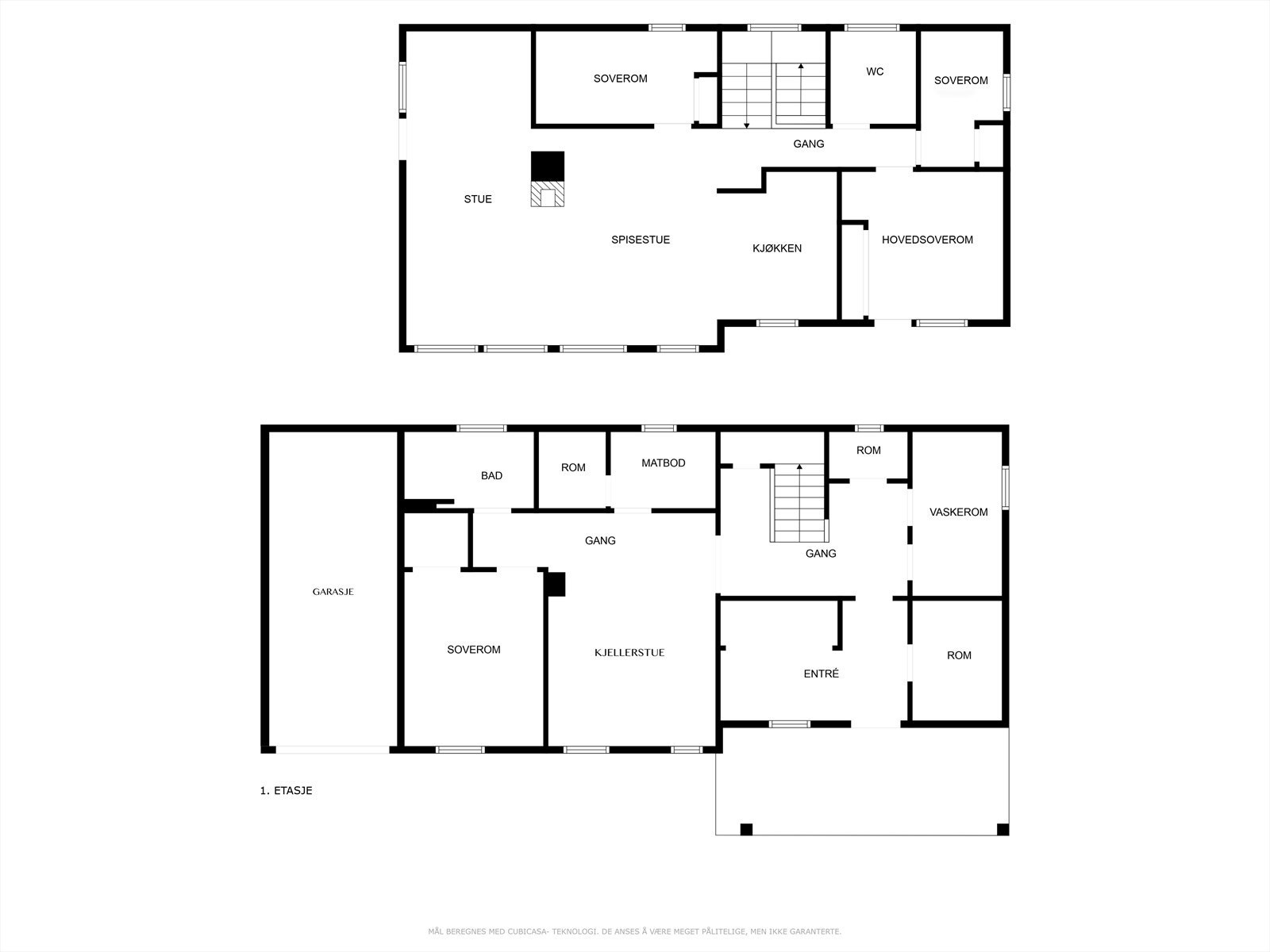
Her får du en flott mulighet til å sikre deg et flott og innholdsrikt hjem i Sørreisa med stor tomt, 4 soverom, 2 solrike balkonger og kort vei til sentrum med gang- og sykkelsti. På eiendommen finner du to frittstående garasjer, hvor den ene har praktisk løftebukk og god arbeidsplass for den nevedyktige. Hjemmet strekker seg over to plan med to stuer, ett bad samt vaskerom og toalettrom for en lettvint hverdag for kjernefamilien. I 1.etasje finner du hjemmets kjøkken og utgang til to balkonger slik at du kan flytte deg etter solen og nyte fine sommerdager utendørs med tilkomst til bakkeplan med stor plen. Boligen er godkjent med hybel, men det er åpnet slik at boligen fremstår med èn boenhet. Her er mulighetene mange!
Her får du en flott mulighet til å sikre deg et flott og innholdsrikt hjem i Sørreisa med stor tomt, 4 soverom, 2 solrike balkonger og kort vei til sentrum med gang- og sykkelsti. På eiendommen finner du to frittstående garasjer, hvor den ene har praktisk løftebukk og god arbeidsplass for den nevedyktige. Hjemmet strekker seg over to plan med to stuer, ett bad samt vaskerom og toalettrom for en lettvint hverdag for kjernefamilien. I 1.etasje finner du hjemmets kjøkken og utgang til to balkonger slik at du kan flytte deg etter solen og nyte fine sommerdager utendørs med tilkomst til bakkeplan med stor plen. Boligen er godkjent med hybel, men det er åpnet slik at boligen fremstår med èn boenhet. Her er mulighetene mange!
NB: Knappen for å vise hele beskrivelsen har kun en visuell effekt.
NB: Knappen for å vise hele beskrivelsen har kun en visuell effekt.
Salgsoppgaven beskriver vesentlig og lovpålagt informasjon om eiendommen
Se komplett salgsoppgaveNyttige lenker
Nærområdet
Nordvik Finnsnes
Prisstatistikk
Nordliveien 1
2 565 klikk
på annonsen
17 582 kr
prisantydning per kvadratmeter
Prisfordeling
Pris per m² ligger 2 582 kr over snittet for eneboliger i Sørreisa.
Grafen viser antall eneboliger solgt i Sørreisa siste året fordelt på pris per m² - totalt 25 eneboliger
Antall boliger
Kvadratmeterpris tilsvarer prisantydning pluss fellesgjeld per kvadratmeter (p-rom eller BRA-i). Prisene i grafen er avrundet til nærmeste 1000 kr.
Annonseinformasjon
| FINN-kode | 352149289 |
|---|---|
| Sist endret | 01. sep. 2024 19:56 |
| Referanse | 28-0021/24 |
Annonsene kan være mangelfulle i forhold til lovpålagt opplysningsplikt. Før bindende avtale inngås oppfordres interessenter til å innhente komplett informasjon fra meglerforetaket, selger eller utleier.










































