Bildegalleri

Varden Bygg C og D
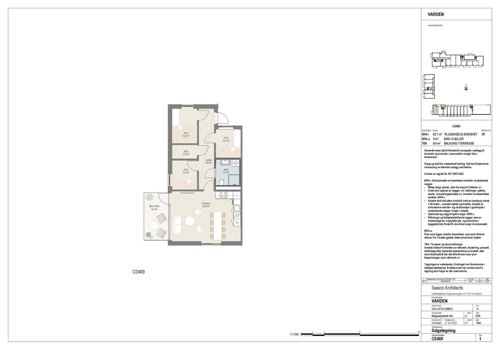
C409
Prosjektets status
Planlegging
Vinter 2024
Salgsstart
Vår 2024
Byggestart
Høst 2024
Overtakelse
1.halvår 2027
Nøkkelinfo
- Boligtype
- Leilighet
- Etasje
- 4
- Soverom
- 3
- Internt bruksareal
- 62 m² (BRA-i)
- Bruksareal
- 67 m²
- Eksternt bruksareal
- 5 m² (BRA-e)
Beskrivelse
Standard
Det er valgt gjennomførte og stilrene tilvalg i boligen, som flispakke i varm SAND-farge med 60x60 cm fliser på vegg og gulv, samt mindre 5x5 cm fliser i dusjsonen for et harmonisk og elegant uttrykk. Badet er videre oppgradert med et servantskap av modellen Space Chic i naturlig eikefarge, som tilfører både varme og karakter til rommet.
Oppvarming
Fjernvarme
Beliggenhet
Prosjektet ligger flott til på Hallset på Byåsen. Her oppe får man flott utsikt, nærhet til de fleste servicefasiliteter man trenger i det daglige, og god forbindelse til sentrum.
Adkomst
Ut fra Trondheim sentrum følger man retning Ila / Byåsen. Følg så Byåseveien til du har passert Munkvoll gård og Byåsen skole på din venstre side. Når man kommer til rundkjøring med skilting Hallset så ta til venstre mot Hallset i rundkjøringen. Da er man inne i Arnt Smistad veg og følg denne som går over i Selsbakkvegen. Følg denne til du kommer til rundkjøringen. Ta til høyre og prosjektet ligger på venstre side.
Ferdigattest
Utbygger plikter å fremskaffe ferdigattest når eiendommen er ferdigstilt.
Hvitevarer / tilbehør
Hvitevarene og brunevarer medfølger ikke i handelen med mindre det tydelig fremgår av salgsoppgaven.
Fellesgjeld og lånebetingelser
Forkjøpsrett
Andelseier(e) kan kun eie en andel. Andelseier må selv bebo leiligheten. Kun fysiske personer kan eie andel. Stat, kommune, fylkeskommune m.fl. kan likevel eie andel
eller andeler opp til 10% av andelene i borettslaget, der det er fem eller flere andeler. Det kan være fastsatt i vedtektene at stat, kommune, fylkeskommune, boligbyggelag, institusjon eller sammenslutning med samfunnsnyttig formål og
dessuten arbeidsgiver som skal leie ut boligen til sine ansatte, kan eie opp til 20% av andelene i tillegg. Kjøper av andelen må godkjennes av borettslagets styre for at ervervet skal bli gyldig. Kjøper bærer selv risikoen for at godkjenning blir gitt og må videreselge boligen for egen regning og risiko dersom styret ikke godkjenner kjøper som ny andelseier.
Dersom borettslaget er tilknyttet et boligbyggelag, så er det ofte et krav fra boligbyggelagets side at kjøper må melde seg inn i boligbyggelaget før kjøper kan bli godkjent som ny andelseier i det aktuelle borettslaget. Det gjøres i den forbindelse oppmerksom på at det vil kunne påløpe et innmeldingsgebyr til boligbyggelaget, og de fleste boligbyggelagene krever at innmeldingsavgiften skal være innbetalt før godkjenningen blir gitt. Innmeldingsgebyret faktureres kjøper direkte.
Ligningsverdi (formuesverdi)
Formuesverdi fastsettes av skatteetaten etter ferdigstillelse.
Nærområdet
EiendomsMegler 1 Nybygg
Annonseinformasjon
| FINN-kode | 351878260 |
|---|---|
| Sist endret | 08. des. 2025 10:18 |
| Referanse | 492410192 |
Annonsene kan være mangelfulle i forhold til lovpålagt opplysningsplikt. Før bindende avtale inngås oppfordres interessenter til å innhente komplett informasjon fra meglerforetaket, selger eller utleier.

