Bildegalleri

Innflyttingsklar hytte i hjertet av Jotunheimen med 4 soverom og 2 bad inkl. møbler og Sikom varmestyring
- Omkostninger
- 1 070 kr
- Totalpris
- 4 991 070 kr
Nøkkelinfo
- Beliggenhet
- På fjellet
- Boligtype
- Hytte
- Eieform
- Eier (Selveier)
- Internt bruksareal
- 94 m² (BRA-i)
- Bruksareal
- 94 m²
- Balkong/Terrasse
- 21 m² (TBA)
- Tomt
- Festet
- Festeavgift
- 7 355 kr
- Byggeår
- 2022
- Soverom
- 4
- Rom
- 5
Fasiliteter
Om eiendommen
Beliggenhet
Et spektakulært hyttefelt med unik beliggenhet i hjertet av Jotunheimen. Her er du i nærheten av alt, storslått natur, flust av 2000 meters topper og kun 30 minutter unna Lemonsjøen alpinsenter.
Adkomst/Tomteforhold
Ta av E6 på Sjoa og kjøre mot Randsverk, når du kommer opp til Randsverk tar du til venstre mot Valdres. Etter ca 20 minutter vil du få Sjodalen fjellgrend på Venstre hånd.
Generelt
Velkommen til Sjodalen Fjellgrend, et spektakulært hytteområde med en sjelden beliggenhet – helt innerst mot hjertet av Jotunheimen. Her får du en fjellhytte midt i et etablert og rolig hyttefelt, omgitt av noen av Norges mest ikoniske fjelltopper og krystallklare fiskevann.
Med hytta som utgangspunkt har du naturens storhet rett utenfor døren. Området byr på fantastiske muligheter for toppturer på ski, enten du ønsker en kort og energigivende tur eller en hel dag i fjellet. Fra hyttedøra kan du enkelt nå majestetiske topper som Nautgardstind, Besshø og Heimdalshøe – alle med utsikt som tar pusten fra deg.
I tillegg ligger Valdresflye nasjonalveg bare et steinkast unna. Denne nasjonale turistvegen er kjent som en av Norges vakreste kjøreturer, og gir deg panoramautsikt over Jotunheimens fjellmassiv. Herfra kan du ta både korte og lengre turer inn i fjellet, og veien leder deg videre til populære Beitostølen – et levende fjellsted med aktiviteter året rundt.
Sjodalen Fjellgrend er mer enn bare et hyttefelt – det er et fristed for deg som søker ro, naturopplevelser og ekte fjellfølelse. Her får du det beste av Jotunheimen, rett i din egen bakgård!
Hytta:
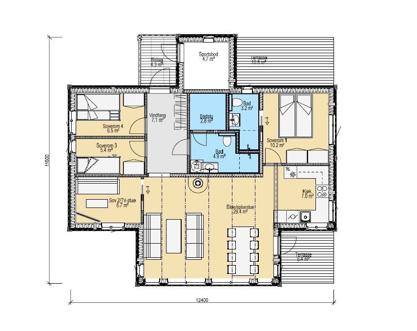
Vår innflyttingsklare hytte i hyttemodellen Rå 99 er ei trivelig hytte med alt på ett plan. Hytta har åpen stue/kjøkkenløsning, fire soverom, to bad og eget vaskerom.
• Stående låvepanel mix bredder – stav laft look, jernvitrol behandlet. 20 cm isolasjon i yttervegg.
• 2 lags naturtorv på tak.
• Vinduer iht. tegning. 2-lag energiglass, standard farge grå inne/ute NCS S8500N. Vinduer med gjennomgående og utenpåliggende sprosser.
• Takrenner i sort stål.
• Tinde ytterdør m/vindu, malt dempet sort.
• Tinde boddør u/vindu, malt dempet sort.
• Terrasse, som vist på tegning (uten rekkverk).
• Isolasjon 25 cm i tak, 20 cm yttervegg og 10 cm i innervegger.
• Flytende gulv: 1-stavs parkett EikrusticSPS SNØ.
• Innvendige furupanel fra Moelven: 13 mm Sprekkpanel på vegger og himling, behandlet i fargen morgendis.
• Tidløs listverk, samme farge som vegg
• Furu 3-speils innerdører, dempet sort S8500N
• Badstu med benker.
• Kjøkken fra Sigdal Kjøkken av typen SAND med Eik laminat benkeplate og Slimline kjøkkenventilator, hvitevarer følger med.
Elektrikerarbeid med utstyr iht. standard elektrikeroppsett. I utstyrsoversikt kan nevnes:
• Inntaksskap og kabel mellom inntak og sikringsskap.
• Sikringsskap m/overbelastningsvern, jordfeilautomater og overspenningsvern.
• EL-punkter (iht. NEK 400).
• Varmekabler med termostat og føler i vindfang og våtrom.
• Strømforsyning til seriekoblet røkvarslere m/backup batteri.
• Astrour-styrte utelamper. Spotter i vindfang, gang, wc og bad. Taklampe i soverom, vaskerom og bod. Panelovner, stikkontakter, komfyrvakt og badstuovn iht. tegning.
Rørleggerarbeider:
• Bunnledninger (rør som ligger i betongplate innenfor ringmur fram til toalett, sluker osv.).
• Rette slagdører i dusjnisje evnt. dusjnisjedør (iht. tegning) med dusjgarnityr.
• Vegghengt toalett med innebygd sisterne.
• Unidrainsluk på bad.
• Baderomsinnredning m/skuffer hvit, porselensvask og speil.
• Innredning med vask og speilskap på WC.
• Varmtvannsbereder 200 liter.
• 1-greps blandebatterier på kjøkken, bad og evnt. andre våtrom.
• Opplegg for tilkobling av kjøkkenbenk m/ 1-greps benkebatteri med høy tut, samt opplegg for tilkobling av oppvaskmaskin.
• Lekkasjesikring/vannstoppeventil.
Murer, flis, pipe og ildsted:
• Peisovn cannes m/glassplate montert på sort stålpipe
• Flislagt gulv i vindfang med 30x60cm flis
• Flislagt gulv på bad, wc og evnt. badstu med 30x60cm flis
• Flislagt vegg i dusjhjørne på bad med 30x60cm flis
• Pietra Limestone Grey 30 x 30 flis i sportsbod
Hytta leveres med Sikom varmestyring av panelovner og gulvvarme.
Prisen er for ferdig oppsatt hytte inkl. tomt og grunnarbeid. Tomteverdi (tomt 4) kr 1 290 000 ,-
Festeavgiften justeres pr. år
Salgsoppgaven beskriver vesentlig og lovpålagt informasjon om eiendommen
Se komplett salgsoppgaveNærområdet
Tindehytter AS
Annonsene kan være mangelfulle i forhold til lovpålagt opplysningsplikt. Før bindende avtale inngås oppfordres interessenter til å innhente komplett informasjon fra meglerforetaket, selger eller utleier.


















