Bildegalleri

Jonsokveien 22 B ved Iga Okon
Inaktiv
STABEKK
Helt ny, nydelig villa ved friområde. 70 m² terrasser. Mulig praktikantdel. Bergvarme. Solcelletakstein. Dobbelgarasje
Prisantydning27 500 000 kr
Nøkkelinfo
- Boligtype
- Enebolig
- Eieform
- Eier (Selveier)
- Soverom
- 6
- Primærrom
- 276 m²
- Bruksareal
- 315 m²
- Etasje
- 3
- Byggeår
- 2024
- Energimerking
- A - Gul
- Rom
- 8
- Tomteareal
- 1 034 m² (eiet)
Fasiliteter
Takterrasse
Balkong/Terrasse
Barnevennlig
Garasje/P-plass
Hage
Kjæledyr tillatt
Parkett
Peis/Ildsted
Rolig
Sentralt
Utsikt
Turterreng
Balansert ventilasjon
Visning
Visningen har obligatorisk påmelding.
Kravet om påmelding har vi for å kunne gi deg og andre visningsdeltakere en best mulig opplevelse og service knyttet til gjennomføring av visningen. Velkommen!
VisningspåmeldingOm boligen
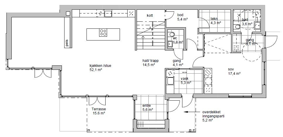
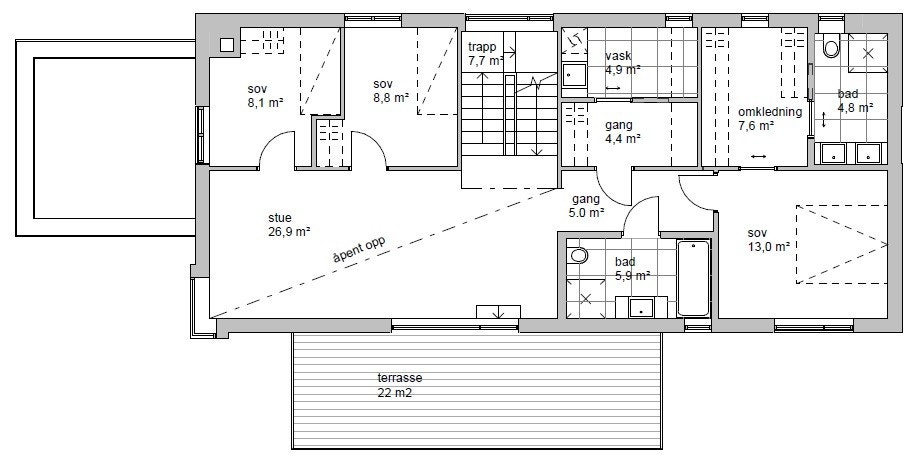
Helt ny, nydelig villa over 3 plan i veletablerte Jonsokveien på Stabekk. Selveid tomt mot naturskjønt friområde. Store, usjenerte terrasser i 1. og 2. etasje med fine siktlinjer mot syd og vest. Lettstelt hage med plen og busker.
Høy standard. Vannbåren gulvvarme med bergvarme. Nydelige tregulv. I hjertet av boligens første etasje er et symmetrisk Svane-kjøkken med integrerte hvitevarer fra Miele. Hjørnepeis med innsats type Rais Visio Tunnelpeis. Mulig praktikantdel med egen inngang, bad og oppholdsrom forberedt for mini-kjøkken. Et smykke av en trapp binder boligens tre etasjer sammen. Midtetasjen har stue med utgang til takterrasse, 3 soverom, 2 bad og vaskerom. Toppetasjen har bad, 2 soverom og smarte boder. Energieffektiv solcelletakstein. Separat garasje, plass til 2 biler og bod
Høy standard. Vannbåren gulvvarme med bergvarme. Nydelige tregulv. I hjertet av boligens første etasje er et symmetrisk Svane-kjøkken med integrerte hvitevarer fra Miele. Hjørnepeis med innsats type Rais Visio Tunnelpeis. Mulig praktikantdel med egen inngang, bad og oppholdsrom forberedt for mini-kjøkken. Et smykke av en trapp binder boligens tre etasjer sammen. Midtetasjen har stue med utgang til takterrasse, 3 soverom, 2 bad og vaskerom. Toppetasjen har bad, 2 soverom og smarte boder. Energieffektiv solcelletakstein. Separat garasje, plass til 2 biler og bod
NB: Knappen for å vise hele beskrivelsen har kun en visuell effekt.
NB: Knappen for å vise hele beskrivelsen har kun en visuell effekt.
Salgsoppgaven beskriver vesentlig og lovpålagt informasjon om eiendommen
Se komplett salgsoppgaveNyttige lenker
Nærområdet
Sem & Johnsen
Boliger utenom det vanlige
Annonseinformasjon
| FINN-kode | 350824475 |
|---|---|
| Sist endret | 22. aug. 2024 06:20 |
| Referanse | 21-24-0079 |
Annonsene kan være mangelfulle i forhold til lovpålagt opplysningsplikt. Før bindende avtale inngås oppfordres interessenter til å innhente komplett informasjon fra meglerforetaket, selger eller utleier.









































































