Bildegalleri

Eierens eget bildet
Lekker og kompakt 7-roms enebolig i barnevennlig område med hage og ildsted, utleiedel, Idyllisk utsikt! Med fine turmul
Nøkkelinfo
- Boligtype
- Enebolig
- Eieform
- Eier (Selveier)
- Soverom
- 4
- Internt bruksareal
- 330 m² (BRA-i)
- Bruksareal
- 330 m²
- Byggeår
- 2008
- Tomteareal
- 965 m² (eiet)
Fasiliteter
Om boligen
FOR VISNING TA KONTANKT! Kan Ha visning etter ditt ønske!
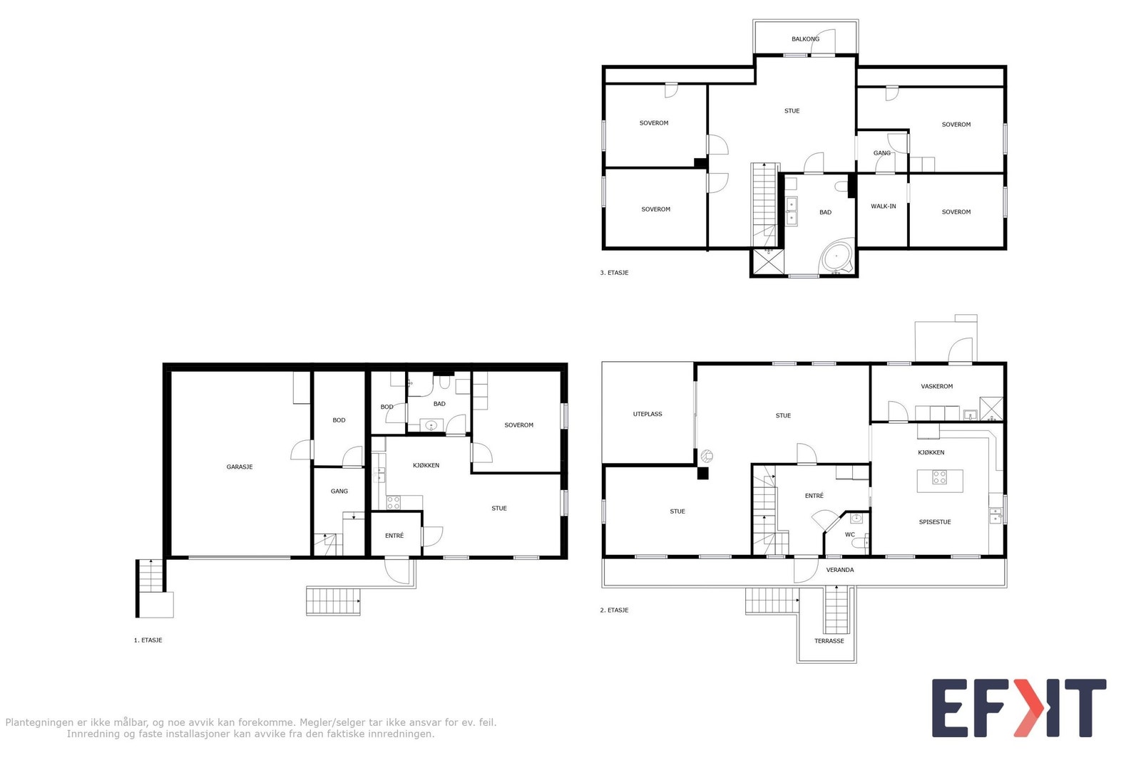
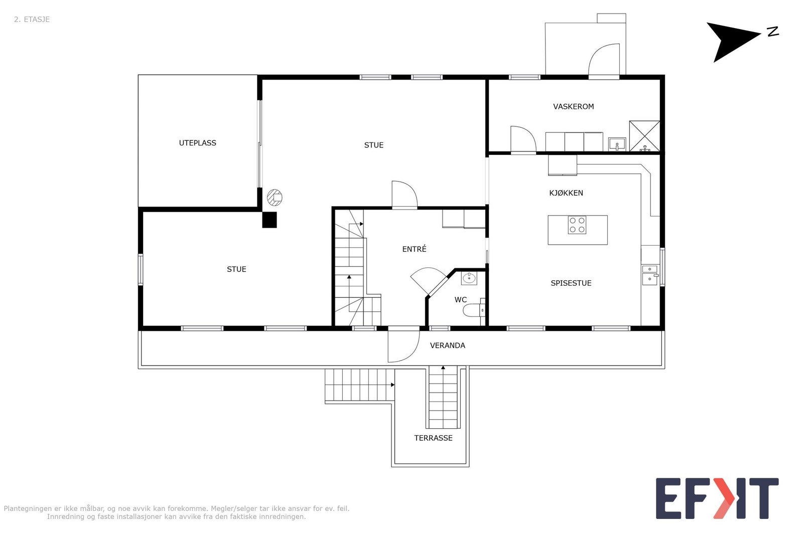
Stor moderne enebolig bygget i 2007 og ferdigstilt i 2008. Boligen har praktisk planløsning i hoved etasjen er det stort kjøkken med mye benk og skapplass samt god plass for storfamilien og gjester. Fra kjøkkenet går du inn i en stor lys stue med flere avdelinger for peiskos, spisestue, avslapning og Tv-titting. Skyvedør fra stuen til overbygget terrasse med vending mot syd og vest. Vaskerom og dusj innenfor kjøkkenet og dør derfra og ut til hagen. Romslig gjestetoalett i hall.
Trapp i hall til toppetasjen med 4 store soverom, stort helfliset bad og stor loftsstue. Dør til vestvendt balkong med kveldssol. Lagringsplass i knevegger. Boligen har innredet sokkeletasje med kjøkken, bad, og 2 disponible rom ( Stue og soverom).
Boligen har utstrakt bruk av spotlights i de fleste rom. Parkett i stuen i hovedetasjen. Øvrige gulv har laminat, belegg og flis. Veggoverflater er malte og tapetserte. Begge bad er helfliset.
Himlinger i hovedetasje har malte gipsplater. Toppetasje har himlinger med malte panelplater. Sokkeletasje med fliser på gulver, malt tapet på vegger og himlinger med malte gipsplater påmontert lydbøyler. Sokkeletasje har separat utvendig adkomst.
Romfordeling
2. Etasje: Stue, 4 soverom, gang, gang/garderobe, bad
1. Etasje: Hall m/trapp, toalett, kjøkken, vaskerom, stue/spisestue, Tv stue
Underetasje: Garasje, Bod, Gang
Underetasje utleie del: Entre, stue/ kjøkken, 1 Soverom, bad/vask, bod
Beliggenhet
Eiendommen er beliggende mellom Tønsberg og Åsgårdstrand like ved Volden barneskole. Gåavstand til skole, idrettsanlegg, båthavn og strand. Flotte turmuligheter i nærområdet! Aktiv velforening og idrettslag. Kort vei til handelssenter i Åsgårdstrand, Tolvsrød og Olsrød park med de fleste sentrumsfunksjoner. Gode bussforbindelser til Tønsberg og Horten.
Annet
Dobbel garasje med innvendig adkomst i sokkeletasje. Leddport med elektrisk opptrekk.
Sentralstøvsuger.
Villavent ventilasjon.
Røroplegg med rør/rør.
300l vvt. til hoveddel.
120l vvt. i sokkeletasje.
Eget strømskap og under måler for sokkeletasje.
Oppvarming
Varmekabel i gulv i hall, bad, kjøkken. Varmeveksler i ventilasjonsanlegg. Peisovn i stue. Forøvrig elektrisk.
Byggemåte: Sokkeletasje med støpt plate og murverk. Etasjeskiller med trebjelkelag. Konstruksjon i 1 1/2 etg. med tre bindingsverk. Utvendig trekledning. Saltak med betongtaksten.
Flislagt på utvendig vegg i underetasjen. Malt terasse balkong. Bygget gjerde av betongblokk. Utvidet parkeringsplass. Samt bygget trapp til hagen og lagt asfalt foran garasjen og grus på andre siden. Alt dette utført i 2023.
Omkostninger
11 900 kr (HELP boligkjøperforsikring (valgfritt))
175 000 kr (Dokumentavgift)
500 kr (Tinglysing av pantedokument)
500 kr (Tinglysing av skjøte)
---
187 900 kr (Omkostninger totalt)
---
7 187 900 kr (Totalpris inkl. omkostninger)
NB: Regnestykket forutsetter at det kun tinglyses én låneobligasjon og at eiendommen selges til prisantydning.
Det tas forbehold om endringer i offentlige og private gebyrer.
Selger er selv ansvarlig for følgende gebyr:
500 kr (Panterett med urådighet)
Salgsoppgaven beskriver vesentlig og lovpålagt informasjon om eiendommen
Se komplett salgsoppgaveNyttige lenker
Nærområdet
Annonsene kan være mangelfulle i forhold til lovpålagt opplysningsplikt. Før bindende avtale inngås oppfordres interessenter til å innhente komplett informasjon fra meglerforetaket, selger eller utleier.



































