Bildegalleri

Fasade
Solgt
Follafoss - Prisgunstig enebolig med sjøutsikt. Kjøkken fra 2015. Gangavstand til skole og butikk
Prisantydning530 000 kr
Nøkkelinfo
- Boligtype
- Enebolig
- Eieform
- Eier (Selveier)
- Soverom
- 2
- Internt bruksareal
- 117 m² (BRA-i)
- Bruksareal
- 155 m²
- Eksternt bruksareal
- 38 m² (BRA-e)
- Balkong/Terrasse
- 30 m² (TBA)
- Byggeår
- 1935
- Energimerking
- G - Gul
- Rom
- 3
- Tomteareal
- 1 984 m² (festet)
- Festeavgift
- 1 264 kr
Fasiliteter
Balkong/Terrasse
Barnevennlig
Garasje/P-plass
Hage
Rolig
Utsikt
Bademulighet
Fiskemulighet
Turterreng
Om boligen
Velkommen til Bakkanvegen 7!
Prisgunstig enebolig med sjøutsikt. Kjøkken fra 2015. Gangavstand til skole og butikk.
Behov for vedlikehold og noe oppussing.
Eiendom beliggende i et etablert boligfelt i Follafoss. Nærhet til sentrum med de fleste funksjoner. Utsikt mot omkringliggende bebyggelse og bygder.
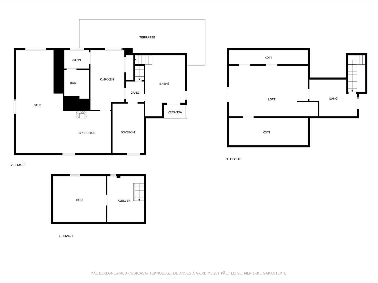
Innhold:
Kjeller: to boder
Etasje: Kjøkken, bad, stue, gang, gang 2 og soverom
Loft: To loftsrom
Vi sees på visning, husk påmelding!
Prisgunstig enebolig med sjøutsikt. Kjøkken fra 2015. Gangavstand til skole og butikk.
Behov for vedlikehold og noe oppussing.
Eiendom beliggende i et etablert boligfelt i Follafoss. Nærhet til sentrum med de fleste funksjoner. Utsikt mot omkringliggende bebyggelse og bygder.
Innhold:
Kjeller: to boder
Etasje: Kjøkken, bad, stue, gang, gang 2 og soverom
Loft: To loftsrom
Vi sees på visning, husk påmelding!
NB: Knappen for å vise hele beskrivelsen har kun en visuell effekt.
NB: Knappen for å vise hele beskrivelsen har kun en visuell effekt.
Salgsoppgaven beskriver vesentlig og lovpålagt informasjon om eiendommen
Se komplett salgsoppgaveNærområdet
Aktiv Steinkjer
Prisstatistikk
Bakkanvegen 7
15 537 klikk
på annonsen
4 529 kr
prisantydning per kvadratmeter
Prisfordeling
Pris per m² ligger 10 471 kr under snittet for eneboliger i Steinkjer.
Grafen viser antall eneboliger solgt i Steinkjer siste året fordelt på pris per m² - totalt 196 eneboliger
Antall boliger
Kvadratmeterpris tilsvarer prisantydning pluss fellesgjeld per kvadratmeter (p-rom eller BRA-i). Prisene i grafen er avrundet til nærmeste 1000 kr.
Annonseinformasjon
| FINN-kode | 350458875 |
|---|---|
| Sist endret | 19. juni 2025 20:11 |
| Referanse | 1708240093 |
Annonsene kan være mangelfulle i forhold til lovpålagt opplysningsplikt. Før bindende avtale inngås oppfordres interessenter til å innhente komplett informasjon fra meglerforetaket, selger eller utleier.





















