Bildegalleri

Kari Skottun i Notar har gleden av å ønske velkommen til Brekkeveien 8. En sjelden mulighet på Frysja/Kjelsås.
Inaktiv
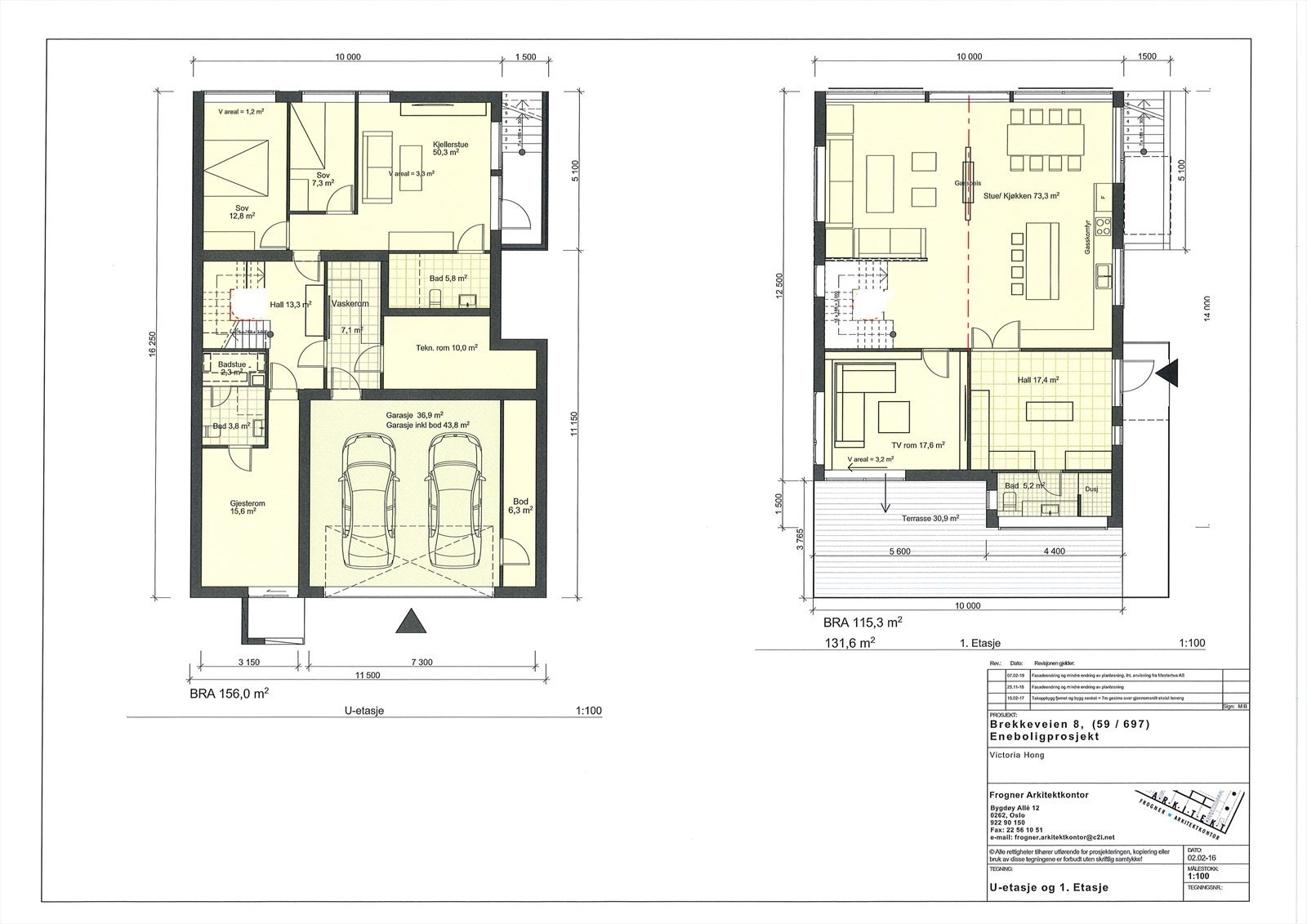
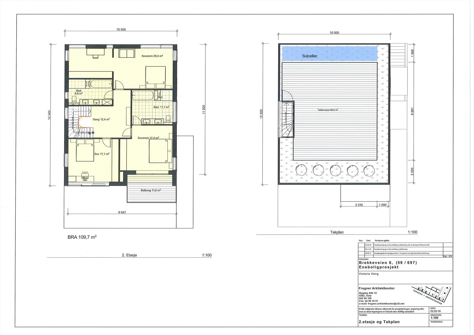
SJELDEN MULIGHET! Lekker funkisbolig med høy standard og unik takterr. på 72 kvm. Praktikantdel. 6 soverom. Barnevennlig
Prisantydning24 370 000 kr
Nøkkelinfo
- Boligtype
- Enebolig
- Eieform
- Eier (Selveier)
- Soverom
- 6
- Internt bruksareal
- 390 m² (BRA-i)
- Bruksareal
- 390 m²
- Balkong/Terrasse
- 121 m² (TBA)
- Byggeår
- 2019
- Energimerking
- A - Gul
- Rom
- 9
- Tomteareal
- 659 m² (eiet)
Fasiliteter
Takterrasse
Balkong/Terrasse
Barnevennlig
Garasje/P-plass
Hage
Kjæledyr tillatt
Offentlig vann/kloakk
Parkett
Rolig
Sentralt
Bademulighet
Turterreng
Lademulighet
Balansert ventilasjon
Visning
Vi i Notar ønsker å avholde så gode visninger som mulig. Derfor har vi påmeldingsvisninger. Da vet vi hvor mange som kommer, og kan sette av nok tid til alle. Trykk på linken visningspåmelding for å avtale tidspunkt. Visninger uten påmeldte innen kl. 12:00 på oppsatt visningsdag, vil ikke bli avholdt. Hvis det ikke er oppsatt visningstidspunkt eller oppsatt tidspunktet ikke skulle passe, kontakt megler for avtale om privatvisning. Velkommen til visning.
VisningspåmeldingOm boligen
Innholdsrik nyere funkis bolig fra 2019 i et svært ettertraktet område på Kjelsås/Brekke. Boligen har ekslusive og gjennomtenkte materialvalg og ekstra god takhøyde, vannbåren gulvvarme og bergvarme, betydelig påkostet kjøkken fra Drømmekjøkken med Miele hvitevarer med det lille ekstra, biopeis på 2 baderom, integrerte Bose høyttalere, med mer. Stor garasje med mulighet for å gå tørrskodd inn i huset og el billadere. Egen inngang i kjeller m/2 soverom og stue-kjøkkenløsning.
I tillegg spektakulær takterrasse med utsikt utover nærområdet og deilig jacuzzi.
Flott beliggenhet med kort vei til skole, barnehager, offentlig kommunikasjon, dagligvare og turområder.
Boligen har det lille ekstra for den kresne. Her vil du trives!
Velkommen til Brekkeveien 8!
I tillegg spektakulær takterrasse med utsikt utover nærområdet og deilig jacuzzi.
Flott beliggenhet med kort vei til skole, barnehager, offentlig kommunikasjon, dagligvare og turområder.
Boligen har det lille ekstra for den kresne. Her vil du trives!
Velkommen til Brekkeveien 8!
NB: Knappen for å vise hele beskrivelsen har kun en visuell effekt.
NB: Knappen for å vise hele beskrivelsen har kun en visuell effekt.
Salgsoppgaven beskriver vesentlig og lovpålagt informasjon om eiendommen
Se komplett salgsoppgaveNærområdet
Notar Oslo
God magefølelse
Annonseinformasjon
| FINN-kode | 349711350 |
|---|---|
| Sist endret | 08. okt. 2024 11:41 |
| Referanse | NO17.2372 |
Annonsene kan være mangelfulle i forhold til lovpålagt opplysningsplikt. Før bindende avtale inngås oppfordres interessenter til å innhente komplett informasjon fra meglerforetaket, selger eller utleier.






































































