Bildegalleri

Velkommen til Olav Aukrusts vei 2 C
Gjennomgående selveier med fjordutsikt | Parkeringsplass | 2 balkonger | 3 soverom | God intern beliggenhet
Nøkkelinfo
- Boligtype
- Leilighet
- Eieform
- Eier (Selveier)
- Soverom
- 3
- Internt bruksareal
- 98 m² (BRA-i)
- Bruksareal
- 102 m²
- Eksternt bruksareal
- 4 m² (BRA-e)
- Balkong/Terrasse
- 21 m² (TBA)
- Etasje
- 2
- Byggeår
- 1979
- Energimerking
- E - Rød
- Rom
- 4
- Tomteareal
- 21 154 m² (eiet)
- Boligselgerforsikring
- Ja
Fasiliteter
Om boligen
Velkommen til Kragskogen Terrasse - et veldrevet, barnevennlig sameie med gjesteparkering, bilfrie soner og nærhet til skoler, barnehager og marka!
Eiendommen ligger i et populært og barnevennlig boligområde i naturskjønne omgivelser på vestsiden av Holmenkollen, like ovenfor Voksen og Bogstad. Kort vei til marka, skoler, barnehager offentlig kommunikasjon og servicetilbud.
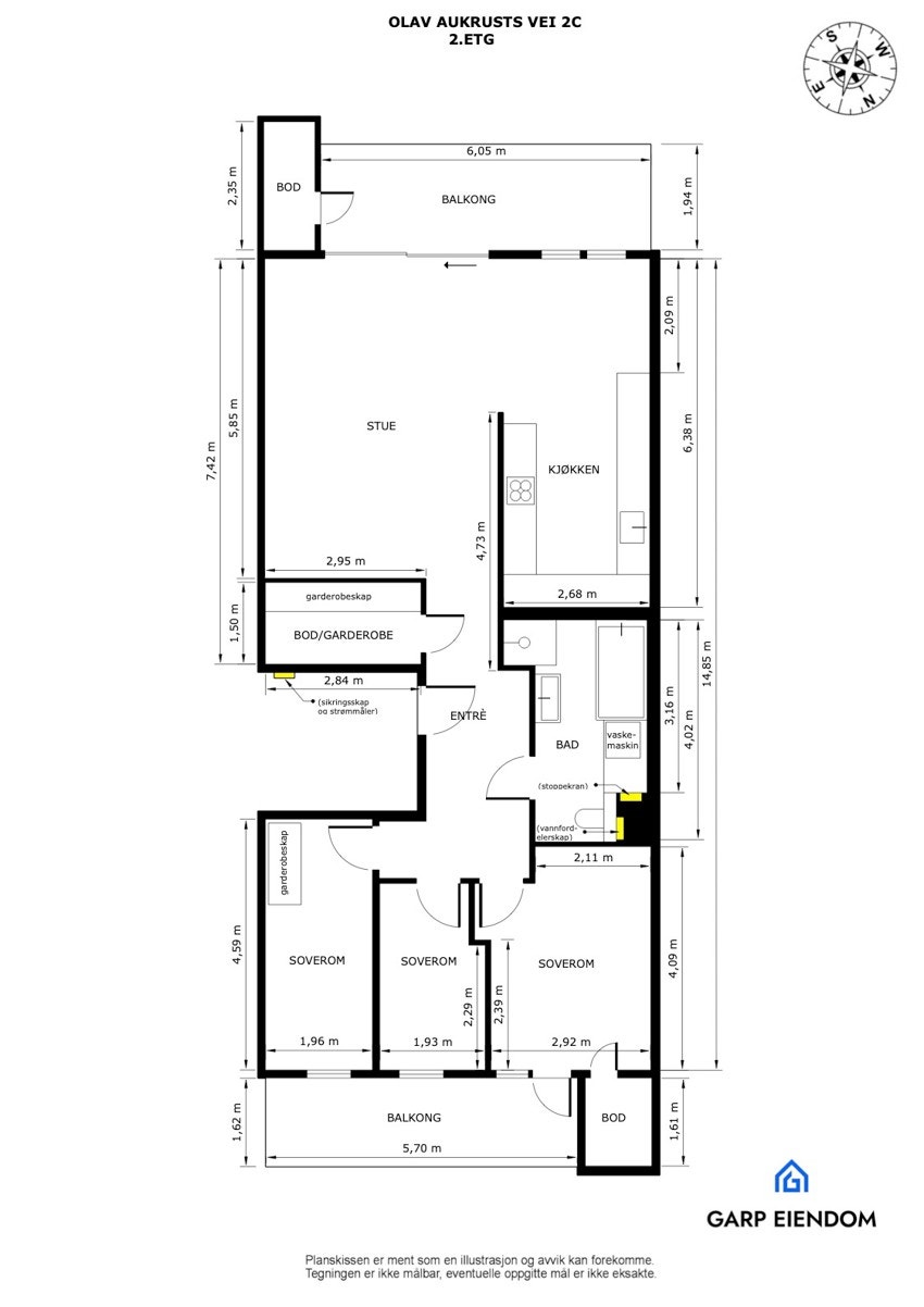
Leiligheten er gjennomgående med store vindusflater, og fremstår som lys og luftig. Leiligheten er beliggende som 3. etasje fra sydsiden og som 2. etasje mot nord.
Innhold: entré, stue, kjøkken, 3 soverom, 2 balkonger, bad og 3 boder. I tillegg har du biloppstillingsplass i felles garasje. Leiligheten har en praktisk planløsning hvor alle 3 soverom er plassert mot rolige naturomgivelser for å sikre en god natts søvn.
Salgsoppgaven beskriver vesentlig og lovpålagt informasjon om eiendommen
Se komplett salgsoppgaveNyttige lenker
Nærområdet
EiendomsMegler 1 Sør-Norge avd Ullevål
Prisstatistikk
Olav Aukrusts vei 2 C
på annonsen
prisantydning per kvadratmeter
Prisfordeling
Pris per m² ligger 6 521 kr under snittet for leiligheter i Røa.
Grafen viser antall leiligheter solgt i Røa siste året fordelt på pris per m² - totalt 503 leiligheter
Antall boliger
Kvadratmeterpris tilsvarer prisantydning pluss fellesgjeld per kvadratmeter (p-rom eller BRA-i). Prisene i grafen er avrundet til nærmeste 1000 kr.
Annonseinformasjon
| FINN-kode | 349532680 |
|---|---|
| Sist endret | 03. mai 2024 11:49 |
| Referanse | 129240130 |
Annonsene kan være mangelfulle i forhold til lovpålagt opplysningsplikt. Før bindende avtale inngås oppfordres interessenter til å innhente komplett informasjon fra meglerforetaket, selger eller utleier.
































