Bildegalleri

Solgt
GIMLEKOLLEN/BORGHILDS VEI
Lekker totalrenovert enebolig med spektakulær utsikt og hybel -Solrik opparbeidet usjenert tomt - Barnevennlig-Blindvei
Prisantydning10 950 000 kr
Nøkkelinfo
- Boligtype
- Enebolig
- Eieform
- Eier (Selveier)
- Soverom
- 6
- Internt bruksareal
- 167 m² (BRA-i)
- Bruksareal
- 187 m²
- Eksternt bruksareal
- 20 m² (BRA-e)
- Byggeår
- 1970
- Rom
- 8
- Tomteareal
- 1 000 m² (eiet)
Fasiliteter
Balkong/Terrasse
Barnevennlig
Bredbåndstilknytning
Garasje/P-plass
Hage
Offentlig vann/kloakk
Parkett
Peis/Ildsted
Rolig
Sentralt
Utsikt
Bademulighet
Turterreng
Om boligen
Lekker og romslig enebolig hvor det meste er totalrenovert innvendig og utvendig med eksklusive løsninger i 2023/24. Fantastisk utsikt over innseilinga, Odderøya, Kvadraturen og Oksøy.
Boligen ligger høyt og luftig på ei av områdets beste tomter med pent opparbeidet tomt med flere solrike usjenerte uteplasser. Sol fra morgen til kveld. Boligen kjennetegnes med store rom, samt store vindusflater mot den flotte utsikten. Barnevennlig med gangavstand til skole og barnehage.
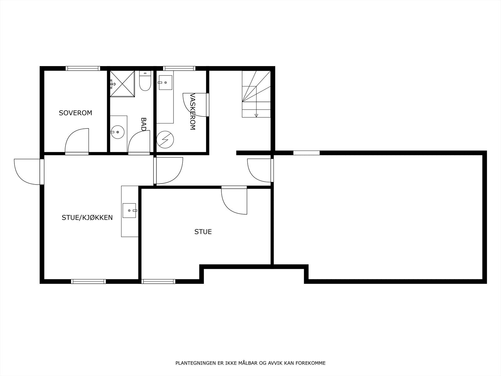
Boligen går over 2 plan + loft:
1. etg.: Gang, lekkert kjøkken/allrom, romslig stue med god takhøyde, gang, 2 bad/wc og 4 soverom
U. etg.: Gang, vaskerom og tv-stue/sov 5
Hybel: Stue/kjøkken, soverom og bad/wc
Hybel er for tiden ikke utleid men antatt utleieverdi ca kr. 114.000,- pr år
Garasje og parkering på tomt.
Boligen ligger høyt og luftig på ei av områdets beste tomter med pent opparbeidet tomt med flere solrike usjenerte uteplasser. Sol fra morgen til kveld. Boligen kjennetegnes med store rom, samt store vindusflater mot den flotte utsikten. Barnevennlig med gangavstand til skole og barnehage.
Boligen går over 2 plan + loft:
1. etg.: Gang, lekkert kjøkken/allrom, romslig stue med god takhøyde, gang, 2 bad/wc og 4 soverom
U. etg.: Gang, vaskerom og tv-stue/sov 5
Hybel: Stue/kjøkken, soverom og bad/wc
Hybel er for tiden ikke utleid men antatt utleieverdi ca kr. 114.000,- pr år
Garasje og parkering på tomt.
NB: Knappen for å vise hele beskrivelsen har kun en visuell effekt.
NB: Knappen for å vise hele beskrivelsen har kun en visuell effekt.
Salgsoppgaven beskriver vesentlig og lovpålagt informasjon om eiendommen
Se komplett salgsoppgaveNyttige lenker
Nærområdet
Eiendomsmegler Norge Kristiansand
Best der du bor
Prisstatistikk
Borghilds vei 41
5 197 klikk
på annonsen
65 568 kr
prisantydning per kvadratmeter
Prisfordeling
Pris per m² ligger 30 568 kr over snittet for eneboliger i Kristiansand Øst.
Grafen viser antall eneboliger solgt i Kristiansand Øst siste året fordelt på pris per m² - totalt 207 eneboliger
Antall boliger
Kvadratmeterpris tilsvarer prisantydning pluss fellesgjeld per kvadratmeter (p-rom eller BRA-i). Prisene i grafen er avrundet til nærmeste 1000 kr.
Annonseinformasjon
| FINN-kode | 349319547 |
|---|---|
| Sist endret | 08. juni 2024 13:39 |
| Referanse | SORM11.2473 |
Annonsene kan være mangelfulle i forhold til lovpålagt opplysningsplikt. Før bindende avtale inngås oppfordres interessenter til å innhente komplett informasjon fra meglerforetaket, selger eller utleier.





















































