Bildegalleri

Planlagt hytte med badstue | Fantastisk beliggenhet like ved sjøen med meget gode sol- og utsiktsforhold | Lysin 89
- Omkostninger
- 21 170 kr
- Totalpris
- 4 261 170 kr
Nøkkelinfo
- Beliggenhet
- Ved sjøen
- Boligtype
- Hytte
- Eieform
- Selveier
- Internt bruksareal
- 82 m² (BRA-i)
- Bruksareal
- 87 m²
- Eksternt bruksareal
- 4 m² (BRA-e)
- Balkong/Terrasse
- 19 m² (TBA)
- Tomteareal
- 1 000 m² (eiet)
- Soverom
- 3
- Rom
- 4
- Meter over havet
- 14
Fasiliteter
Visning
Om eiendommen
Beliggenhet
Eksklusive hyttetomter med solgang gjennom hele dagen. 60 meter fra sjøen med mulighet for eget naust – og kort vei til toppturer i Sunndalsalpene og Trollheimen både sommer og vinteren
Adkomst/Tomteforhold
Fra Trondheim og Oppdal kommer man til Ålvund, for deretter å følge RV 70 ut til Sandneset, ca. 10 km, og Furuneset Hyttefelt ligger på høyre side.
Fra Kristiansund og Molde kommer man til Tingvoll, følg RV 70 videre mot Ålvund. Etter ca 16 km ligger Furuneset Hyttefelt på venstre side.
Generelt
Det er planlagt felles flytebrygge og badestrand, som legger til
rette for ekte fjordliv med bading, båtliv og late sommerdager i
solen. Tomtene har solgang gjennom hele dagen, og midtsommers
kan du nyte den spektakulære solnedgangen som strekker
seg helt til rundt klokken 23 – et magisk skue over fjorden.
Med kun ca. 60 meter til sjøen og kort vei til både Meisingsetvågen
og Ålvundfjorden, er dette et ideelt utgangspunkt for deg som
setter pris på livet ved vannet. Samtidig ligger Furuneset perfekt
plassert for friluftsentusiaster, med kort avstand til Sunndalsfjella
nasjonalpark, Sunndalsalpene og Trollheimen – som byr på
flotte toppturer og naturopplevelser både sommer og vinter.
Furuneset Hyttefelt kombinerer det beste av fjord og fjell, med
store tomter, solrike forhold og en beliggenhet som gir rom for
både aktivitet og total avkobling. Her får du havet som nærmeste
nabo og fjellene rett i bakhånd.
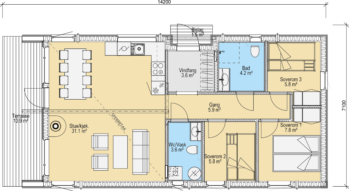
Lysin 89 bygger videre på 80-modellen, men med mer romslig vindfang og bislag som gir bedre flyt i inngangspartiet.
Her får du tre soverom, bad med badstue og ekstra WC. Planen gir en tydeligere inndeling mellom privat og sosial sone. Leveres med eller uten hems.
Leveransebeskrivelse
Generell utførelse
• Stående låvepanel mix bredder (ubehandlet), 20 cm isolasjon i yttervegg.
• Dråpe takshingel
• Takstige og snøfangere der det er krav.
• Vinduer iht. tegning. 2-lag energiglass, standard farge hvit inne/ute hvit NC SS 0502Y. Vinduer med gjennomgående sprosser.
• Takrenner i sort stål.
• Tinde ytterdør m/vindu, malt hvit.
• Eventuell sportsbod / utebod har Tinde boddør u/vindu, malt hvit.
• Terrasse leveres der det er vist på tegninger uten rekkverk.
• Isolasjon 25 cm i tak, 20 cm yttervegg og 10 cm i innervegger.
• Flytende gulv med 13 mm eikeparkett 3-stavs, type Kährs.
• Innvendige furupanel fra Moelven: 13 mm Sprekkpanel på vegger og himling, ubehandlet.
• Glatt standard listverk, ubehandlet.
• Furu 3-speils innerdører, ubehandlet.
• For hytter med badstue leveres benk i gran ubehandlet.
• Kjøkken fra Aubo Kjøkken av typen Unik NCS S 3502-Y, med laminat benkeplate og Slimline kjøkkenventilator (hvitevarer følger ikke med).
Rørlegger/innvendig sanitær
Rørleggerarbeid med utstyr iht. standard rørleggeroppsett. I utstyrsoversikt kan nevnes:
• Bunnledninger (rør som ligger i betongplate innenfor ringmur fram til toalett, sluker osv.).
• Rette slagdører i dusjnisje evnt. Dusjnisjedør (iht. tegning) med dusjgarnityr.
• Vegghengt toalett med innebygd sisterne.
• Slukrenne på bad.
• Baderomsinnredning m/skuffer, porselensvask og speil.
• Innredning med vask og speilskap leveres det det er separat WC rom.
• Varmtvannsbereder 200 liter.
• 1-greps blandebatterier på kjøkken, bad og evnt. andre våtrom.
• Opplegg for tilkobling av kjøkkenbenk m/ 1-greps benkebatteri med høy tut, samt opplegg for tilkobling av oppvaskmaskin.
• Lekkasjesikring/vannstoppeventil.
Murer, Flis, pipe og ildsted
• Peisovn med sideglass og m/glassplate montert på sort stålpipe.
• Flislagt gulv i vindfang med 30x60cm flis.
• Flislagt gulv på bad med 30 x 60 fliser. Ved eget WC-rom og badstue leveres det også 30x60 cm flis.
• Flislagte vegger på bad med 30x60 cm flis.
• Har hytta eget vaskerom, innvendig bod eller sportsbod leveres det med 30x30 cm flis.
Elektroinstallasjoner og utstyr
Elektrikerarbeid med utstyr iht. standard elektrikeroppsett. I utstyrsoversikt kan nevnes:
• Inntaksskap og kabel mellom inntak og sikringsskap.
• Sikringsskap m/overbelastningsvern, jordfeilautomater og overspenningsvern.
• EL-punkter (iht. NEK 400).
• Varmekabler med termostat og føler i vindfang og våtrom.
• Strømforsyning til seriekoblet røkvarslere m/backup batteri.
• Astrour-styrte utelamper.
• Downlights leveres i vindfang og bad. Om hytta har WC og gang i tillegg leveres det også downlights her.
• Taklamper leveres i soverom. For de hyttene som har vaskerom og bod, leveres det taklamper her.
• Panelovner, stikkontakter, komfyrvakt og badstuovn leveres i tråd med tegning.
• Varmepumpe
Oppgradering av leveransen
• Taktyper som tilpasses ønsker og/evt reguleringsplan.
• Beiset sprekkpanel på vegger og himling, listverk, utforinger og innvendig trapp/stige i en av Tinde sine standard farger.
• Innerdører, vinduer, ytterdør og evnt. boddør malt i valgfri NCS farge.
• Hvitevarepakke og kjøkkenløsning
Ellers samme leveranse som standard.
Prisen er for ferdig oppsatt hytte inkl. tomt og grunnarbeid. Tomteverdi (tomt 2 ) fra kr 800 000,- Verdi grunnarbeid estimert kr 500 000,-
For totalpris, div. avgifter og kostnader, se; https://www.tindehytter.no/hyttefelt/furuneset-hyttefelt
Prisene er beregnet med SSB sin sist kjente indeks, og vil bli justert til enhver tids gjeldene indeks.
Det tas forbehold om endelig godkjenning fra kommunen.
Salgsoppgaven beskriver vesentlig og lovpålagt informasjon om eiendommen
Se komplett salgsoppgaveNærområdet
Tindehytter AS
Annonsene kan være mangelfulle i forhold til lovpålagt opplysningsplikt. Før bindende avtale inngås oppfordres interessenter til å innhente komplett informasjon fra meglerforetaket, selger eller utleier.





























