Bildegalleri

Lyse og romslige for nettbutikk/kontor/lager/produksjonslokaler
Nøkkelinfo
- Areal
- 245 m²
- Etasje
- 1.
- Renovert år
- 2014
- Overtakelse
- 01.05.24
Type lokale
Fasiliteter
Om eiendommen
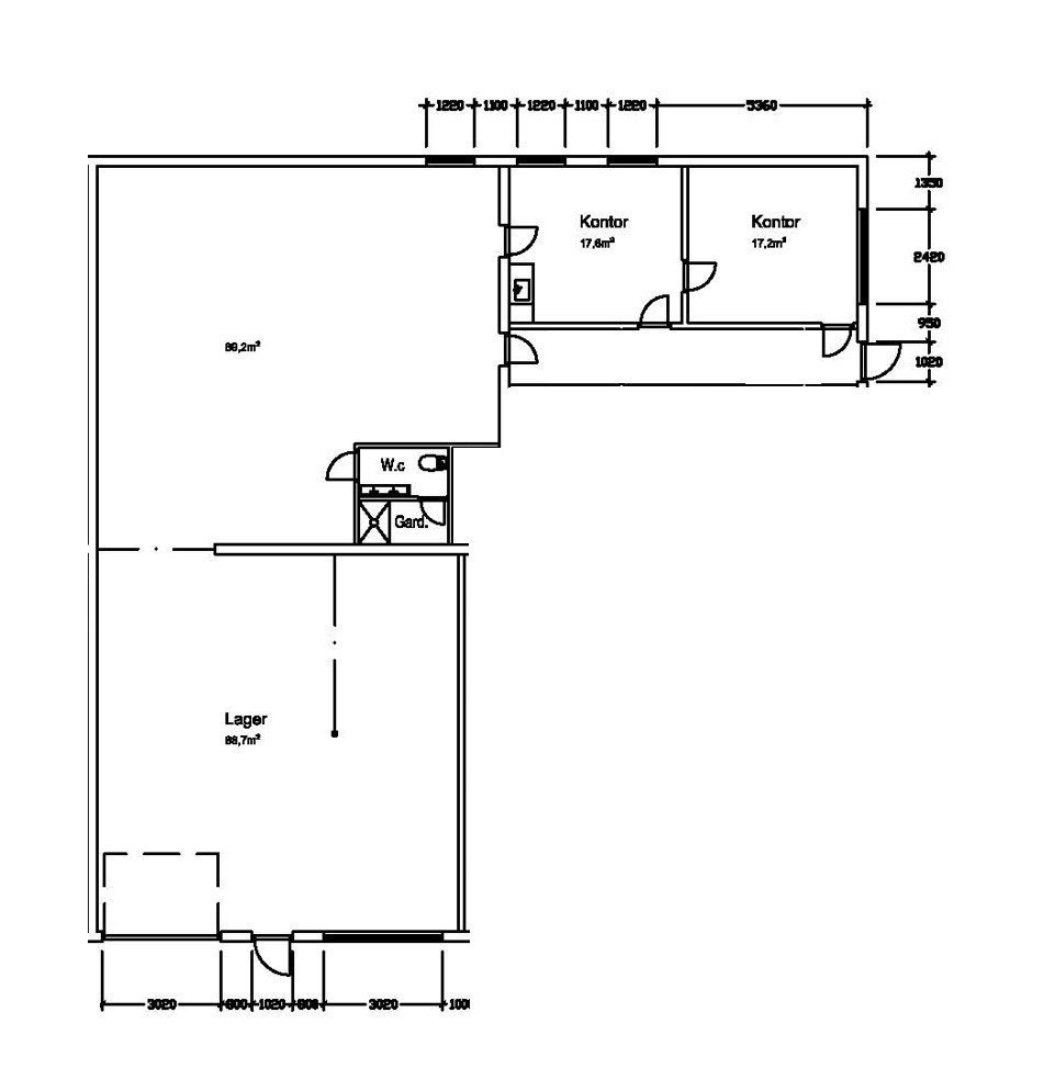
Lokalene ble totaltrenovert i 2014.
Dagens innredning har lagerplass i bakkant, stor og praktisk bilport, 2 stk. romslige kontorer ved inngangsdør og bad og stort produksjonsareal midt i lokalet.
Lokalene er lyse, er godt ventilert og har en mengde bruksområder!
N.B. løsøre på bildene tilhører nåværende leietaker og følger ikke med.
Sentral beliggenhet og utforming som gir mange muligheter for ulike typer næringsdrift.
Romslige lokaler for foretak som driver med f.eks verksted/produksjon/logistikk ledig fra februar.
Beliggenhet
Våleveien Næringspark er et næringsområde bestående av 10 lokaler med ulike leietakere. Noen er store og noen er små. Parkeringsmulighetene er gode, og parkeringsplassen er asfaltert.
Standard
F.eks dusj/føn-klosett, tak-kran, m. fl. spesialutstyr i.f.m. leietakers spesialvirksomhet (aktivitetssenter for mennesker med nedsatt funksjonsevne).
Matrikkelinformasjon
Visning
Ta kontakt for å avtale visning.Holmestrand Utvikling AS
Holmestrand Utvikling as v/ Jon Tunheim
Ansvarlig for utleie av næringseiendom
Nærområdet
Annonsene kan være mangelfulle i forhold til lovpålagt opplysningsplikt. Før bindende avtale inngås oppfordres interessenter til å innhente komplett informasjon fra meglerforetaket, selger eller utleier.




















