Bildegalleri

Illustrasjon fra stue/kjøkken
Bladfaksveien 4 - Øygard
Bladfaksveien 4 - stor endeleilighet med tresidig dagslys og balkong på to sider - egen frokost balkong
Kort om prosjektet
Midt imellom Austrått og Hana ligger Øygard - en rusletur unna Sandnes sentrum. Her bygger vi leiligheter med store vestvendte balkonger - utvalgte leiligheter har 2 terrasser, hvor man får morgensol på den ene og ettermiddag/kveldssol på den andre.
Prosjektets status
Planlegging
Bygging
Salgsstart
I salg
Byggestart
Fasade pågår
Overtakelse
1.kvartal 2027
Nøkkelinfo
- Boligtype
- Leilighet
- Etasje
- 3
- Soverom
- 2
- Rom
- 3
- Internt bruksareal
- 101 m² (BRA-i)
- Bruksareal
- 101 m²
- Eksternt bruksareal
- 7 m² (BRA-e)
- Balkong/Terrasse
- 32 m² (TBA)
- Energimerking
- B - Rød
Fasiliteter
Visning
Beskrivelse
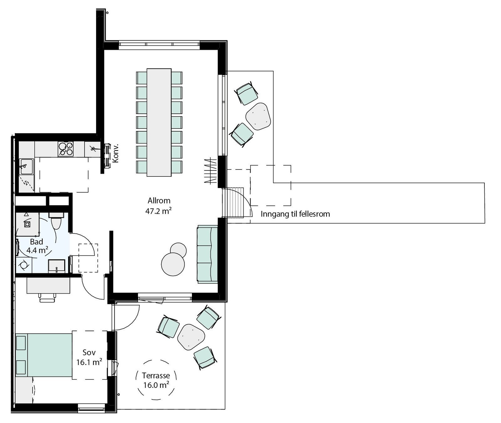
Stor endeleilighet med utsikt og tresidig dagslys i stue og kjøkken.
To store soverom, det ene med WIC og privat bad. Eget gjestebad/vaskerom.
Sørvest-vendt terrasse på 20 kvm og egen terrasse med morgensol på 10 kvm
Parkering og bod i kjeller er inkludert.
Nærområdet
OBOS Block Watne AS

OBOS Block Watne AS, avd. Rogaland
Utbygger
Annonsene kan være mangelfulle i forhold til lovpålagt opplysningsplikt. Før bindende avtale inngås oppfordres interessenter til å innhente komplett informasjon fra meglerforetaket, selger eller utleier.




