Bildegalleri

Illustrasjon fra spisestue/kjøkken
Bladfaksveien 4 - Øygard
Bladfaksveien 4 - toppleilighet med tresidig dagslys og balkong på to sider - stor frokostbalkong -RESERVERT
Kort om prosjektet
Midt imellom Austrått og Hana ligger Øygard - en rusletur unna Sandnes sentrum. Her bygger vi leiligheter med store vestvendte balkonger - utvalgte leiligheter har 2 terrasser, hvor man får morgensol på den ene og ettermiddag/kveldssol på den andre.
Prosjektets status
Planlegging
Bygging
Salgsstart
I salg
Byggestart
Fasade pågår
Overtakelse
1.kvartal 2027
Nøkkelinfo
- Boligtype
- Leilighet
- Etasje
- 5
- Soverom
- 2
- Rom
- 3
- Internt bruksareal
- 92 m² (BRA-i)
- Bruksareal
- 92 m²
- Eksternt bruksareal
- 7 m² (BRA-e)
- Balkong/Terrasse
- 38 m² (TBA)
- Energimerking
- B - Rød
Fasiliteter
Beskrivelse
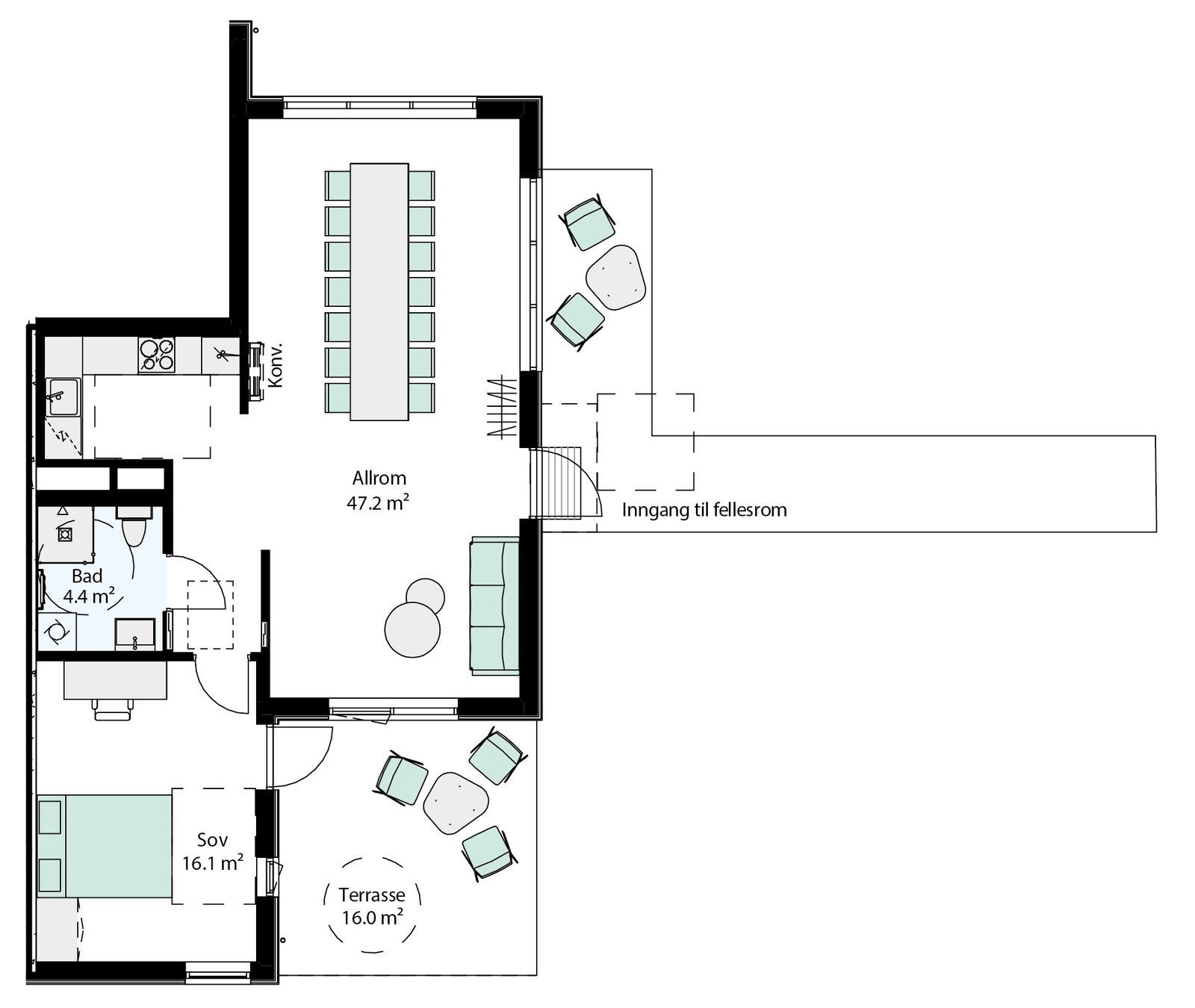
Stor endeleilighet i øverste etasje med utsikt og tresidig dagslys i stue og kjøkken.
Toppetasjen har generøs etasjehøyde på hele 3,2 meter. Sammen med dagslys fra tre siden gir dette en helt spesiell romvirkning.
To store soverom, det ene med privat bad. Gjestebad i tillegg til eget vaskerom.
Stor terrasse på 23 kvm med ettermiddag og kveldssol. Egen frokosterrasse 16 kvm med gode solforhold på morgen og formiddag.
Parkering og bod i kjeller er inkludert.
Nærområdet
OBOS Block Watne AS

OBOS Block Watne AS, avd. Rogaland
Utbygger
Annonsene kan være mangelfulle i forhold til lovpålagt opplysningsplikt. Før bindende avtale inngås oppfordres interessenter til å innhente komplett informasjon fra meglerforetaket, selger eller utleier.




