Bildegalleri

Kontorlandskap
St. Olavs gate 12 - Moderne kontorlokaler
Nøkkelinfo
- Areal
- 175 - 674 m²
- Tomt
- Eiet
Type lokale
Fasiliteter
Arealspesifikasjon
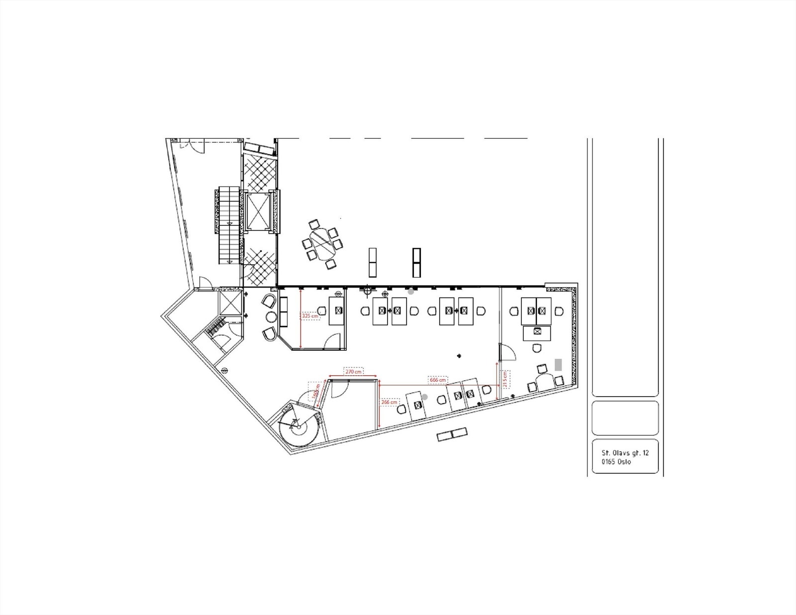
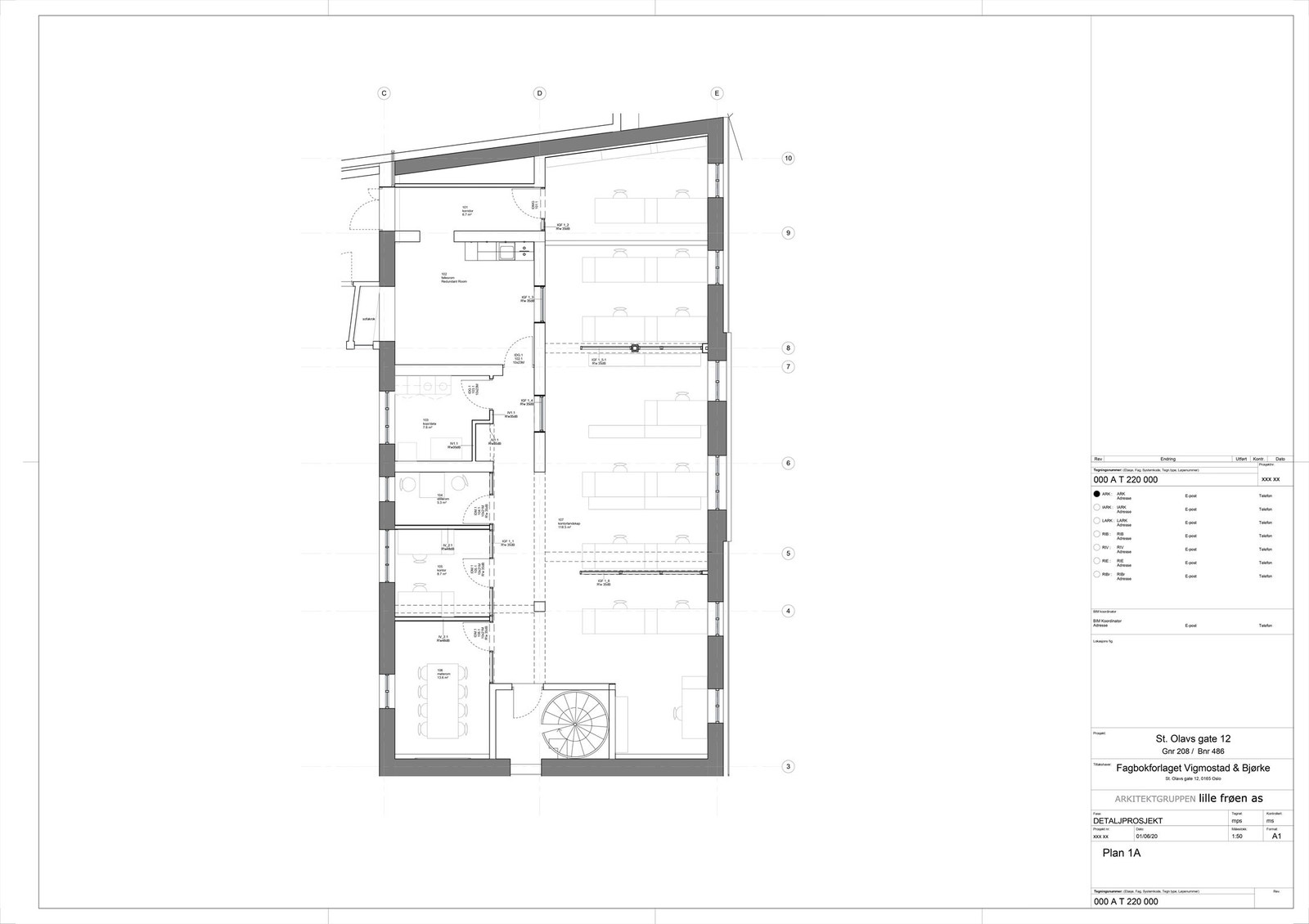
1. etg: 175 kvm Kontor 1A
1. etg: 269 kvm Kontor 1B
4. etg: 230 kvm Kontor 4B
Kort om eiendommen
St. Olavs gate 12 er en flott og klassisk bygård sentralt i Oslo sentrum og rett ved St. Olavs plass.
Dette er en av de klassiske kontoreiendommene tegnet av Ark. Von Hanno på 1800 tallet. Eiendommen er på ca. 2000 kvm til kontorformål. Bygget er jevnlig oppgradert og i god stand og er oppført på Byantikvarens gule liste.
Eiendommen består av et bygg som vender ut mot gaten og et bygg i bakgården. Byggene er koblet sammen av et trappehus med heis, og det er fire etasjer med kontorer i hvert bygg. I tillegg er det kjeller i bygget ut mot St. Olavs gate med kantine og noen møterom mm.
Beliggenhet
St. Olavs gate 12 ligger sentralt i Oslo i Oslo sentrum rett ved St Olavs plass og i nærheten av St. Hanshaugen og Tullinløkka. Eiendommen har en førsteklasses beliggenhet med enkel tilgang til mange fasiliteter, restauranter, kafeer og severdigheter. St. Olavs gate er en av hovedgatene i Oslo sentrum, og nr. 12 ligger i hjertet av denne gaten.
Diverse
Det er innendørs sykkelparkering, dusjer, garderober og kantine i eiendommens fellesarealer. Det er også betjent felles resepsjon i 1. etg.
Innhold
Kontorlokalene inneholder; åpent kontorlandskap, kontorer, møterom, kjøkkenløsning og toaletter, Det er felles kantine, resepsjon, sykkelparkering, dusjer og garderober i fellesarealene. Det er potensielt 3 ledige lokaler i eiendommen, men i utgangspunktet skal bare 2 av disse leies ut. De er på henholdsvis; 175 kvm BTA, 230 kvm BTA og 269 kvm BTA.
Adkomst
Det er enkel adkomst til St. Olavs gate 12. Eiendommen ligger i hjertet av Oslo sentrum og St. Hanshaugen, og med mange sentrale steder innen gangavstand. Det er også godt med fortau og sykkelmuligheter. Det er mulig å leie sykler fra bysykkelstativer rundt om i nærheten. Det er både innendørs og utendørs sykkelparkering på eiendommen.
Parkering
Det er mulig å leie noen parkeringsplasser på eiendommen. Det er innendørs og utendørs sykkelparkering i bakgården.
Offentlig kommunikasjon
I nærheten av St. Olavs gate 12, er det et godt utvalg av offentlig kommunikasjon tilgjengelig. St. Olavs gate ligger nær flere trikkestopp. Linjene 17, 18 og 19 har stopp i nærheten av St. Olavs gate. Det er også flere bussruter som dekker området. Rutene 30, 31, 34, 37, 54, 74A og 74B er noen av bussene som kan nås fra St. Olavs gate. Det er gå avstand til Stortinget og Nationaltheatret T-bane stasjon.
Matrikkelinformasjon
Visning
Ta kontakt for å avtale visning.TIGER EIENDOMSKOMPETANSE AS
Nærområdet
Annonseinformasjon
| FINN-kode | 348759003 |
|---|---|
| Sist endret | 13. jan. 2025 10:45 |
| Referanse | TIGO1.245 |
Annonsene kan være mangelfulle i forhold til lovpålagt opplysningsplikt. Før bindende avtale inngås oppfordres interessenter til å innhente komplett informasjon fra meglerforetaket, selger eller utleier.


















