Bildegalleri

2 AV 3 HUS SOLGT! Silje Midtseim-Dammen ved EIE Løren har gleden av å ønske velkommen til Vestaveien 39 A!
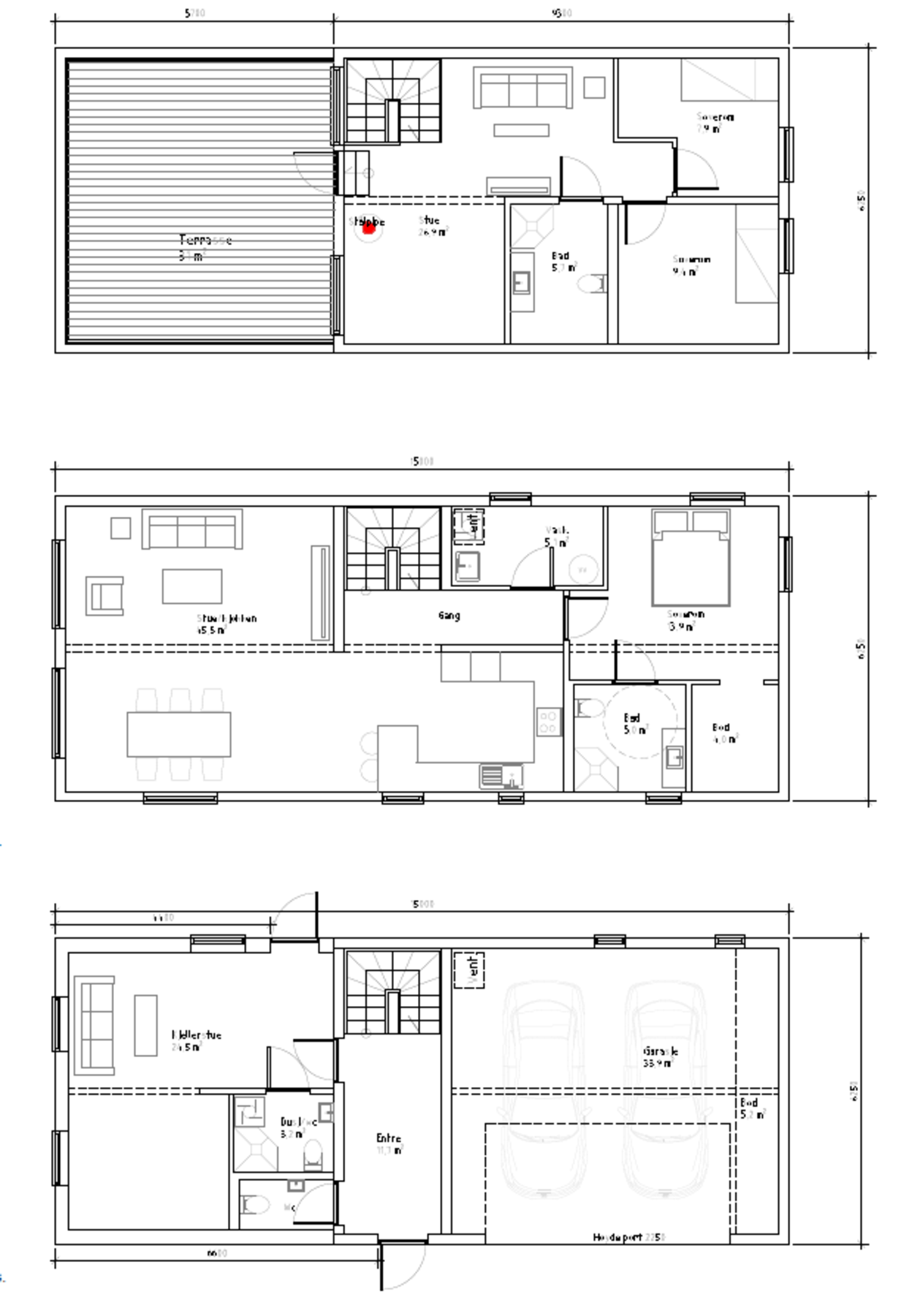
2 av 3 boliger solgt. Kun 1 igjen. Helt ny enebolig med dobbelgarasje, 3 bad og solrik takterrasse m/utsikt. Hage.
Nøkkelinfo
- Boligtype
- Enebolig
- Eieform
- Eier (Selveier)
- Soverom
- 5
- Internt bruksareal
- 179 m² (BRA-i)
- Bruksareal
- 218 m²
- Eksternt bruksareal
- 39 m² (BRA-e)
- Balkong/Terrasse
- 31 m² (TBA)
- Byggeår
- 2024
- Tomteareal
- 1 053 m² (eiet)
Fasiliteter
Om boligen
Dette er en helt ny familiebolig over tre plan med høy standard. Her bor du med flott beliggenhet i en meget attraktiv gate på Røykås i Lørenskog. Eiendommen ligger fint og luftig til i forhold til nabobebyggelsen med en usjenert, solrik beliggenhet i en rolig og trivelig gate.
Du vil få en flott og innflytningsklar enebolig med en god planløsning. Boligen har store vindusflater som gir en luftig romfølelse kombinert med meget gode lys- og solforhold. Her er ingenting overlatt til tilfeldighetene hva gjelder standard, planløsning, adkomst, utearealer og lysforhold. Dobbelgarasje med oppbevaringsplass og parkering ute.
Denne bør ses - velkommen til en hyggelig visning!
Salgsoppgaven beskriver vesentlig og lovpålagt informasjon om eiendommen
Se komplett salgsoppgaveNyttige lenker
Nærområdet
EIE eiendomsmegling Løren
Prisstatistikk
Vestaveien 39 A
på annonsen
prisantydning per kvadratmeter
Prisfordeling
Pris per m² ligger 11 659 kr over snittet for eneboliger i Lørenskog.
Grafen viser antall eneboliger solgt i Lørenskog siste året fordelt på pris per m² - totalt 174 eneboliger
Antall boliger
Kvadratmeterpris tilsvarer prisantydning pluss fellesgjeld per kvadratmeter (p-rom eller BRA-i). Prisene i grafen er avrundet til nærmeste 1000 kr.
Annonseinformasjon
| FINN-kode | 348209684 |
|---|---|
| Sist endret | 25. sep. 2025 13:09 |
| Referanse | 71240090 |
Annonsene kan være mangelfulle i forhold til lovpålagt opplysningsplikt. Før bindende avtale inngås oppfordres interessenter til å innhente komplett informasjon fra meglerforetaket, selger eller utleier.












































