Bildegalleri

Fasade mot syd med bakgård og inngangsparti.
Inaktiv
Brevik
Enebolig med mange bruksområder i idylliske Brevik.
Prisantydning1 800 000 kr
Nøkkelinfo
- Boligtype
- Enebolig
- Eieform
- Eier (Selveier)
- Soverom
- 3
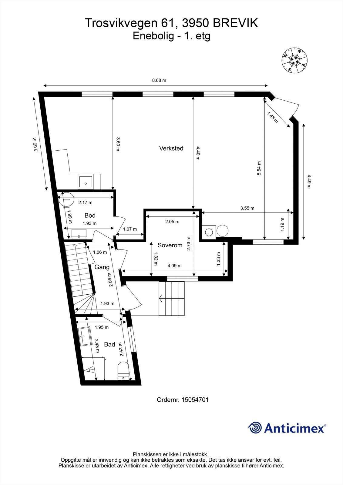
- Internt bruksareal
- 124 m² (BRA-i)
- Bruksareal
- 124 m²
- Balkong/Terrasse
- 14 m² (TBA)
- Byggeår
- 1836
- Energimerking
- G - Oransje
- Rom
- 4
- Tomteareal
- 120 m² (festet)
- Festeavgift
- 265 kr
Fasiliteter
Balkong/Terrasse
Kabel-TV
Offentlig vann/kloakk
Peis/Ildsted
Sentralt
Bademulighet
Turterreng
Visning
For å delta på visning, ber vi om at du melder deg på. Da sikrer vi at du får nødvendig informasjon og at det er satt av tilstrekkelig med tid. Kontakt megler dersom annet tidspunkt ønskes. Husk å lese salgsoppgaven før visningen, så du stiller forberedt.
Ønsker du kun å bli holdt orientert, kan du fra eiendommens hjemmeside få varsel om solgtpris, eller kontakte megler.
VisningspåmeldingOm boligen
- Sentral beliggenhet med umiddelbar nærhet til bykjernen og torvet.
- Terrasse med utsikt til mange av byens tak.
- Eiendommen har en boligdel og et stort rom som med adkomst fra gateplan. Fra gamle dager har det vært benyttet som møtelokale, og i nyere tid som atelier og malerverksted.
- Oppgraderingsbehov.
NB: Knappen for å vise hele beskrivelsen har kun en visuell effekt.
NB: Knappen for å vise hele beskrivelsen har kun en visuell effekt.
Salgsoppgaven beskriver vesentlig og lovpålagt informasjon om eiendommen
Se komplett salgsoppgaveNyttige lenker
Nærområdet
Krogsveen Bamble og Porsgrunn
Verdien av en god megler.
Annonseinformasjon
| FINN-kode | 348208953 |
|---|---|
| Sist endret | 04. sep. 2025 11:06 |
| Referanse | KR28.2429 |
Annonsene kan være mangelfulle i forhold til lovpålagt opplysningsplikt. Før bindende avtale inngås oppfordres interessenter til å innhente komplett informasjon fra meglerforetaket, selger eller utleier.


































