Bildegalleri

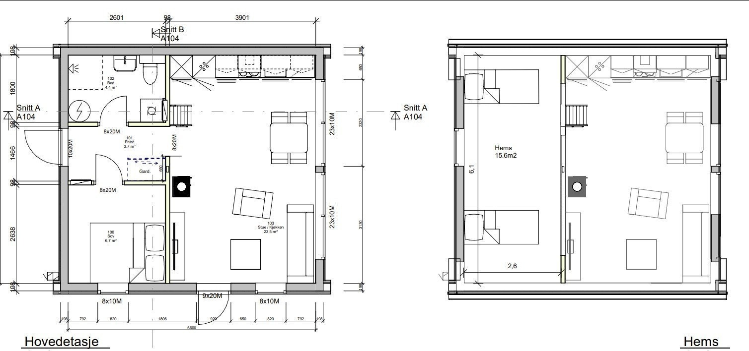
Stora Varholmsundet med hems, kr. 2.990.000,-
Sirevåg Sjøgrend
Stora Varholmsundet (2.990.000,-)
Prisantydning2 990 000 kr
Prosjektets status
Planlegging
-
Salgsstart
Selges nå!
Byggestart
Antatt 3. kvartal 2024
Overtakelse
Antatt 2. kvartal 2025
Nøkkelinfo
- Beliggenhet
- Ved sjøen
- Boligtype
- Hytte
- Soverom
- 1
- Bruksareal
- 40 m²
- Tomt
- Eiet
Visning
Ta kontakt for å avtale visning.Nærområdet
Aktiv Jæren
Annonsene kan være mangelfulle i forhold til lovpålagt opplysningsplikt. Før bindende avtale inngås oppfordres interessenter til å innhente komplett informasjon fra meglerforetaket, selger eller utleier.



