Bildegalleri

Skolen ligger i kort avstand fra huset.
Pen og romslig enebolig I Åros. TA KONTAKT FOR VISNING. 4 soverom. Rett ved skole/barnehage og buss.
Nøkkelinfo
- Boligtype
- Enebolig
- Eieform
- Eier (Selveier)
- Soverom
- 4
- Internt bruksareal
- 149 m² (BRA-i)
- Bruksareal
- 149 m²
- Eksternt bruksareal
- 15 m² (BRA-e)
- Balkong/Terrasse
- 107 m² (TBA)
- Byggeår
- 1969
- Energimerking
- G - Oransje
- Tomteareal
- 1 209 m² (eiet)
Fasiliteter
Om boligen
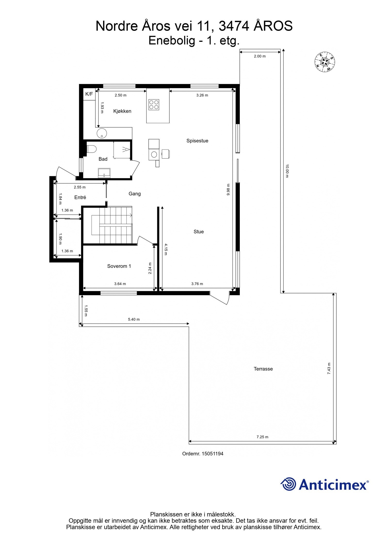
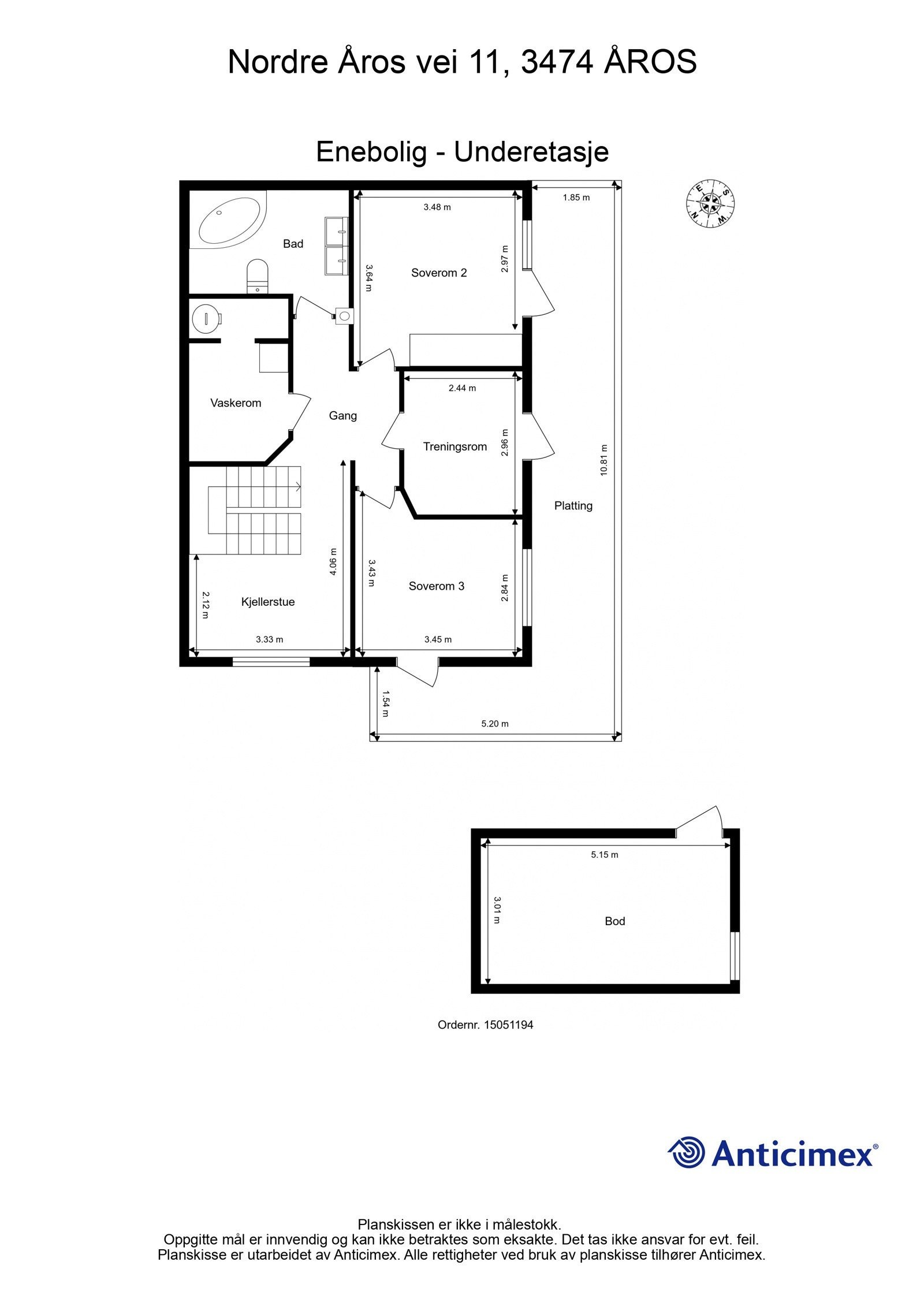
Velkommen til Nordre Åros vei 11 - en pen enebolig like utenfor Åros sentrum. Boligen går over to plan og har familievennlig planløsning. I 1. etasje finner vi et lekkert kjøkken med integrerte hvitevarer som ligger i åpen løsning til en lys og luftig stue/spisestue med utgang til en terrasse på hele 82 kvm. I 1. etasje er det også entré, bad og et soverom. I underetasjen er det tre soverom, disse er godkjente nå, i tillegg til trapperom, vaskerom og et flott bad. Tomten er pent opparbeidet med mye boltreplass, her kan man fint sette opp garasje. Det er parkeringsplass til flere biler på gårdsplassen.
Det er 650 meter til barneskole og det er flere barnehager i nærområdet. Det er også kort vei til Åros sentrum og bussholdeplass. Dette er et område man garantert vil trives i!
Velkommen!
Salgsoppgaven beskriver vesentlig og lovpålagt informasjon om eiendommen
Se komplett salgsoppgaveNærområdet
EIE eiendomsmegling Asker
Annonseinformasjon
| FINN-kode | 347746775 |
|---|---|
| Sist endret | 20. aug. 2024 08:24 |
| Referanse | 85240017 |
Annonsene kan være mangelfulle i forhold til lovpålagt opplysningsplikt. Før bindende avtale inngås oppfordres interessenter til å innhente komplett informasjon fra meglerforetaket, selger eller utleier.






















































