Bildegalleri

Ellen Celine Heireth i EIE eiendomsmegling presenterer Margarethas vei 2!
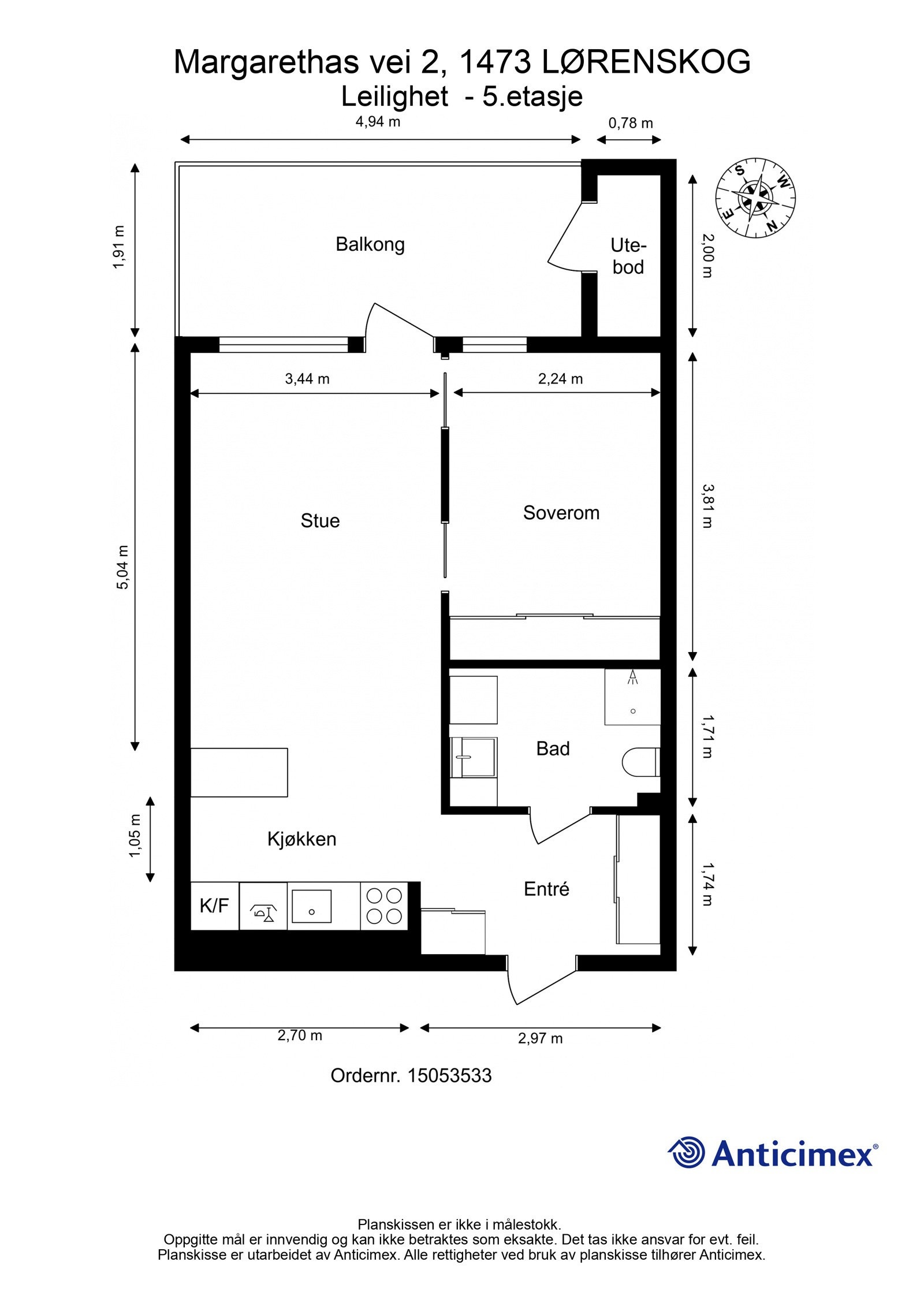
Stilren 2-roms i femte etasje | Rolvsrud park | Utsikt og gode solforhold | Garasje | IN-ordning | Ingen dok.avgift |
Nøkkelinfo
- Boligtype
- Leilighet
- Eieform
- Andel
- Soverom
- 1
- Internt bruksareal
- 43 m² (BRA-i)
- Bruksareal
- 49 m²
- Eksternt bruksareal
- 6 m² (BRA-e)
- Balkong/Terrasse
- 9 m² (TBA)
- Etasje
- 5
- Byggeår
- 2007
- Energimerking
- C - Rød
- Tomteareal
- 2 917 m² (eiet)
Fasiliteter
Om boligen
Ellen Celine Heireth v/ EIE eiendomsmegling presenterer Margarethas vei 2 - En innholdsrik og moderne to-roms beliggende i Rolvsrud park. Her bor du midt i smørøyet på Lørenskog.
Beliggenheten er perfekt for deg som ønsker å bo sentralt i gangavstand til kjøpesenter, kulturhus og gode kollektivforbindelser med direkte tilknytning til Oslo sentralstasjon. Her får du en god blanding av byfølelsen og naturfølelsen med langvannet og østmarka i nærheten.
Høydepunkter:
- God planløsning
- Beliggende i femte etasje
- Utsikt og gode solforhold
- Rikelig med lysinnslipp
- Gjenommgående med parkett
- Romslig stue med plass til hjørnesofa
- Strøkent kjøkken med god benke-og oppbevaringsplass
- Bod på 4 kvm i samme etasje
- Garasjeplass med mulighet for lader
- Kollektivtransport rett utenfor døra
- IN-ordning
Velkommen til visning!
Salgsoppgaven beskriver vesentlig og lovpålagt informasjon om eiendommen
Se komplett salgsoppgaveNærområdet
EIE eiendomsmegling Lørenskog

Emilie Rønvik
Medhjelper
Prisstatistikk
Margarethas vei 2
på annonsen
prisantydning per kvadratmeter
Prisfordeling
Pris per m² ligger 9 255 kr over snittet for leiligheter i Lørenskog.
Grafen viser antall leiligheter solgt i Lørenskog siste året fordelt på pris per m² - totalt 980 leiligheter
Antall boliger
Kvadratmeterpris tilsvarer prisantydning pluss fellesgjeld per kvadratmeter (p-rom eller BRA-i). Prisene i grafen er avrundet til nærmeste 1000 kr.
Annonseinformasjon
| FINN-kode | 345735816 |
|---|---|
| Sist endret | 07. apr. 2024 11:14 |
| Referanse | 32240047 |
Annonsene kan være mangelfulle i forhold til lovpålagt opplysningsplikt. Før bindende avtale inngås oppfordres interessenter til å innhente komplett informasjon fra meglerforetaket, selger eller utleier.




























