Bildegalleri

1.etasje

Solgt

Vittenbergveien 105

Enebolig Vittenbergveien 105

Prisantydning9 490 000 kr
Totalpris
9 591 240 kr
Omkostninger
101 240 kr
  • Planlegging

    -

  • Salgsstart

    -

  • Byggestart

    -

  • Overtakelse

    -

Nøkkelinfo

Boligtype
Enebolig
Etasje
2
Soverom
4
Rom
6
Internt bruksareal
119 m² (BRA-i)
Bruksareal
119 m²

Les mer om bruksareal her

Fasiliteter

Balkong/Terrasse
Barnevennlig
Bredbåndstilknytning
Garasje/P-plass
Kabel-TV
Offentlig vann/kloakk
Parkett
Peis/Ildsted
Turterreng

Beskrivelse

Beliggenhet

Vittenbergveien 105 ligger i et sentralt og hyggelig nabolag på Vittenberg/Fjellhamar, ikke langt fra Strømmen Stadion og Ahus. Her får du både nærhet til naturopplevelser langs Fjellhamardammen og i marka, samtidig som du har gangavstand til daglige servicefasiliteter, Ahus, skoler og barnehager. Både bussforbindelser og togstasjon ligger i gangavstand fra boligen.

På tomten skal det oppføres 3 familievennlige og effektive eneboliger. Boligene går over to fulle plan og blir levert med en gjennomgående god standard på materialer og innredninger.

Hus 1 har en litt annen utforming enn de to øvrige boligene og her medfølger det frittstående garasje + sportsbod. I tillegg vil huset få 1 p-plass utvendig. I utformingen av husene er det vektlagt gode romløsninger som gir både barn og voksne egne soner og plass i en hektisk hverdag.


Skole og barnehager:
Boligen har trygg gangavstand til Kurland barneskole, Hammer ungdomsskole og flere kommunale- og privateide barnehager. Kurland barneskole (1-7 kl.) med et velfungerende SFO-tilbud, Hammer ungdomsskole (8-10 kl.). Videregående utdanning på Lørenskog vgs og Mailand med et bredt utvalg studieretninger. Merk at kommunen har veiledende inntaksområder.

Shopping/ dagligvarehandel:
Daglige innkjøp gjøres enkelt på Kiwi Fjellhamar, Coop på Fjellhamar Torg eller Rema 1000 på Metro Senter. For større innkjøp og shopping kan nærområdet by på både Strømmen, Metro og Triaden kjøpesenter.

Offentlig kommunikasjon:
Godt utbygd offentlig kommunikasjon i nærområdet med Fjellhamar Stasjon innen kort gangavstand. Avganger hvert 15. minutt til Oslo (hver halvtime på sommeren). Toget bruker cirka 22 min inn til Oslo S. Bussholdeplass kun 8 min gange unna med avganger hvert 10.minutt mot Oslo (reisetid ca 23 min). Et annet alternativ er buss til Lillestrøm og direkte tog inn til Oslo.

Rekreasjonsmuligheter:
Trenings- og turmulighetene i Lørenskog kommune er varierte og gode. Lørenskog er omgitt av fantastiske Østmarka som byr på et flust av naturopplevelser, badevann, fiskevann, langrennsløyper, sykling og riding - flotte turopplevelser for hele familien. Kommunen stiller sterkt på idrettsfronten med tilbud som favner de fleste. Det er blant annet flere ballplasser, ishall like i nærheten, golfbane på Losby, flerbrukshall på Fjellsrud, samt svømmehall og tennisbane ved Kjenn. Lørenskog har ishockeylag som ligger helt i norgestoppen og utøvere i verdenstoppen innen freestyle og discodans. Om det er fotball, håndball, ski eller turn som er ditt barn sin idrett vil man finne et godt tilbud i kommunen.

Nord-vest for Lørenskog Stasjonsby mot E6, ligger Lørenskog Vinterpark - SNØ. Med en størrelse på totalt 50.000 kvadratmeter, er skihallen en av verdens største innendørsarenaer med perfekte forhold for langrenn, snowboard, freeski og alpint. Alle med en interesse for ski og snø skal få glede av Skihallen. Anlegget er åpent året rundt og er tilrettelagt for både barn og voksne. I tilknytning til skihallen er det bygd et resorthotell, skigymnas og næring rettet mot skisport.

Se vedlagte nabolagsprofil i prospektet for ytterligere informasjon om nærområdet.

Bebyggelse

Primært eneboliger, tomannsboliger og rekkehus med omkringliggende blokkbebyggelse.

Adkomst

Det vil bli skiltet med Proaktiv visningsskilt på visningsdagen.

Orientering

Prosjektet består av 3 boligseksjoner, garasje/parkering og fellesarealer. Utbygger for prosjektet er TBA Prosjekt AS org.nr.: 991713867. Prosjektbeskrivelsen redegjør for hvilke materialer, arbeider og tjenester som inngår i leveransen, samt planlagt organisering av boliger, fellesarealer og garasje/parkering.

Eiendommens adresse

Vittenbergveien 105 A-C
1472 Fjellhamar

Hus 1 får adresse Vittenbergveien 105C

Tomten

Prosjektet omfatter i dag gnr/bnr 81/82, seksjon 1-3

Tomtens areal utgjør ca 1132 kvm.

Utomhusarbeider:
Nødvendige grave og oppfyllingsarbeider for plate på mark og grøfter for ledningsnett, vann og avløpsanlegg.
Adkomstarealer og biloppstillingsplasser leveres ferdig opparbeidet med topplag av singel .
Utomhusarealer leveres grovplanert med stedlige masser.

Det er ikke medregnet støttemurer eller andre utomhus anlegg som ikke er vist på tegning eller beskrevet i herværende leveranse.

Byggemåte

Hus 1
Støpt plate på mark for bolig med radonsperre.
Bygningen utføres med bærekonstruksjon i treverk. Etasjeskiller utføres i trekonstruksjon.

Fasadene bygges opp som isolerte stendervegger kledd med trepanel utvendig. Utvendig fasade leveres med kledning som er maskinelt beiset før montering på vegg. Det vil medføre at det er synlig spiker og at det enkelte steder mangler beis/overflatebehandling. Dette må behandles av kjøper så snart det lar seg gjøre. Overflatebehandling er utført med ett strøk grunning og ett mellomstrøk med farge. Det gis ikke garanti for varighet av denne behandlingen, men behov for ny påføring er mellom ett til tre år.

Takverk tekkes med takstein.
Vindusbeslag og lignede leveres i farge sort.

Utvendig balkong utenfor kjøkken leveres med trekonstruksjon, trykkimpregnerte bordkledning, rekkverk i stål og glass.

Innvendige vegger består av stenderverk i tre, isolert og kledd med gipsplater. Isolasjon leveres i henhold til TEK17 og i henhold til gjeldende regler for omfordeling av U-verdi.

Standard innvendig behandling gulv:
Alle tørre rom leveres med 1-stavs parkett i lys eik. Annen type parkett kan leveres som tilvalg. Fliser på alle bad, WC, vaskerom og entré leveres med Glade Cinza 60x60 cm. Dusjsone på alle bad leveres med mosaikk. Andre fliser kan leveres som tilvalg.

Vegger:
Vegger males i valgfri farger opptil NCS 4000. Det kan velges mellom 4 NCS farger, begrenset til én farge pr. rom. På alle bad leveres Glade Cinza 60x60x cm, det blir tilbudt alternative fliser som tilvalgsmulighet. Vaskerom behandles med våtromsmaling i valgfri farge opptil NCS 4000.
Carport/sportsbod leveres som ubehandlet.
Malerarbeider utføres etter NS3490-K2

Himlinger:
Himlinger leveres med gips som sparkles og males hvite. Det er ikke medregnet overflatebehandling i himlinger i utvendige boder, garasjer eller sportsboder. Malerarbeider utføres etter NS3490-K2

Nedforet himlinger:
Rørføringer vil i all hovedsak bli skjult bak innkassinger og som helt eller delvis nedfôrede platehimlinger, fortrinnsvis i entré, bad og over kjøkkenskap. Nevnte konstruksjoner vil bli overflatebehandlet som en del av overflaten der konstruksjonen blir montert. Vi gjør oppmerksom på at innkassinger ikke er vist på prospekttegningene.

Innredning - generelt:
Alle innredninger leveres med standard høyde.

Innredninger:
Kjøkkeninnredning leveres fra Drømmekjøkkenet. Det medfølger innredning for entreprenørs netto innkjøpspris kr. 115 000 inkludert mva. for hovedkjøkken. Eventuelle endringer beregnes med grunnlag i denne verdien. Kjøkkenventilator inngår i prisen for innredningen. Det er ikke medregnet hvitevarer, men disse kan kjøpes som tilvalg. Montering av kjøpers egne hvitevarer inngår ikke i leveransen.

Baderomsinnredninger leveres fra Drømmekjøkkenet. Det medfølger innredninger for entreprenørs netto innkjøpspris inkl. mva. Innkjøpspris for de ulike innredningene er som følger:
-Bad 1 etg. kr. 20 000
-Vaskerom 1 etg. kr. 13 000
-Bad 2 etg. 20 000

Garderobeskap er ikke medregnet i leveransen. Det presiseres at evt. forslag til øvrige garderober/skap som fremgår av plantegninger kun er ment som illustrasjoner og inkluderes ikke i standard leveranse.

Dører:
Innvendige dører type hvit profilert fra DDF modell FM1 eller lignende, med hvite karmer og
dørvridere i blank eller børstet utførelse. Det gjøres oppmerksom på at dorer leveres med spalte
(eller flat terskel) for ventilasjon.
Ytterdør leveres fra DDF modell V25G eller lignende, som sort med klart glass og sort karm. Vrider i
børstet stal/krom. Ytterdør til vaskerom leveres som V25 sort.

Sanitær:
Det leveres utstyr i hvit utførelse fra anerkjent leverandør med ett-greps blandebatterier.
Følgende utstyr er medregnet i leveransen:
-Bad 1 etg: Vegghengt dusj med dusjgarnityr og armatur, dusjvegger i klart glass med skinner og armatur til innredning. Alt i krom utførelse. Vegghengt hvitt toalett.
-Vaskerom: armatur i krom til innredning og opplegg for vaskemaskin, 200 liters varmtvannsbereder
-Kjøkken: Armatur i krom til innredning og opplegg for oppvaskmaskin
-Bad 2 etg: Vegghengt dusj med dusjgarnityr og armatur, dusjvegger i klart glass med skinner og armatur til innredning. Alt i krom utførelse. Vegghengt hvitt toalett.
-Frostfri utekran som plasseres utenfor der det er mest hensiktsmessig.

Vinduer/vindusdører:
Vinduer leveres iht. varmetapsberegning for tiltaket. Karmer leveres i sortmalte, inn og utside, fra fabrikk uten etterbehandling etter montering.

Listverk og utforinger:
Det leveres listverk i glatt utførelse. Fotlist, taklist, vindu- og dørlist hvitmalt fra fabrikk. Det er synlige spiker og gjæringer. Det inngår ikke etterbehandling av listverk etter montering. Det kan forekomme noen glipper mellom listverk og vegg som følge av sparklet vegger.

Innvendige trapp:
Innvendig trapp leveres åpen med hvitmalte vanger og stolper, spiler i metall, trinn og opptrinn i lakkert eik. Det er ikke medregnet etterbehandling etter montering.

Innervegger:
Delevegger leveres som isolerte lettvegger.

Diverse utstyr:
Brannslukningsutstyr leveres til forskrifter. Boligen leveres med brannslukningsapparat, 6 kg pulverapparat, og en røykvarsler i hver etasje.

Ventilasjon:
Det vil bli montert balansert ventilasjon med lokalt aggregat. Avtrekk via kanaler over tak, eller i
fasaden. Aggregat til ventilasjon plasseres i teknisk rom eller annet egnet sted.

Elektrisk:
Elektrisk anlegg leveres iht. NEK 400-2018/NEK399:2018 forskriften. Det vil bli utarbeidet egen punktplan for hver leilighet. Elektrisk anlegg leveres i all hovedsak som skjult anlegg. Enkelte steder, som følge av tekniske installasjoner/konstruksjon, kan åpent anlegg forekomme.

Det leveres:
-5 stk downlights i hall, 4 stk på bad 1. etg og 4 stk på bad 2. etg. For øvrige leveres ikke belysning innendørs. Det leveres 3 stk utelamper; 1 stk på balkong 2 etg., 1 stk. ved terrassedører 1 etg og 1 stk. ved inngangsdør.
Det leveres 2 stk. røranlegg for TV- og data til stue 1 etg og 2 etg.

Som tilvalg kan det monteres ekstra trekkerør i vegger til rom for eventuell fremtidig installasjon av punkt for TV.

Areal

- BRA-i (internt bruksareal): 119 kvm
- BRA-b (innglasset balkong):
- BRA-e (eksternt bruksareal):
- Totalt BRA: 119 kvm


Alle arealer som er oppgitt i forbindelse med markedsføringen av prosjektet er beregnet basert på tegninger, er å betrakte som ca. areal, og det tas forbehold om mindre avvik fra det oppgitte. Arealet er gitt av utbygger og megler har ikke kontrollmålt arealene.

Standard

Barnevennlig og tilbaketrukket - velkommen til en flott enebolig i moderne stil som skal oppføres av TBA Prosjekt. Boligene leveres nøkkelferdig med en gjennomgående god standard. Meget attraktiv beliggenhet i blindvei - godt skjermet for støy og nær nabo til grøntområder i vest. Boligene vil få gode lys- og solforhold.

Boligen strekker seg over to fulle etasjer med utgang til uteplass/hage i begge etasjer.

Hus 1:
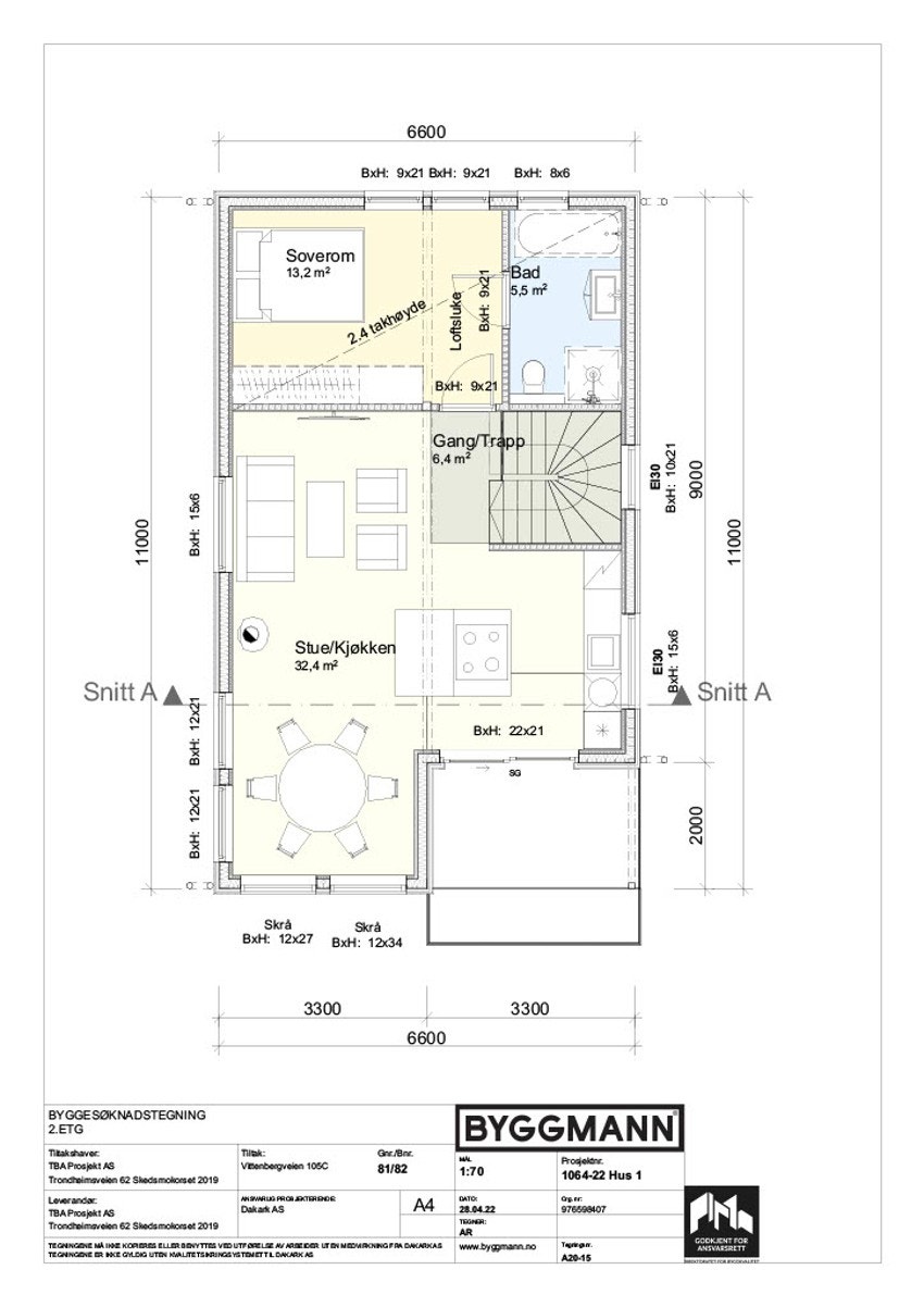
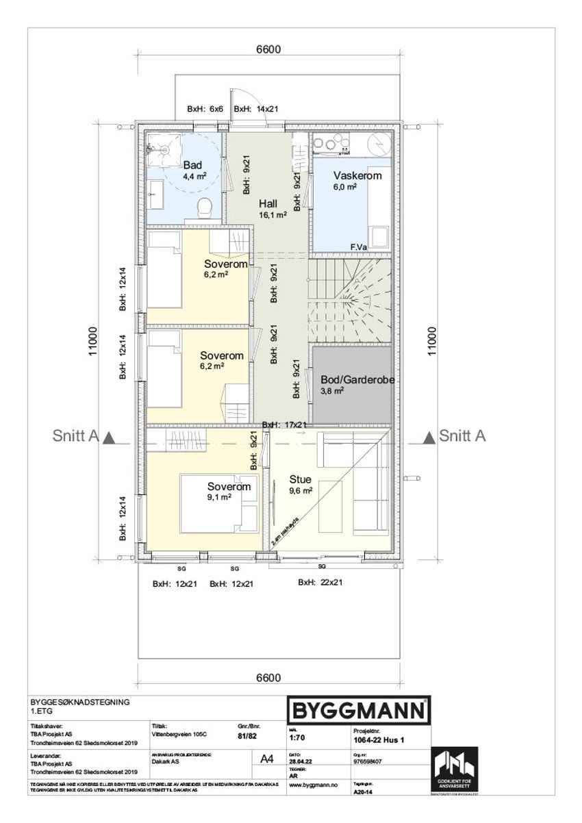
1. Etasje: entré/hall, bad, 3 soverom, tv-stue, bod og vaskerom.
2. Etasje: gang/trapperom, stue/kjøkken, bad og soverom. Utgang til balkong

Frittstående garasje og sportsbod + 1 p-plass


Generell gjennomgang av standard:
Hus 1:

Kjøkken:
Kjøkkeninnredning leveres fra Drømmekjøkkenet. Det medfølger innredning for entreprenørs netto innkjøpspris kr. 115 000 inkludert mva. for hovedkjøkken. Eventuelle endringer beregnes med grunnlag i denne verdien. Kjøkkenventilator inngår i prisen for innredningen. Det er ikke medregnet hvitevarer, men disse kan kjøpes som tilvalg. Montering av kjøpers egne hvitevarer inngår ikke i leveransen.

Stuer:
Boligen får en fin tv-stue med god plass til sofagruppe, medievegg og tilhørende møblement. Fint lysinnslipp fra store vindusflater og direkte utgang til hage fra stuen. En ekstra stue gir spesielt familier med barn en nødvendig fleksibilitet i hverdagen.

I 2. etasje får boligene en romslig hovedstue med åpen løsning mot kjøkkenet. Plass til sofagruppe og ønsket møblement. Utgang til balkong med rekkverk i glass/stål. Det leveres 1-stavs eikeparkett som standard i alle oppholdsrom.

Baderom/vaskerom
Boligen leveres med 2 komplette bad + eget vaskerom. Fliser på alle bad, vaskerom og entré leveres med Glade Cinza 60x60 cm. Dusjsone på alle bad leveres med mosaikk. Andre fliser kan leveres som tilvalg. Badene får innredning fra Drømmekjøkkenet, vegghengt dusj med dusjgarnityr og armatur, dusjvegger i klart glass med skinner og armatur til innredning. Alt i krom utførelse. Vegghengt hvitt toalett.

Soverom
Totalt 4 soverom; tre i første etasje og ett i andre etasje. Soverommet i andre etasje er en foreldreavdeling med garderobeplass og eget baderom. Soverommene har god plass til seng, pult og ønsket garderobeløsning.

Oppvarming

Hus 1
Det leveres termostatstyrte varmekabler i alle innvendige gulv i 1. etg, samt termostatstyrte
varmekabler på gulv i bad og WC i 2. etg Det leveres termostatstyrte elektriske panelovner på stue og
kjøkken samt på soverom i 2. etg.

Det leveres peisovn, Curve 100 eller tilsvarende i stue tilkoblet stålpipe.

Energimerking

Energimerking gir relevant informasjon om hvor energieffektiv boligen er. Energiattester vil bli utarbeidet av selger etter at detaljprosjekteringen er gjennomført , og utleveres ved overtakelse av boligen. Energiattesten skal dokumenter at man minst tilfredsstiller kategori C. Se www.energimerking.no for mer informasjon om energimerking av boliger.

Eier- og organisasjonsform

Prosjektet er tenkt oppdelt i et eierseksjonssameie i samsvar med eierseksjonsloven. Kjøper får tinglyst skjøte på sin seksjon. Selger står fritt til å bestemme seksjonsnummer. Det tas forbehold om eventuelle endringer av antall eierseksjoner i prosjektet. Som seksjonseier i et eierseksjonssameie vil kjøper bli sameier i eiendommen med tilhørende enerett til bruk av sin boenhet. Uteområde/tilhørende hageparsell, balkong/terrasser blir seksjonert som tilleggsdel til hver enkelt seksjon. Selger forbeholder seg imidlertid retten til å organisere dette annerledes, eksempelvis ved bruksretter. Seksjonseierne får felles bruksrett til sameiets øvrige fellesareal.
Ingen kan direkte eller indirekte erverve mer enn to boligseksjoner i et boligsameie jf. eierseksjonsloven §23. Dersom et erverv har funnet sted i strid med eierseksjonslovens regler kan Kartverket nekte overskjøting. Dersom overskjøting blir nektet, er kjøper likevel forpliktet til å gjennomføre handelen med selger, og oppgjør til selger vil finne sted tross manglende overskjøting.

Parkering

Hus 1: Boligen leveres med garasje, samt en oppstillingsplass. Sportsbod leveres tilknyttet garasje.

Det leveres to felles plasser for gjesteparkering.

Vei/vann/avløp

Det vil bli privat anlegg frem til offentlig tilknytning. Adkomst fra privat vei. Eiendommen vil bli tilknyttet offentlig avløpsnett og vann, via private stikkledninger. Tilknytningsavgifter bekostes av selger.

Det er 7 eiendommer som har felles ansvar for vedlikehold av privat vei/adkomst.

Sameiet

Sameiet består av 3 hus med tilhørende fellesareal som hovedsakelig består av parkering/adkomstvei

Forsikring

Kjøper må selv tegne husforsikring

Formuesverdi

Formuesverdien er pt. ikke fastsatt. Formuesverdien fastsettes av Ligningskontoret etter ny beregningsmodell som tar hensyn til om boligen er en såkalt "primærbolig" (der boligeieren er folkeregistret bosatt) eller "sekundærbolig" (alle andre boliger man måtte eie). Formuesverdien for primærboliger vil normalt utgjøre inntil ca. 30 % av den beregnede kvadratmeterprisen multiplisert med boligens areal. For sekundærboliger vil formuesverdien utgjøre 90 % av den beregnede kvadratmeterprisen multiplisert med boligens areal.

For fritidseiendommer skal formuesverdien maksimalt utgjøre 30 % av markedsverdien. Se http://www.skatteetaten.no for nærmere informasjon.

Felleskostnader

Det legges ikke opp til felleskostnader. Dette er eventuelt noe kjøpere enes om i fellesskap på et senere tidspunkt.

Offentlige/kommunale avgifter

Kommunale avgifter og eiendomsskatt fastsettes når boligene er ferdig bygget. Estimerte kommunale avgifter er 20-25.000,- pr år.

Faste løpende kostnader

Foruten fellesutgifter vil normalt de faste løpende kostnadene kunne utgjøre, kommunale avgifter, innboforsikring, tv og internett, strøm evt. eiendomsskatt etc. Listen er ikke uttømmende.

Ferdigattest/midlertidig brukstillatelse

Ferdigattest eller midlertidig brukstillatelse skal foreligge før overtagelse kan finne sted. I motsatt fall anbefaler megler at overtagelse utsettes og at kjøper ikke overtar. Velger kjøper allikevel å overta er det ulovlig å bebo/ta boligen i bruk. Å bebo uten brukstillatelse kan medføre krav om utflytting og evt. bøter fra kommunen. Ved å velge å overta stopper evt. krav om dagbøter. Selger er ansvarlig for at det blir utstedt ferdigattest på eiendommen. Dersom ferdigattest ikke foreligger ved overtakelse anbefaler megler at kjøper holder tilbake et beløp, til sikkerhet for at ferdigattest blir utstedt.

Utleie

Boligene har bare én boenhet og ingen separat utleiedel.

Odel

Det er ikke odel på eiendommen.

Odel

Eierseksjoner er ikke underlagt odel

Servitutter/rettigheter/forpliktelser

Følgende heftelser (pengeheftelser og andre heftelser) blir værende på eiendommen:

Rettigheter på 3029-81/73/0/1,2, 3029-81/83/0/1,2
Rettigheter i eiendomsrett

1960/2983-1/8 Best. om adkomstrett
07.10.1960
rettighetshaver:Knr:3029 Gnr:81 Bnr:82
Gjelder denne registerenheten med flere

Rettigheter på 3029-81/83/0/1,2
Rettigheter i eiendomsrett
1960/3105-2/8 Best. om vann/kloakkledn.
17.10.1960
rettighetshaver:Knr:3029 Gnr:81 Bnr:82

Bestemmelse om vedlikehold
Med flere bestemmelser
Gjelder denne registerenheten med flere

2022/1077542-1/200 Arealoverføring
27.09.2022 21:00
Areal overført fra:Knr:3029 Gnr:81 Bnr:83

2023/985018-1/200 Seksjonering
12.09.2023 21:00
opprettet seksjoner:
snr: 1
formål: Bolig
tillegsdel: Bygning og grunn
sameiebrøk: 1/3

opprettet seksjoner:
snr: 2
formål: Bolig
tillegsdel: Grunn
sameiebrøk: 1/3

opprettet seksjoner:
snr: 3
formål: Bolig
tillegsdel: Grunn
sameiebrøk: 1/3

Det gjøres oppmerksom på at det kan bli tinglyst ytterligere servitutter/erklæringer på eiendommen. Kjøper kan ikke motsette seg eller kreve prisavslag/erstatning for tinglysninger av øvrige nødvendige erklæringer/avtaler o.l. vedrørende sameie, naboforhold eller forhold pålagt av myndighetene knyttet til gjennomføringen av prosjektet innenfor reguleringsplanen for prosjektet. Kjøpers bank vil få prioritet etter heftelsene som er og evt. blir tinglyst før overtakelse.

Reguleringsmessige forhold

Rammetillatelse er gitt.
Området omfattes av kommuneplanens arealdel.

Betalingsbetingelser

Når selger frafaller sine forbehold og varsler at prosjektet igangsettes, forfaller forskudd kr. 200 000,-. For kjøpsavtaler som inngås etter at det er vedtatt igangsetting, skal det betales inn kr 200 000,- ved kontraktsinngåelse. Resten av kjøpesummen, omkostninger forfaller ved overtagelse. Kjøpesummen innbetales til meglers klientkonto. Kjøpesummen skal innbetales fra norsk finansinstitusjon og/eller fra kjøpers egen konto i norsk finansinstitusjon. Eventuell egenkapital skal innbetales i én samlet betaling fra kjøpers egen konto i norsk finansinstitusjon. Betaling kan ikke sikres med pant i den kjøpte eiendom før overtakelse har funnet sted og skjøte til kjøper er tinglyst.
Ved innlevering av kjøpetilbud med kopi av gyldig legitimasjon er kjøper bundet når kjøpetilbudet er innlevert megler. Selger er bundet av aksepten når selger (skriftlig) har akseptert samme tilbud. Da selger er profesjonell part, gjelder ikke bestemmelsen om at innlevert kjøpetilbud må ha akseptfrist tidligst kl. 12.00 etter siste annonsert visning.

Lovgrunnlag

Boligene selges til forbrukere i henhold til Bustadoppføringslova.
Dersom kjøper ikke er forbruker kommer i utgangspunktet ikke bustadoppføringslovens regler til anvendelse. Partene er dog enige om at bustadoppføringsloven kommer til anvendelse med unntak av følgende paragrafer som således ikke kan påberopes: -§§8, 12, 16, 18, 24, 31, 47, 49 og 51-54. Dersom andre paragrafer i bustadoppføringsloven inneholder bestemmelser om at de ovennevnte paragrafer kan påberopes, vil også slike bestemmelser ikke være gjeldende mellom partene.
Etter at boligene er ferdigstilte selges boligene etter Avhendingslova til både forbrukere og næringsdrivende.

Tilleggsarbeider

Kjøper har mulighet til å gjøre endringer/og eller tilvalg i.h.t. bustadsoppføringslova. Selger vil gjøre prising av dette. Pris beregnes etter netto innkjøpspris til selger med et påslag på 25%. Ved eventuelt fratrekk avregnes netto pris til selger. Påslag dekker økte garantikostnader, merarbeid i forhold til logistikk, prosjektering, eventuelt ekstra svinn og økt risiko. Ved eventuelle ønsker om endring av innvendig planløsning (flytting av vegg, ekstra vegg, endre slagretning på dører osv.) vil det tilkomme en kostnad på 5000.- for tegningsendring. Den faktiske kostnaden på endringen vil komme i tillegg til denne kostnaden.

Muligheter for tilvalg vil være avhengig av hvor langt man er kommet i byggeprosessen når kjøpstilbudet aksepteres. Selger gjør oppmerksom på at tilvalgsprosessen kan bli overtatt av utførende entreprenør, og at oppgjør gjøres direkte mellom kjøper og entreprenør.

Renter/Garanti

Selger skal, umiddelbart etter at avtale er inngått, stille garanti etter bustadoppføringslova § 12. Garantien skal gjelde fra tidspunkt for avtaleinngåelse og frem til fem år etter overtagelse. Garantien skal tilsvare minst 3 % av kjøpesummen frem til overtagelse, og minst 5 % etter overtagelse.
Er det i avtalen tatt forbehold som beskrevet i bustadoppføringslova § 12 annet ledd, andre setning, er det tilstrekkelig at selger stiller garantien straks etter at forbeholdene er falt bort, men selger skal uansett stille garanti før byggearbeidene starter.

Til det er dokumentert at det foreligger §12 garanti, har forbrukeren rett til å holde tilbake alt vederlag.
Dersom selger stiller §47 garanti, vil deloppgjør utbetales selger /byggelånsbank. Renter på klientkonto tilhører kjøper frem til overtakelse eller §47 garanti foreligger. Garantiene dtilles direkte til kjøper med kopi til megler.

Videresalg

Kjøper kan søke om å få transportere sinerettigheter og plikter til en ny kjøper, senest 3 måneder før overtagelse. Transporten kreversamtykke fra selger, og selger kan nekte overdragelse på fritt grunnlag. Transportgebyret utgjør kr. 150.000,- og betales av opprinnelig kjøper. Utgifter til eventuell bruk av megler kommer i tillegg. Påkrevde endringer av garantier ved et evt. videresalg/transport bekostes ikke av selger/utbygger.

Kostnader ved avbestillinger

Kjøper kan avbestille i henhold til reglene i bustadoppføringslova §§ 52 og 53 frem til overtakelse har funnet sted. Lovens utgangspunkt er at utbygger skal holdes skadesløs ved avbestilling. Det vil si at den som avbestiller må
dekke alle tap som måtte oppstå på selgers hånd. Selger kan alternativt velge å fremsette et tilbud om et fast avbestillingsgebyr jfr. bustadoppføringslovens § 54. Dersom det aksepteres av kjøper, vil det utgjøre grunnlaget for et endelig oppgjør mellom partene. Størrelsen på avbestillingsgebyret vil i tilfelle bli beregnet i det enkelte tilfelle.

Kredittvurdering/dokumentasjon av finansieringsevne

Selger forbeholder seg retten til å foreta kredittvurdering av kjøpere, og kan avvise en kjøper som ikke er kredittverdig på kjøpstidspunktet.

Overtagelse

Kjøper aksepterer at endelig overtagelse vil bli varslet senest 6 uker før overlevering. Kjøper vil ved overtagelse få tildelt FDV-dokumentasjon som viser hvilke materialer, produkter og fargevalg som er benyttet i boligen, i tillegg til adresselister med oversikt over kontaktpersoner/firma som er ansvarlig for de forskjellige arbeider og vedlikehold.

Generelt/forbehold

Salgsprospekt og prosjektbeskrivelsen er utarbeidet for å orientere om prosjektets generelle bestanddeler, funksjoner og planlagte organisering, og er således ikke en komplett beskrivelse av leveransen. Det vises for øvrig til kundetegninger og kjøpekontrakt med vedlegg. Alle illustrasjoner, 3D animasjoner, skisser, "møblerte" plantegninger m.m. er kun ment å danne et inntrykk av den ferdige bebyggelsen, og kan ikke anses som endelig leveranse. Inntegnet utstyr/inventar medfølger ikke, og det kan derfor fremkomme elementer i presentasjonsmaterialet som ikke inngår i leveransen.

Generelle beskrivelser av prosjektet i salgs- og markedsføringsmateriell vil ikke passe for alle leiligheter. Kjøper oppfordres derfor særskilt til å vurdere solforhold, utsikt, beliggenhet i forhold terreng og omkringliggende eksisterende og fremtidig bygningsmasse mm. før et eventuelt bud inngis. Det kan være avvik mellom de planskisser, planløsninger og tegninger som er presentert i prospektet, og den endelige leveransen. Slike avvik utgjør ingen mangel ved selgers leveranse som gir kjøper rett til prisavslag eller erstatning. Dersom det er avvik mellom tegninger i prospekt / internettside og leveransebeskrivelsen i den endelige kontrakt med kjøper, vil leveransebeskrivelsen ha forrang og omfanget av leveransen er begrenset til denne. Det tas forbehold om trykkfeil i prospektet. Sjakter, innkassinger o.l. og VVS føringer er ikke endelig tegnet inn. Det gjøres oppmerksom på at utomhusplanen i salgsprospektet ikke er ferdig detaljprosjektert. Forstøtningsmurer, fallsikringer, belysning, fordeler-skap, lekeapparat, benker m.m., kummer og lignende vil bli plassert slik det finnes hensiktsmessig i forhold til terrenget. Selger har rett til å foreta endringer i prosjektet som ikke vesentlig forringer prosjektets kvalitet eller standard, herunder arkitektoniske endringer, materialvalg, mindre endringer i konstruksjon, rørgjennomføringer og/eller tomtetilpasninger. Slike endringer er ikke å anse som mangler ved ytelsen. Det samme gjelder de endringer som må gjøres som følge av kommunens byggesaksbehandling og krav i ramme- og igangsettingstillatelser, samt andre offentlige tillatelser.

Selger tar forbeholder seg retten til å overdra rettigheter og plikter etter denne kjøpekontrakt til et annet selskap (for eksempel et utbyggerselskap). Kjøper aksepterer en slik eventuell overdragelse.
Selger står fritt til å akseptere eller avslå ethvert bud, herunder bestemme om de vil akseptere salg til selskaper, samt om de vil akseptere salg av flere leiligheter til samme kjøper. Selger forbeholder seg retten til uten varsel å kunne endre priser og betingelser for usolgte leiligheter.

Særlige forbehold

Ved overtagelse må det påregnes at det gjenstår mindre utvendige eller innvendige arbeider på eiendommens fellesarealer. Selger tar forbehold om å foreta endringer/omregulering av omkringliggende bebyggelse, eventuell regulering av enkeltseksjoner til næringsvirksomhet og endringer av utomhus-arealer i forhold til det som er presentert for kjøper.

Selger tar forbehold om å overdra rettigheter og plikter etter denne kjøpekontrakt til et annet selskap (for eksempel et utbyggerselskap). Kjøper aksepterer en slik eventuell overdragelse.

Budgivning

Ved innlevering av kjøpetilbud med kopi av gyldig legitimasjon er kjøper bundet når kjøpetilbudet er innlevert megler. Selger er bundet av aksepten når selger (skriftlig) har akseptert samme tilbud. Da selger er profesjonell part, gjelder ikke bestemmelsen om at innlevert kjøpetilbud må ha akseptfrist tidligst kl. 12.00 etter siste annonsert visning.

Kjøper er utenlandsk statsborger

Dersom kjøper er utenlandsk statsborger kreves det at vedkommende har et såkalt D-nummer til erstatning for norsk personnummer. Rekvirering av D-nummer må sendes Kartverket samtidig med innsending av skjøtet for tinglysing. Skjøtet blir liggende i Kartverket inntil kjøper har fått D-nummer av Skatteetaten. Når Kartverket har mottatt D-nummeret fra Skatteetaten, vil skjøtet bli tinglyst umiddelbart. Rekvisisjon av D-nummer i forbindelse med tinglysing av skjøte vil ofte medføre at oppgjør og utbetaling til selger blir forsinket med noen uker. Kjøper må i disse tilfellene enten ta forbehold i bud om forsinket utbetaling til selger, eller være forberedt på å dekke forsinkelsesrenter til selger. Kontakt ansvarlig megler for informasjon før budgivning.

Lov om hvitvasking

I henhold til Lov av 01.06.2018 nr. 23 om tiltak mot hvitvasking og terrorfinansiering mv. er megler pliktig til å gjennomføre kundetiltak av oppdragsgiver og/eller eventuelle reelle rettighetshavere til salgsobjektet. Det samme gjelder for medkontrahenten til oppdragsgiver og/eller eventuelle reelle rettighetshavere til salgsobjektet.
Dersom nevnte parter ikke oppfyller lovens krav til legitimasjon eller megler har mistanke om at transaksjonen har tilknytning til utbytte av en straffbar handling eller forhold som rammes av straffeloven §147 a, 147 b eller 147c kan megler stanse gjennomføringen av transaksjonen. Megler kan ikke holdes ansvarlig for de konsekvenser dette vil kunne medføre for oppdragsgiver og/eller eventuelle reelle rettighetshavere til salgsobjektet eller deres medkontrahent.

Personopplysninger

Som følge av meglerforetakets plikt til å oppbevare kontrakter og dokumenter i minst 10 år, jf. eiendomsmeglingsforskriften § 3-7 (3), er mulighetene for å få slettet personlige opplysninger som er formidlet til megler, begrenset. Du kan lese mer om vår personvernpolicy på våre hjemmesider, www.proaktiv.no.

Finansiering

Vi bistår mer enn gjerne med kontakt med ulike banker, men vi har ingen fast bankforbindelse da vi mener at vilkårene i ulike finansinstitusjoner varierer fra kundegruppe til kundegruppe. Vi kan således ikke anbefale en bestemt bank, men hjelper mer enn gjerne med å finne den banken som tilbyr deg best vilkår.

Tinglysing av hjemmel

Skjøte sendes for tinglysing i forbindelse med oppgjøret. Oppgjør forutsetter at det er gjennomført overtagelse og at partene har signert en overtakelsesprotokoll og sendt denne til oppgjørsavdelingen slik som avtalt i kontrakt. Det forutsettes at skjøte tinglyses i kjøpers navn. Hvis interessenter mot formodning ikke ønsker tinglysing av skjøte må det tas forbehold om dette i kjøpetilbudet.

Salgsoppgave

Opplysningene i salgsoppgaven er godkjent av selger.

Nærområdet

Annonseinformasjon

FINN-kode345537412
Sist endret14. okt. 2025 07:50
Referanse63230159

Rapporter annonse

Annonsene kan være mangelfulle i forhold til lovpålagt opplysningsplikt. Før bindende avtale inngås oppfordres interessenter til å innhente komplett informasjon fra meglerforetaket, selger eller utleier.