Bildegalleri

Din lokale eiendomsmegler Anders Havneraas har gleden av å presentere denne hytten i Tømmervågen!
Inaktiv
Sjarmerende fritidseiendom med stor tomt og flott hage. Mulighet for nausttomt.
Prisantydning790 000 kr
- Omkostninger
- 20 840 kr
- Totalpris
- 810 840 kr
- Kommunale avg.
- 5 612 kr per år
- Formuesverdi
- 374 129 kr
Nøkkelinfo
- Beliggenhet
- Ved sjøen
- Boligtype
- Enebolig
- Eieform
- Eier (Selveier)
- Internt bruksareal
- 111 m² (BRA-i)
- Bruksareal
- 111 m²
- Tomteareal
- 1 894 m² (eiet)
- Byggeår
- 1890
- Soverom
- 3
- Rom
- 5
- Energimerking
- E - Oransje
- Overtakelse
- Etter avtale. Angi ønsket overtagelse ved budgivningen.
Fasiliteter
Innlagt vann
Bilvei frem
Garasje/P-plass
Hage
Peis/Ildsted
Rolig
Bademulighet
Fiskemulighet
Innlagt strøm
Offentlig vann/kloakk
Turterreng
Visning
Vi i Notar ønsker å avholde så gode visninger som mulig. Derfor har vi påmeldingsvisninger. Da vet vi hvor mange som kommer, og kan sette av nok tid til alle. Trykk på linken visningspåmelding for å avtale tidspunkt. Visninger uten påmeldte innen kl. 16:00 dagen i forkant, vil ikke bli avholdt. Hvis det ikke er oppsatt visningstidspunkt eller oppsatt tidspunktet ikke skulle passe, kontakt megler for avtale om privatvisning. Velkommen til visning.
Husk å lese komplett salgsoppgave før visning. Bestill komplett, utskriftsvennlig salgsoppgave.
VisningspåmeldingOm boligen
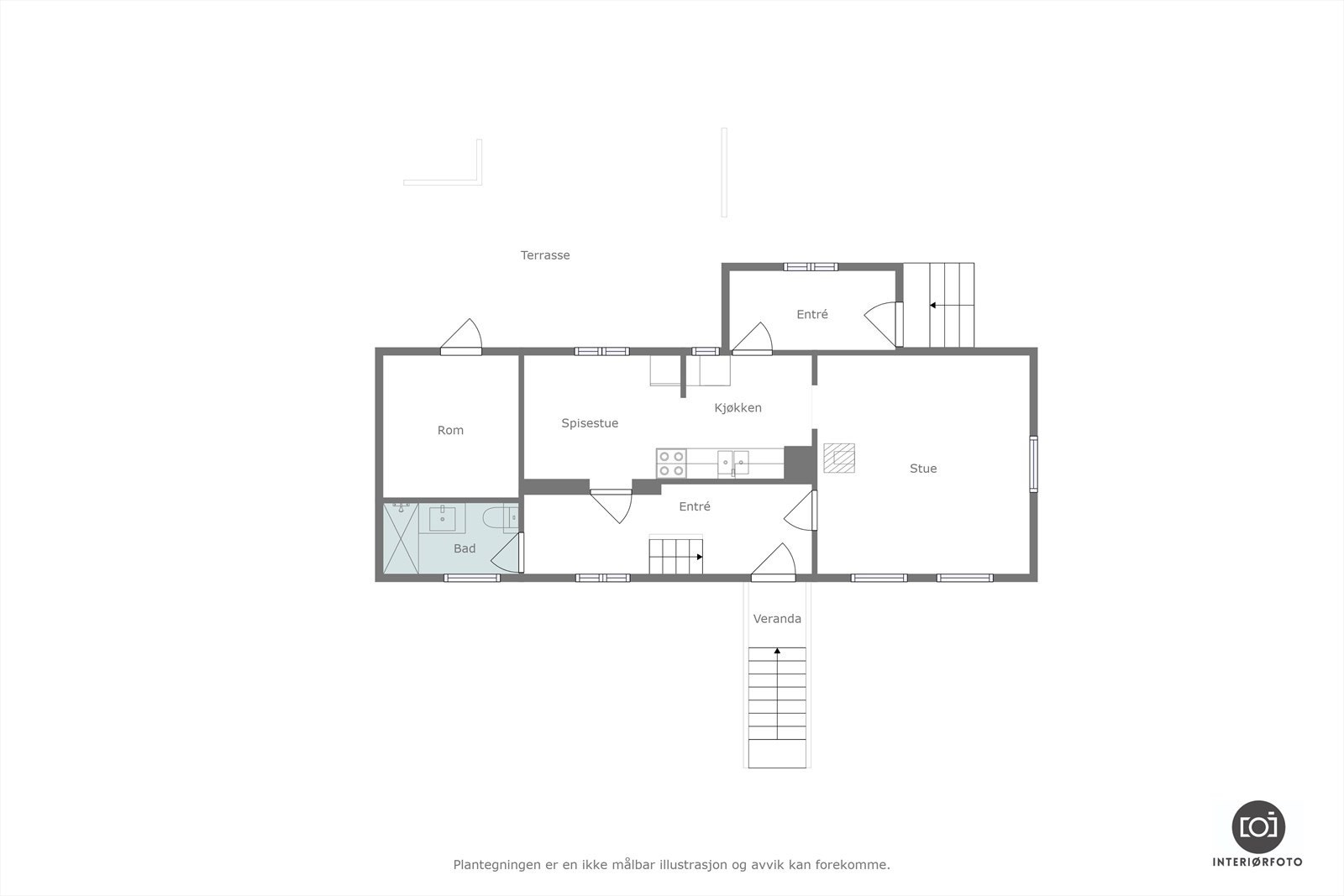
Din lokale eiendomsmegler Notar v/Anders Havneraas har gleden av å presentere denne fine fritidseiendommen i Tømmervågen. Eiendommen har et skjermet beliggenhet innerst i Haugan-feltet like etter fergeleie i Tømmervågen. Totalt er det sengeplasser til ca. 8 stk - her er plass til hele familien og noen til! Selve hytta inneholder stue, kjøkken, 3 soverom og bad/vaskerom. Eiendommen har en romslig tomt med flere solrike uteplasser, og tomten er pent opparbeidet med blomsterbed og busker/småtrær. Eiendommen har mulighet for feste av nausttomt, konferer megler.
Velkommen til en trivelig visning!
Velkommen til en trivelig visning!
NB: Knappen for å vise hele beskrivelsen har kun en visuell effekt.
NB: Knappen for å vise hele beskrivelsen har kun en visuell effekt.
Salgsoppgaven beskriver vesentlig og lovpålagt informasjon om eiendommen
Se komplett salgsoppgaveNærområdet
Notar Kristiansund
God magefølelse
Annonseinformasjon
| FINN-kode | 345219252 |
|---|---|
| Sist endret | 29. aug. 2025 09:34 |
| Referanse | NO4.2472 |
Annonsene kan være mangelfulle i forhold til lovpålagt opplysningsplikt. Før bindende avtale inngås oppfordres interessenter til å innhente komplett informasjon fra meglerforetaket, selger eller utleier.



































