Bildegalleri

Velkommen til ditt nye hjem i Nygårdsbakken 2B. Dette er et innbydende og stilfullt hjem med et godt innhold. Egen garasje med elbillader like ved, er et stort pluss for mange. Denne er verdt en titt!
Lys og hyggelig familiebolig med nærhet til garasje med elbillader. 2(3) sov og 2 bad. Pent kjøkken og fine uteplasser.
Nøkkelinfo
- Boligtype
- Rekkehus
- Eieform
- Andel
- Soverom
- 2
- Internt bruksareal
- 130 m² (BRA-i)
- Bruksareal
- 130 m²
- Balkong/Terrasse
- 31 m² (TBA)
- Etasje
- 3
- Byggeår
- 1971
- Energimerking
- E - Oransje
- Rom
- 4
- Tomteareal
- 46 250 m² (eiet)
Fasiliteter
Om boligen
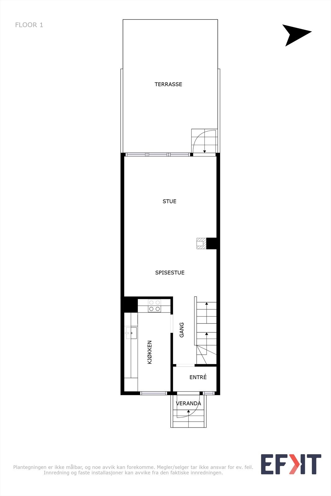
- Rekkehus over 3 etasjer med et god innhold. Her kombinerer man funksjonalitet, komfort og praktiske fasiliteter og det moderne fargevalget gir en behagelig atmosfære.
- Pent og klassisk kjøkken som ligger i eget rom med plass til spisebord.
- 2 bad er noe alle i familien vil sette stor pris på. Slipp kø eller uenigheter på morgningen om hvem sin tur det er til å dusje, pusse tenner etc.
- To soverom med mulighet for tre. I tillegg har man et ekstra rom i u. etg. som allerede er innredet og brukes som soverom (ikke godkjent til varig opphold).
- Garasjen, som ligger like ved, har elbillader fra 2021.
- Barnevennlig beliggenhet, nær bhg, noe som er praktisk spesielt for de med små barn.
Salgsoppgaven beskriver vesentlig og lovpålagt informasjon om eiendommen
Se komplett salgsoppgaveNyttige lenker
Nærområdet
EiendomsMegler 1 Nittedal
Prisstatistikk
Nygårdsbakken 2B
på annonsen
prisantydning per kvadratmeter
Prisfordeling
Pris per m² ligger 6 307 kr under snittet for rekkehus i Nittedal.
Grafen viser antall rekkehus solgt i Nittedal siste året fordelt på pris per m² - totalt 72 rekkehus
Antall boliger
Kvadratmeterpris tilsvarer prisantydning pluss fellesgjeld per kvadratmeter (p-rom eller BRA-i). Prisene i grafen er avrundet til nærmeste 1000 kr.
Annonseinformasjon
| FINN-kode | 344921794 |
|---|---|
| Sist endret | 08. apr. 2024 10:54 |
| Referanse | 1214240007 |
Annonsene kan være mangelfulle i forhold til lovpålagt opplysningsplikt. Før bindende avtale inngås oppfordres interessenter til å innhente komplett informasjon fra meglerforetaket, selger eller utleier.












































