Bildegalleri

En hjemmekoselig og trivelig enebolig over to plan, med attraktiv og barnevennlig beliggenhet rett i nærheten av Stavåsen.
Inaktiv
Innholdsrik enebolig med god lagringsplass. Dobbelgarasje. Ligger i bydel med rikt aktivitetstilbud.
Prisantydning3 500 000 kr
Nøkkelinfo
- Boligtype
- Enebolig
- Eieform
- Eier (Selveier)
- Soverom
- 4
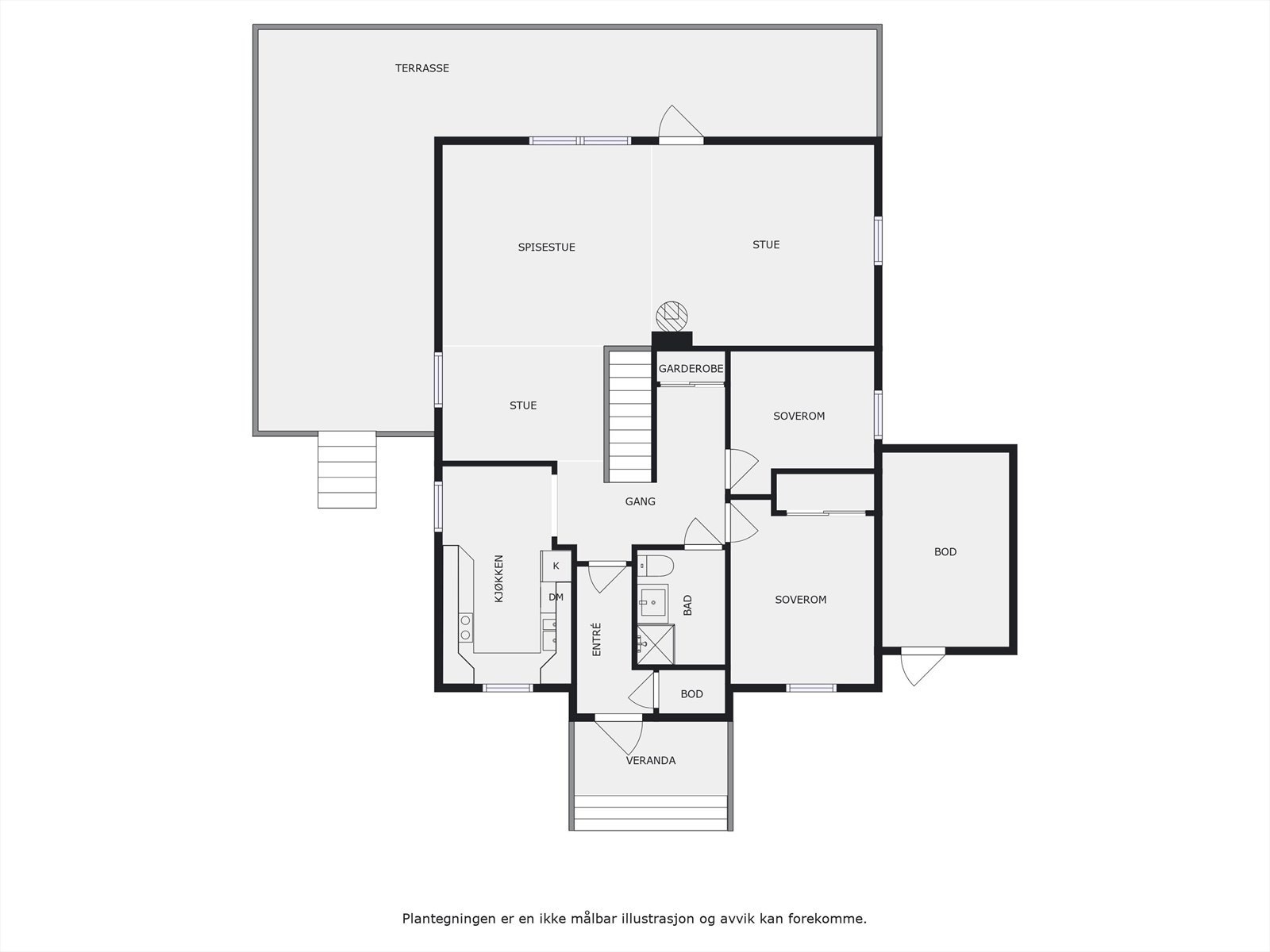
- Internt bruksareal
- 176 m² (BRA-i)
- Bruksareal
- 230 m²
- Eksternt bruksareal
- 54 m² (BRA-e)
- Etasje
- 2
- Byggeår
- 1976
- Energimerking
- E - Gul
- Rom
- 5
- Tomteareal
- 977 m² (eiet)
Fasiliteter
Balkong/Terrasse
Barnevennlig
Garasje/P-plass
Golfbane
Hage
Offentlig vann/kloakk
Peis/Ildsted
Rolig
Sentralt
Bademulighet
Turterreng
Om boligen
Her kan vi presentere en hjemmekoselig og trivelig enebolig over to plan, med attraktiv og barnevennlig beliggenhet rett i nærheten av Stavåsen. Huset er et godt utgangspunkt for familier som ønsker god plass, enkel adkomst til friområder og kort veg til både barnehage, dagligvarebutikk og barneskolen på Søbakken. Boligen har store og luftige dagligrom med en lys fremtoning og et helhetlig farge- og materialvalg. Her er det store vindusflater, åpne løsninger og god plass til å innrede etter eget ønske og behov. Utnyttelse av sokkeletasjen gir mulighet for en velfungerende bolig for både små og store, samt gode oppbevaringsmuligheter. Dette er et hjem som med sin nærhet til friareal og marka vil være en flott plass for en aktiv familie.
NB: Knappen for å vise hele beskrivelsen har kun en visuell effekt.
NB: Knappen for å vise hele beskrivelsen har kun en visuell effekt.
Salgsoppgaven beskriver vesentlig og lovpålagt informasjon om eiendommen
Se komplett salgsoppgaveNærområdet
Aktiv Innlandet
Annonseinformasjon
| FINN-kode | 344818480 |
|---|---|
| Sist endret | 04. juli 2025 10:23 |
| Referanse | 1211240078 |
Annonsene kan være mangelfulle i forhold til lovpålagt opplysningsplikt. Før bindende avtale inngås oppfordres interessenter til å innhente komplett informasjon fra meglerforetaket, selger eller utleier.


























